Apartamento T3 novo, rés-do-chão, Žitnjak, Zagreb

€ 123.760
3
34 m²
1
r/c

Nota

Anúncio atualizado em 05/12/2025
Descrição

This description has been translated automatically and may not be accurate

referência: 1123-1

Apartment for sale New construction, Resnik (Zagreb)
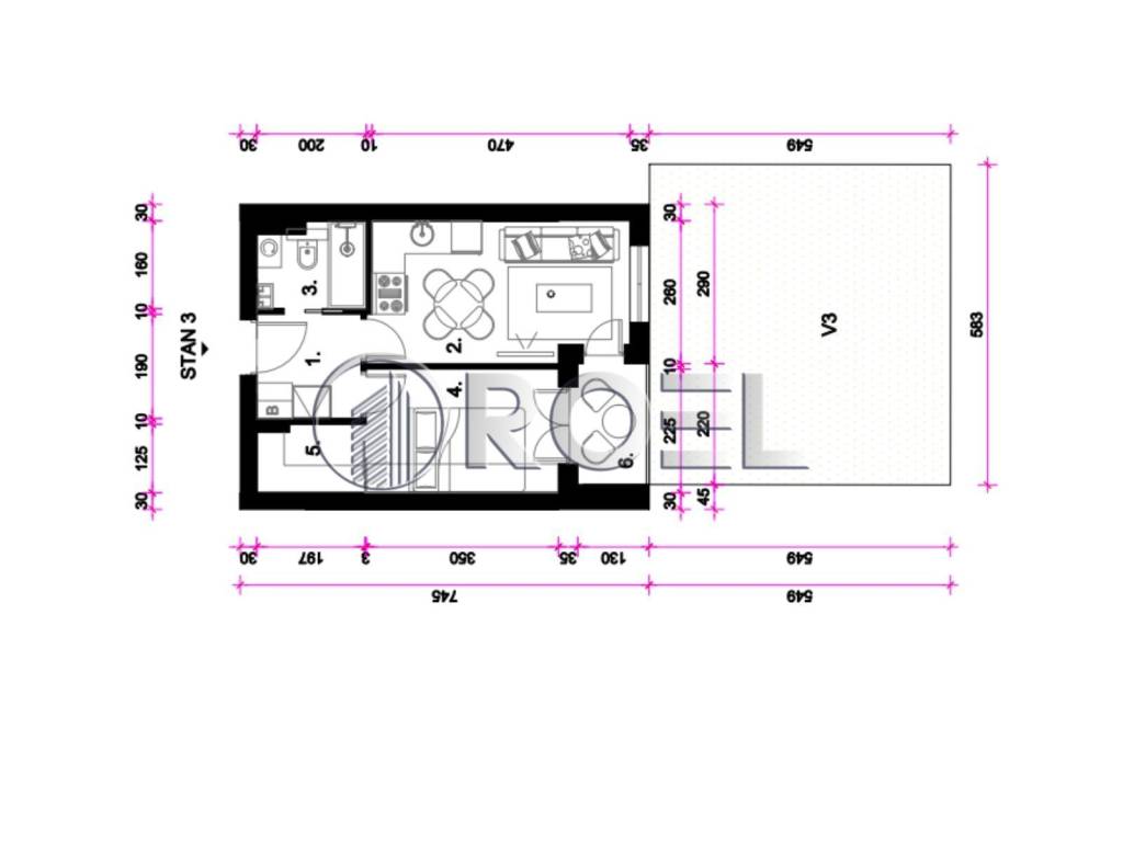
In a quiet and urban location in the Resnik settlement, we offer a two-bedroom apartment in a new building located on the ground floor of a modern residential building consisting of a ground floor, first and second floors. The closed living area is 30.94 m2, and additionally includes a garden of 3.2 m2, for a total net usable area of 34.14 m2.
The apartment is extremely functionally organized and consists of an entrance area, a living room connected to the kitchen and dining room, a bedroom, a wardrobe, a modern bathroom, a loggia and a garden perfect for relaxing or family gatherings outdoors. The spaces are designed to make maximum use of natural light, thus achieving a pleasant and warm atmosphere of the home.
The interior is planned to include parquet and ceramic tiles, which ensures an elegant and long-lasting floor finish, while heating via a heat pump provides high energy efficiency and low maintenance costs. A parking space and storage room can be provided with the apartment upon agreement with the investor, which further increases the functionality and comfort of everyday life.
Resnik is a quiet family-friendly neighborhood, close to all the important amenities schools, kindergartens, shops and public transport. The location combines the advantages of a quiet suburban neighborhood and quick access to the center of Zagreb, making this apartment an ideal choice for families and individuals looking for a quality new home in a green environment.
Resnik also has excellent transport connections to the rest of Zagreb and its surroundings. It is located in the eastern part of the city, near Slavonska Avenue and the ring road, which allows quick access to the center of Zagreb, as well as the A3 highway (ZagrebLipovac) and the bypass. There are also bus lines nearby that connect Resnik with the neighborhoods of Dubec, Borongaj and Kvaternikov trg, while the Zagreb-Resnik train station is available for those who prefer rail transport.
Thanks to this connection, the location allows for quick and easy movement to business zones, schools, shopping centers and recreational areas, making it an extremely practical choice for everyday life.
For more information and to arrange a viewing of the apartment, contact us - the new Resnik building represents the perfect opportunity for a comfortable and modern life in Zagreb.
Maja 091 888 4643
Se quiser saber mais, pode falar com Maja Nikšić.
Características
Tipologia
Apartamento
Contrato
Venda
Andar
Rés-do-chão
Superfície
34 m²
Quartos
3
Quartos
1
Casas de banho
1
Informações de preço
Preço
€ 123.760
Preço por m²
3.640 €/m²
Eficiência energética
  • Ano de construção

    2026
  • Estado

    Novo / Em construção
  • Certificação energética

    Não classificável
Descubra cada canto da propriedade
+5
Opções adicionais

Contactar o anunciante

Ou