Четырехкомнатная квартира Umag, Centar, Luka, Finida, Umag

€ 255 000
4
79 m²
1
1
Нет
Балкон

Пометка

Объявление обновлено 10.03.2026
Описание

This description has been translated automatically and may not be accurate

ID: 300441016-277

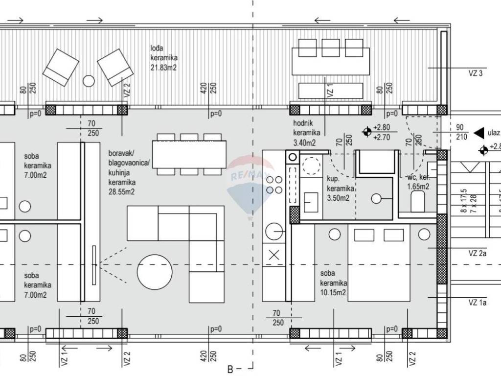
RE/MAX Centar Nekretnina presents an apartment on the first floor of a modern new building, located in a quiet and well-maintained residential area near Umag. The property is only 1 km from the beach and the crystal-clear sea. The location is ideal for those seeking peace and privacy while still being close to the town and all essential amenities.

The apartment occupies the entire floor of the building and has a separate entrance. The total area of the apartment is 79 m², of which 62.5 m² is living space, and 22 m² is a covered loggia. The apartment also offers a sea view, further enhancing the impression of a pleasant Mediterranean lifestyle.

The layout includes an entrance hall, three bedrooms, a bathroom, a separate toilet, and a spacious living room with a dining area and kitchen. From the living area, there is access to a beautiful large loggia – a perfect spot for relaxation and outdoor enjoyment.

The apartment comes with designated parking spaces within the building's yard.

The building consists of a total of four residential units. The property is sold on a "turnkey" basis, with completion of construction planned for autumn 2025.

This apartment represents an excellent opportunity both for year-round living and for vacation or tourist rental.

ID CODE: 300441016-277

Suzana Ranić
Prodajni predstavnik
Mob: +385 91 641 0067
Tel: +385 52 670 295
E-mail: s.ranic@remax-istra.hr
www.remax-centarnekretnina.com
Характеристики
Типология
Квартира
Договор
Продажа
Этаж
1 этаж
Этажность здания
2
Лифт
Нет
Площадь
79 m²
Помещения
4
Спальни
3
Ванные
1
Балкон
Да
Терраса
Нет
Кондиционер
Автономное, холод/тепло
Информация о ценах
Цена
€ 255 000
Цена за м²
3 228 €/m²
Энергоэффективность

Потребление энергии

A

Откройте для себя каждый уголок объекта недвижимости
+10
Доп. опции

Свяжитесь с рекламодателем

Или