Участок под застройку Продажа

€ 380 000
735 m²

Пометка

Объявление обновлено 22.01.2026
Описание

ID: 300621003-1361

**Njivice, prodaja građevinskog zemljišta**

Prodajemo građevinsko zemljište površine 735 m² u Njivicama, pripremljeno za gradnju. Zemljište je pravilnog oblika i nudi djelomičan pogled na more. Za zemljište je izrađen geodetski elaborat, glavni projekt, a uskoro se očekuje i pravomoćnost građevinske dozvole.

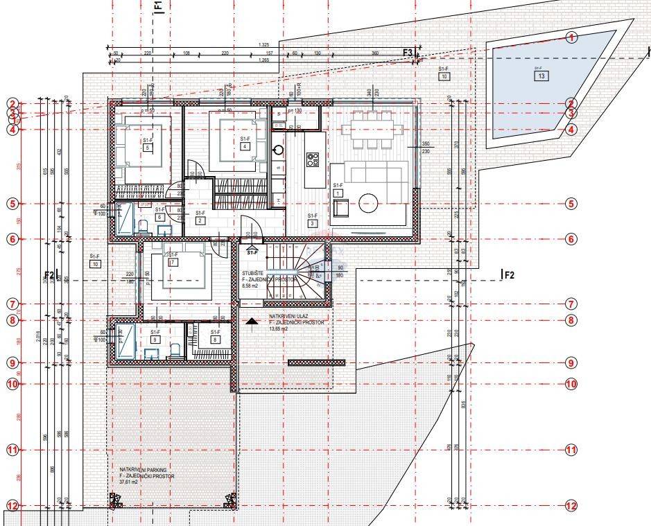
Projektom je predviđena gradnja objekta sa četiri stambene jedinice:
- **Prizemlje**: Apartman površine 80 m² sa okućnicom, bazenom i dva parkirna mjesta.
- **Prvi kat**: Dva apartmana, jedan površine 50 m² i drugi 70 m², svaki sa okućnicom i dva parkirna mjesta.
- **Drugi kat**: Prostrani apartman površine 110 m² sa krovnom terasom od 60 m² i dva parkirna mjesta.

Zemljište se nalazi na mirnoj lokaciji, 500 m od mora. PDV je uračunat u cijenu, te kupac ne plaća porez na promet nekretnina.

Za više informacija ili dogovor oko razgledavanja, slobodno nas kontaktirajte!

ID CODE: 300621003-1361

Mirela Petrović
Prodajni predstavnik
Mob: +385 91 641 3300
Tel: +385 51 309 703
E-mail: m.petrovic@remax-krk.hr
remax-centarnekretnina.com

Jelena Sindičić
Prodajni predstavnik
Mob: +385 91 641 3138
Tel: +385 51 309 703
E-mail: j.sindicic@remax-krk.hr
remax-centarnekretnina.com
Характеристики
Договор
Продажа
Типология
Участок под застройку
Площадь
735 m²
Информация о ценах
Цена
€ 380 000
Цена за м²
517 €/m²
Откройте для себя каждый уголок объекта недвижимости
+5
Доп. опции

Свяжитесь с рекламодателем

Или