Отдельный дом на одну семью Sošići, Kanfanar, Kanfanar

€ 300 000
4
143 m²
1
Нет
Балкон

Пометка

Объявление обновлено 22.01.2026
Описание

This description has been translated automatically and may not be accurate

ID: 3-71854

REMAX Centar Nekretnina offers:

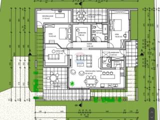
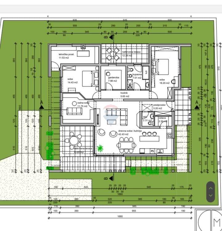
a house in the unfinished phase, net area of 143 m2, located in a quiet location in the vicinity of Rovinj, only approximately 10 km from the sea and the city center.

The house will have an open space living room with kitchen and dining room, 3 bedrooms, one bathroom, one toilet, a dressing room, 2 covered terraces, a storage room and a technical room.

Land area: 582 m²

Works completed: foundations laid, main slab, internal and external walls, partially electricity installed.

Located in a quiet environment, on the edge of the village, excellent connections to Rovinj and surrounding towns

This property represents an excellent opportunity for those who want to adapt the house to their own needs - whether for living, vacation or as an investment for tourist purposes.

ID CODE: 3-71854

Velibor Brkić
Prodajni predstavnik
Mob: +385 91 641 0182
Tel: +385 52 638 222
Fax: +385 51 499 801
E-mail: v.brkic@remax-istra.hr
remax-centarnekretnina.com
Характеристики
Типология
Отдельный дом на одну семью
Договор
Продажа
Лифт
Нет
Площадь
143 m²
Помещения
4
Спальни
3
Ванные
1
Балкон
Да
Терраса
Нет
Информация о ценах
Цена
€ 300 000
Цена за м²
2 098 €/m²
Энергоэффективность
  • Год постройки

    2025
  • Энергетическая сертификация

    Не классифицирована
Откройте для себя каждый уголок объекта недвижимости
+10
Доп. опции

Свяжитесь с рекламодателем

Или