map icon

Τριάρι νέο, ισόγειο, Novalja

Novalja
€ 518.000
3
189 m²
3
ΙΣ
Όχι
Μπαλκόνι
Βεράντα
Επιπλωμένο

Σημείωση

Τελευταία ενημέρωση: 11/11/2025
Περιγραφή

κωδικός: s339

www.euroestate-nekretnine.hr (ID: s339)

KUPAC NE PLAĆA POSREDNIČKU PROVIZIJU PRILIKOM KUPNJE NEKRETNINE IZ NAŠE PONUDE.

PRODAJE SE troetažan apartman bruto površine 189,57 m2 i neto korisne površine 126,55 m2 u kućama u nizu sa vrtom, terasom, loggiom, 2 balkona i 2 pripadajuća parkirna mjesta, koji se nalazi u mirnoj apartmanskoj oazi u Novalji.

- apartman se nalazi u mirnom dijelu Novalje, okružen ostalim apartmanskim zgradama i hotelima,
- apartman je istočno - zapadne orijentacije,
- A energetski razred,
- godina izgradnje: 2022.,
- apartman se proteže na 3 etaže (prizemlje, prvi kat, drugi kat),
- apartman oznake S3 je smješten u kući u nizu,
- zaseban ulaz u objekt,
- protuprovalna ulazna vrata,
- apartman posjeduje jacuzzi smješten na terasi na 2.katu,
- PVC stolarija sive boje sa automatiziranim roletama,
- podovi obloženi modernim keramičkim pločicama,
- grijanje / hlađenje pomoću klimatizacijskih uređaja,
- svaka etaža ima zasebnu klimatizacijsku jedinicu,
- apartman je potpuno namješten modernim namještajem,
- apartmanu pripada vrt i dva etažirana parkirna mjesta,
- useljivo odmah po isplati,
- dozvole: vlasnički, građevinska i uporabna dozvola,
- uredno vlasništvo 1/1, bez tereta i bez zapreka za prijenos na kupca,
- garantiramo sigurnost kupoprodajnog procesa,

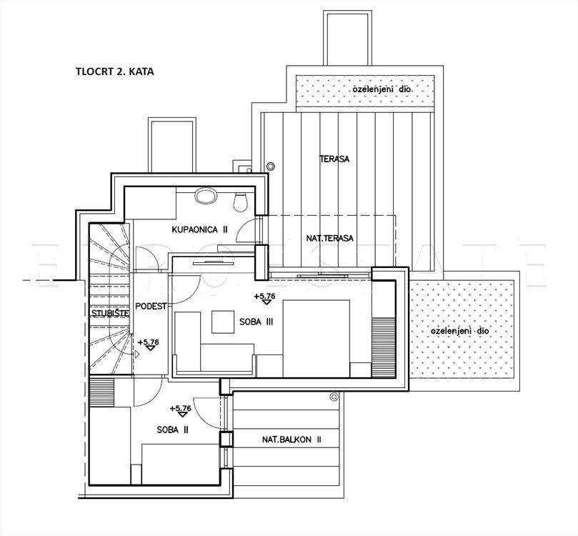
PROSTORIJE NEKRETNINE: vidjeti priložene tlocrte (oznaka S3) i popis prostorija

PRIZEMLJE: ulazni prostor, dnevni boravak / kuhinja / blagovaona, WC, prostorija za gospodarstvo, spremište, stubište, natkrivena terasa, vrt

PRVI KAT: stubište, TV salon / galerija, soba 1 / kupaonica 1, loggia, balkon 1

DRUGI KAT: podest, soba 2, soba 3, kupaonica 2, balkon 2

PRIPATCI: parkirno mjesto P7, parkirno mjesto P8

ZA VIŠE INFORMACIJA O NEKRETNINI I RAZGLEDAVANJE ISTE, MOLIMO KONTAKTIRAJTE NAS NA 098 652 059 ili 099 674 2492, HVALA !
Prilikom pregleda nekretnine potencijalnim kupcima ne naplaćuju se nikakvi troškovi.

KONAČNU CIJENU KUPAC UGOVARA OZRAVNO S PRODAVATELJEM NAKON PREGLEDA NEKRETNINE.
Χαρακτηριστικά
Τύπος
Διαμέρισμα | Πολυτελές ακίνητο
Συμβόλαιο
Πώληση | Επενδυτικό
Όροφος
Ισόγειο
Σύνολο ορόφων
2
Ανελκυστήρας
Όχι
Εμβαδόν
189 m²
Δωμάτια
3
Υπνοδωμάτια
3
Κουζίνα
Κουζίνα
Μπάνια
3
Επιπλωμένο
Ναι
Μπαλκόνι
Ναι
Βεράντα
Ναι
Γκαράζ, χώροι στάθμευσης
2 εξωτερικό
Θέρμανση
Κεντρική, ρεύμα
Κλιματισμός
Αυτόνομη, κρύο/ζέστη
Άλλα χαρακτηριστικά
  • Προσόψεως
  • Πόρτα ασφαλείας
  • Τριπλός υαλοπίνακας/ Συνθετικά κουφώματα
Πληροφορίες τιμής
Τιμή
€ 518.000
Τιμή ανά m²
2.741 €/m²
Ενεργειακή απόδοση

Κατανάλωση ενέργειας

Α

Ανακαλύψτε κάθε γωνιά του ακινήτου
+17
Πρόσθετες επιλογές

Επικοινώνησε με τον αγγελιοδότη

Ή