Μονοκατοικία βίλα 4 τμ, νέα, Mašićeva - Dobri dol, Ζάγκρεμπ

€ 3.090.000
5+
4 m²
3+
Ναι
Βεράντα

Σημείωση

Τελευταία ενημέρωση: 22/12/2025
Περιγραφή

This description has been translated automatically and may not be accurate

κωδικός: RE589301

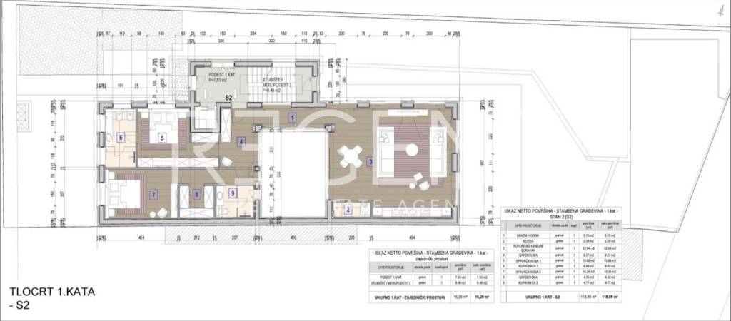
On one of the most desirable micro-locations in Zagreb, in Srebrnjak street in Šalata, a newly built villa of contemporary architectural expression is located. The property is situated in a quiet and green environment, with excellent connections to the city center and all key amenities. The villa is spread over four floors connected by an elevator and extends over 450 m² of living space, on a plot of land with a total area of 600 m². It is designed as a multi-apartment house, with the possibility of easy conversion into one representative family residence. The basement has a spacious garage with a capacity for five cars, an additional storage room and a utility room. The ground floor consists of a four-room apartment with access to a terrace and a landscaped garden. Upstairs is a spacious three-room apartment with a large living room and a covered roof terrace that provides additional outdoor space for living and relaxation. The property is built and equipped to high standards. Schüco aluminum joinery with triple glazing, electric blinds and shades, Daikin Altherma heat pump for heating and cooling, and underfloor heating are installed. The building has a Schindler elevator, an alarm system, video surveillance, security doors and preparation for smart management systems. Special attention has been paid to the horticultural landscaping of the yard. The villa has a total of five bedrooms, two uncovered outdoor parking spaces and an orientation towards the north, east and west. It is adapted for people with disabilities, and the energy certificate is in preparation. The documentation is in order, with a building permit and a title deed. Despite the quiet and secluded position, shops, kindergartens, bus lines and other everyday amenities are located in the immediate vicinity, which makes this location extremely functional for family life or investment. For additional information and arrangements for viewing, we are at your disposal.
Χαρακτηριστικά
Τύπος
Μονοκατοικία βίλα
Συμβόλαιο
Πώληση
Όροφος
Ισόγειο
Ανελκυστήρας
Ναι
Εμβαδόν
4 m²
Δωμάτια
5+
Υπνοδωμάτια
5
Μπάνια
3+
Βεράντα
Ναι
Γκαράζ, χώροι στάθμευσης
1 σε πάρκινγκ/κλειστό πάρκινγκ, 5 εξωτερικό
Θέρμανση
Κεντρική, ενδοδαπέδια θέρμανση, αντλία θέρμανσης
Κλιματισμός
Αυτόνομη, κρύο/ζέστη
Πληροφορίες τιμής
Τιμή
€ 3.090.000
Τιμή ανά m²
772.500 €/m²
Ενεργειακή απόδοση
  • Κατάσταση

    Νεόδμητο / Υπό κατασκευή
  • Θέρμανση

    Κεντρική, ενδοδαπέδια θέρμανση, αντλία θέρμανσης
  • Κλιματιστικό μηχάνημα

    Αυτόνομη, κρύο/ζέστη
  • Ενεργειακή πιστοποίηση

    Δεν υπόκειται
Σχέδιο ακινήτου
Ανακαλύψτε κάθε γωνιά του ακινήτου
+14
Πρόσθετες επιλογές

Επικοινώνησε με τον αγγελιοδότη

Ή