Σπίτι σε σειρά 3 δωμάτια, νέα, Varaždin

€ 353.121
3
113 m²
1
Όχι
Μπαλκόνι
Βεράντα

Σημείωση

Τελευταία ενημέρωση: 21/04/2026
Περιγραφή

κωδικός: 108201-152

Novogradnja u mirnom okruženju – funkcionalna kuća u nizu s vrtom

U prodaji je moderna stambena jedinica smještena u nizu od ukupno šest kuća, idealna za miran obiteljski život. Lokacija je tiha i ugodna, a istovremeno nudi brzu dostupnost svim bitnim sadržajima – u blizini se nalaze škole, vrtići, trgovine, ljekarna, pošta i sam centar grada.

Nekretnina se gradi prema načelu "ključ u ruke", a završetak radova predviđen je do kraja 2026. godine.

Karakteristike objekta:

- Dvije etaže: prizemlje + kat


- Ravno, neprohodno krovište


- Energetski razred A+


- Orijentacija kuće: sjever – jug



Instalacije i oprema:

- Grijanje putem električne dizalice topline u svim prostorijama


- Hlađenje osigurano klima uređajima


- Bijela PVC stolarija s troslojnim IZO staklom i ugrađenim roletama


- Kombinacija keramičkih pločica i parketa kao podne obloge


- Dodatno: vanjsko spremište uključeno u cijenu



Vrt i okućnica:
Uz kuću dolazi i vrt površine približno 92 m2, čija se cijena dodatno obračunava po 150 EUR/m2.

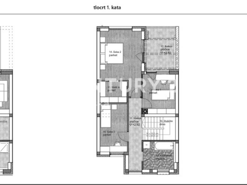
Raspored prostorija – vidi priloženi tlocrt i popis površina:

PRIZEMLJE:
Natkriveni ulaz, hodnik, WC, spremište ispod stubišta, kuhinja, blagovaonica, dnevni boravak s izlazom na natkrivenu terasu te vanjsko spremište.

KAT:
Stubište, hodnik, kupaonica, tri spavaće sobe (jedna s walk-in ormarom), te balkon.

Stojim vam na raspolaganju za više informacija;

Saša Martišek,

licencirani agent

T: 097 754 77 75

E: sasa.martisek@c21.hr

CENTURY 21 LIDER NEKRETNINE
Εάν θέλετε να μάθετε περισσότερα, μπορείτε να μιλήσετε με Saša Martišek.
Χαρακτηριστικά
Τύπος
Σπίτι σε σειρά | Ακίνητο μεσαίας κατηγορίας
Συμβόλαιο
Πώληση
Ανελκυστήρας
Όχι
Εμβαδόν
113 m²
Δωμάτια
3
Υπνοδωμάτια
3
Μπάνια
1
Μπαλκόνι
Ναι
Βεράντα
Ναι
Θέρμανση
Αυτόνομη, θέρμανση αέρος
Κλιματισμός
Αυτόνομη
Πληροφορίες τιμής
Τιμή
€ 353.121
Τιμή ανά m²
3.125 €/m²
Ενεργειακή απόδοση
  • Έτος κατασκευής

    2026
  • Κατάσταση

    Νεόδμητο / Υπό κατασκευή
  • Θέρμανση

    Αυτόνομη, θέρμανση αέρος
  • Κλιματιστικό μηχάνημα

    Αυτόνομη
Πρόσθετες επιλογές

Επικοινώνησε με τον αγγελιοδότη

Ή