Γκαρσονιέρα Povljana, Povljana

€ 162.000
1
52 m²
ΙΣ

Σημείωση

Τελευταία ενημέρωση: 03/03/2026
Περιγραφή

κωδικός: EUROVILLA-230280

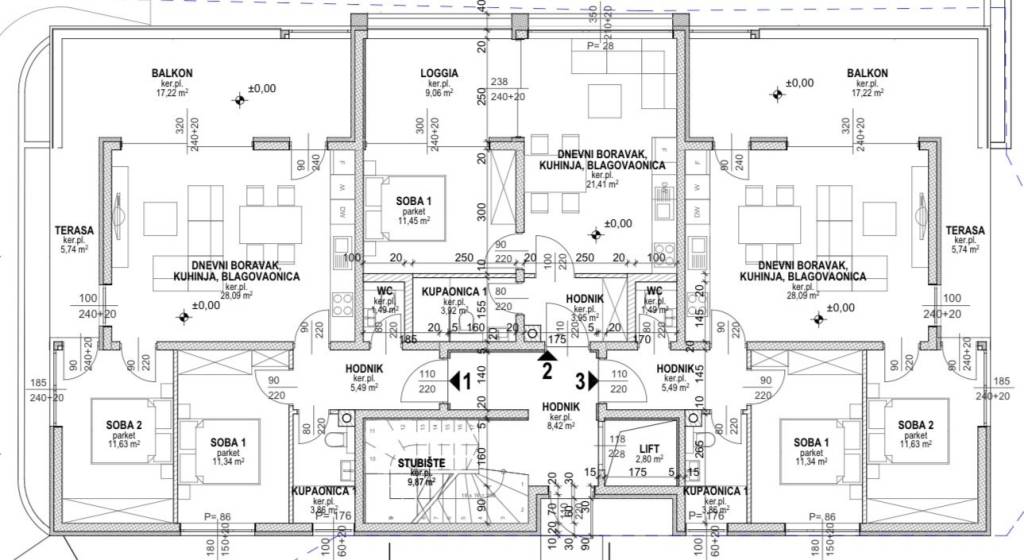
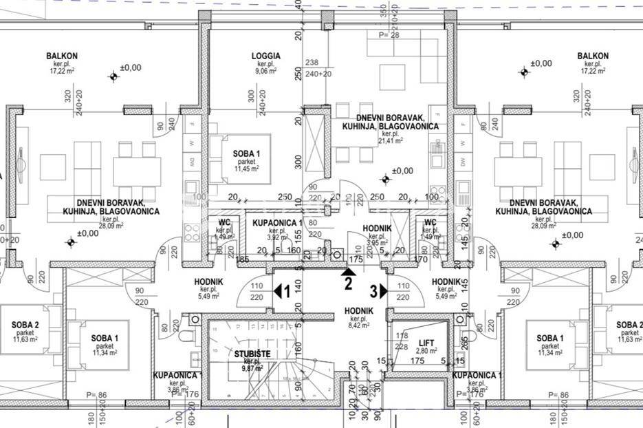
Predstavljamo Vam zgradu u novogradnji u poznatom turističkom odredištu na otoku Pagu, Povljani. Zgrada se sastoji od ukupno 8 stambenih jedinica raspoređenih na ukupno 4 etaže. Zgrada se nalazi 400 m od centra mjesta i svih sadržaja koji su potrebni za kvalitetan život ili odmor dok je od mora udaljena 800 m.STAN S2 - PRIZEMLJE - 52,72m2Stan S2 se nalazi u prizemlju zgrade te je ukupne neto korisne površine 52,72m2. Sastoji se od hodnika (3,95m2), otvorenog prostora kuhinje, blagovaonice i dnevnog boravka (21,41m2), spavaće sobe (11,45m2), potpuno opremljene kupaonice (3,92m2) te loggie (9,06m2). Stanu uz to pripada i spremište u podrumu zgrade (4,38m2) te jedno vanjsko parkirno mjesto.Predviđeno useljenje : 04/2026PDV JE UKLJUČEN U CIJENU STANA TE KUPAC NE PLAĆA POREZ NA PROMET NEKRETNINAMA.Od opreme i materijala valja izdvojit :Vrhunsku PVC stolariju s električnim roletama i ugrađenim komarnicimaMulti split sustav klimatizacije u svim spavaćim sobama te dnevnom boravkuToplinska izolacija debljine 10 cmPortafonLiftProtuprovalna i protupožarna vrataI još mnogo togaZa više informacija i dogovor oko razgledavanja obratite nam se s povjerenjem... Više na eurovilla.hr, ID: 230280
Εάν θέλετε να μάθετε περισσότερα, μπορείτε να μιλήσετε με Filip Luštica .
Χαρακτηριστικά
Τύπος
Διαμέρισμα
Συμβόλαιο
Πώληση
Όροφος
Ισόγειο
Εμβαδόν
52 m²
Δωμάτια
1
Υπνοδωμάτια
1
Λεπτομέρεια επιφάνειας

Κατοικία

Όροφος
Ισόγειο
Εμβαδόν
52,7 m²
Συντελεστής
100%
Τύπος επιφάνειας
Κύρια
Συνολική επιφάνεια
52,7 m²
Πληροφορίες τιμής
Τιμή
€ 162.000
Τιμή ανά m²
3.115 €/m²
Ενεργειακή απόδοση
  • Κατάσταση

    Νεόδμητο / Υπό κατασκευή
  • Ενεργειακή πιστοποίηση

    Δεν υπόκειται
Σχέδιο ακινήτου
Ανακαλύψτε κάθε γωνιά του ακινήτου
+9
Πρόσθετες επιλογές

Επικοινώνησε με τον αγγελιοδότη

Ή