Τριάρι Ludbreg, Ludbreg

€ 185.650
3
79 m²
ΙΣ
Βεράντα

Σημείωση

Τελευταία ενημέρωση: 03/03/2026
Περιγραφή

κωδικός: EUROVILLA-429627

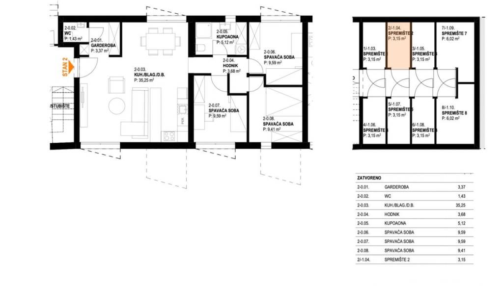
Ludbreg, Centar, moderan četverosoban stan, ukupno neto korisne površine 79,00 m2.Stan površine 77,44 m2 smješten u prizemlju zgrade sastoji od garderobe s WC-om, kuhinje, blagovaonice i dnevnog boravka u open space konceptu, hodnika, tri spavaće sobe, kupaonice i spremišta u podrumu 3,15 m².Projekt novogradnje u centru Ludbrega sastoji se od 8 modernih stanova. Stanovi se prostiru na tri etaže (podrum, prizemlje, 2 kata), a sama građevina pruža dvostranu orijentaciju stanova (sjeveroistok i jugozapad), što osigurava optimalnu količinu prirodne svjetlosti. Useljenje planirano za proljeće 2027. godine.Zgrada je projektirana s armiranobetonskim sustavom debljine 20 cm i vrhunskom toplinskom izolacijom od mineralne vune, koja jamči izuzetnu energetsku učinkovitost i udobnost prostora.Stanovi su opremljeni:dizalicama toplinevelikim staklenim stijenkama s troslojnim staklima punjenim argonomprotuprovalnim i protupožarnim ulaznim vratimazavršne podne obloge bit će izvedene od parketa i keramike, ovisno o namjeni prostorijeOvaj stan idealan je za obitelj koja traži moderan, energetski učinkovit stan u blizini svih sadržaja i centra Ludbrega.Za više informacija i dogovor o razgledu, slobodno nas kontaktirajte.... Više na eurovilla.hr, ID: 429627
Εάν θέλετε να μάθετε περισσότερα, μπορείτε να μιλήσετε με Kristina Tomiek.
Χαρακτηριστικά
Τύπος
Διαμέρισμα
Συμβόλαιο
Πώληση
Όροφος
Ισόγειο
Εμβαδόν
79 m²
Δωμάτια
3
Υπνοδωμάτια
3
Βεράντα
Ναι
Λεπτομέρεια επιφάνειας

Κατοικία

Όροφος
Ισόγειο
Εμβαδόν
79,0 m²
Συντελεστής
100%
Τύπος επιφάνειας
Κύρια
Συνολική επιφάνεια
79,0 m²
Πληροφορίες τιμής
Τιμή
€ 185.650
Τιμή ανά m²
2.350 €/m²
Ενεργειακή απόδοση
  • Κατάσταση

    Νεόδμητο / Υπό κατασκευή
  • Ενεργειακή πιστοποίηση

    Δεν υπόκειται
Σχέδιο ακινήτου
Ανακαλύψτε κάθε γωνιά του ακινήτου
+2
Πρόσθετες επιλογές

Επικοινώνησε με τον αγγελιοδότη

Ή