Δυάρι Povljana, Povljana

€ 380.064
2
118 m²
2
Μπαλκόνι
Βεράντα

Σημείωση

Τελευταία ενημέρωση: 01/04/2026
Περιγραφή

κωδικός: EUROVILLA-616100

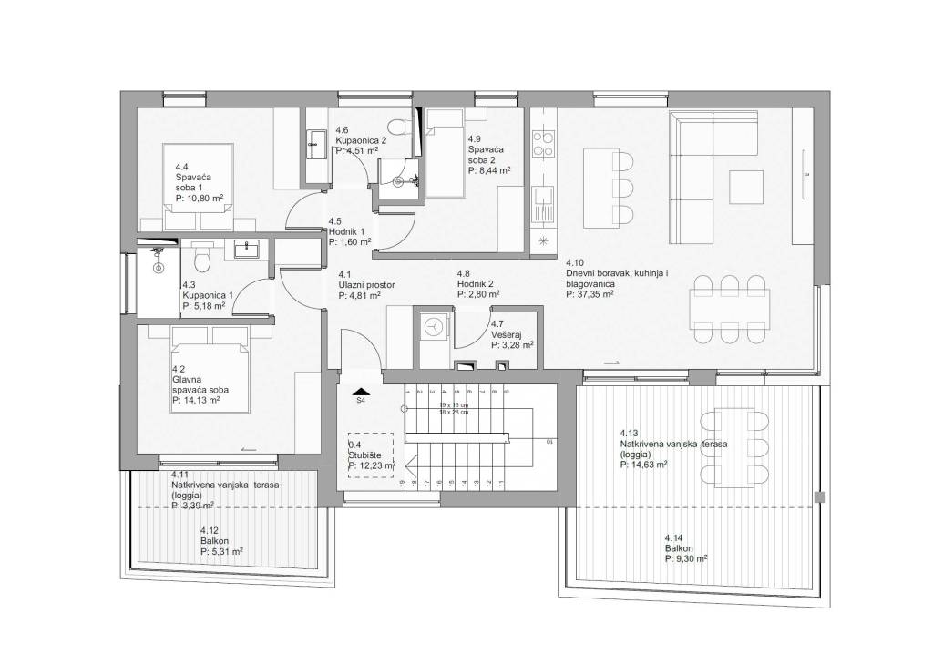
Pag, Povljana, trosoban penthouse 118,77 m2 nalazi se u stambenoj zgradi sa sveukupno četiri stana.Stan S4 sastoji se od ulaznog prostora, kuhinje, blagovaonice i dnevnog boravka površine 37,35 m2, tri spavaće sobe, dvije kupaonice, vešaraja te terasa s pogledom na more.Stanu pripadaju dva vanjska parkirna mjesta.Zgrada je udaljena 650m od mora i 950m od poznate plaze Dubrovnik.Oprema:podno grijanje u kuponicama, Multisplit sustav klima: u svakoj sobi/prostoriji postavljen je klima uređajprotupožarna i protuprovalna vrataelektrične rolete i komarnicivisokokvalitetna keramikaUseljenje je planorano krajem 2025. godine.Stojimo Vam na raspolaganju za dodatna pitanja.... Više na eurovilla.hr, ID: 616100
Εάν θέλετε να μάθετε περισσότερα, μπορείτε να μιλήσετε με Doris Hromin.
Χαρακτηριστικά
Τύπος
Διαμέρισμα
Συμβόλαιο
Πώληση
Όροφος
2
Εμβαδόν
118 m²
Δωμάτια
2
Υπνοδωμάτια
2
Μπαλκόνι
Ναι
Βεράντα
Ναι
Λεπτομέρεια επιφάνειας

Κατοικία

Όροφος
2
Εμβαδόν
118,8 m²
Συντελεστής
100%
Τύπος επιφάνειας
Κύρια
Συνολική επιφάνεια
118,8 m²
Πληροφορίες τιμής
Τιμή
€ 380.064
Τιμή ανά m²
3.221 €/m²
Ενεργειακή απόδοση
  • Κατάσταση

    Νεόδμητο / Υπό κατασκευή
  • Ενεργειακή πιστοποίηση

    Δεν υπόκειται
Σχέδιο ακινήτου
Ανακαλύψτε κάθε γωνιά του ακινήτου
+3
Πρόσθετες επιλογές

Επικοινώνησε με τον αγγελιοδότη

Ή