Δυάρι Cres, Cres

€ 415.000
2
81 m²
3
Βεράντα

Σημείωση

Τελευταία ενημέρωση: 03/03/2026
Περιγραφή

κωδικός: EUROVILLA-791338

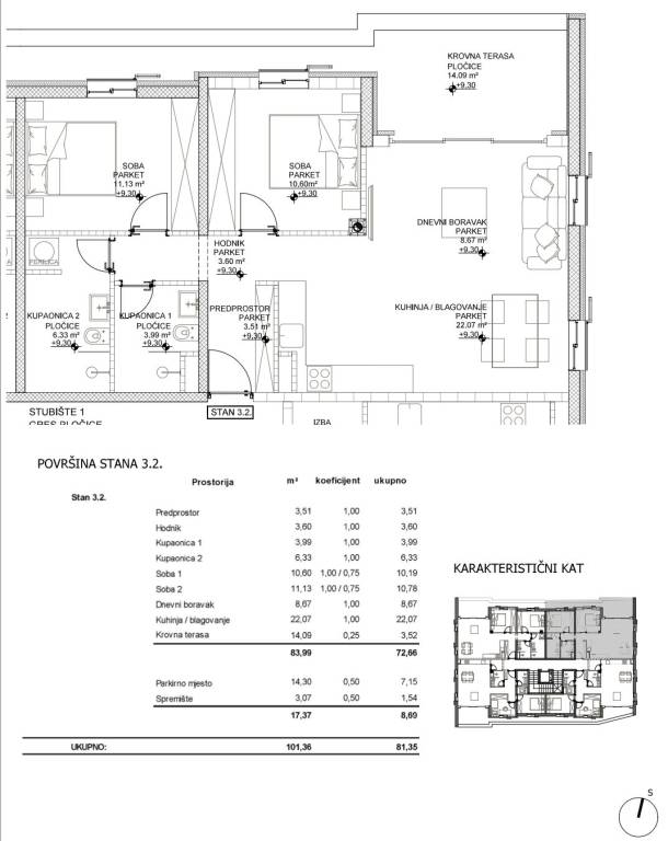
Grad Cres, Centar, trosoban stan na odličnoj lokaciji, NOVOGRADNJA.U samom centru grada Cresa, na svega 100 metara od mora i u neposrednoj blizini povijesne gradske jezgre, smješten je ovaj atraktivan i moderno koncipiran trosoban stan s krovnom terasom, unutar suvremene poslovno-stambene zgrade visoke kvalitete gradnje.Stan se nalazi na trećem katu zgrade te ima ukupnu obračunsku površinu 81,35 m², dok stvarna površina stana s pripadajućim dijelovima iznosi 101,36 m². Sastoji se od ulaznog prostora i hodnika, dvije kupaonice, dvije spavaće sobe, dnevnog boravka povezanog s kuhinjom i blagovaonicom te krovne terase površine 14,09 m², koja predstavlja iznimnu vrijednost ove nekretnine i pruža ugodan prostor za boravak na otvorenom.Stanu pripada i spremište u suterenu te parkirno mjesto u podzemnoj garaži, što predstavlja značajnu prednost u centru grada.Stan je projektiran s naglaskom na funkcionalnost i udobnost, a opremljen je kvalitetnim materijalima i modernim sanitarijama, podnim grijanjem, PVC stolarijom te griljama za zaštitu od sunca.Zgrada se prostire kroz pet etaža i obuhvaća podzemnu garažu u suterenu, tri poslovna prostora u prizemlju te ukupno 14 stanova raspoređenih na tri gornje etaže. Nalazi se na iznimnoj lokaciji u samom srcu Cresa, okružena trgovinama, restoranima, kafićima, kulturnim i zabavnim sadržajima, uz odličnu dostupnost javnog prijevoza.Ova nekretnina predstavlja izvrsnu priliku za stanovanje, ali i kao investicija za turistički ili dugoročni najam, zahvaljujući svojoj lokaciji, kvaliteti gradnje i funkcionalnom rasporedu.Za dodatne informacije slobodno nas kontaktirajte!... Više na eurovilla.hr, ID: 791338
Εάν θέλετε να μάθετε περισσότερα, μπορείτε να μιλήσετε με Borna Radović.
Χαρακτηριστικά
Τύπος
Διαμέρισμα
Συμβόλαιο
Πώληση
Όροφος
3
Εμβαδόν
81 m²
Δωμάτια
2
Υπνοδωμάτια
2
Βεράντα
Ναι
Λεπτομέρεια επιφάνειας

Κατοικία

Όροφος
3
Εμβαδόν
81,4 m²
Συντελεστής
100%
Τύπος επιφάνειας
Κύρια
Συνολική επιφάνεια
81,4 m²
Πληροφορίες τιμής
Τιμή
€ 415.000
Τιμή ανά m²
5.123 €/m²
Ενεργειακή απόδοση
  • Κατάσταση

    Νεόδμητο / Υπό κατασκευή
  • Ενεργειακή πιστοποίηση

    Δεν υπόκειται
Σχέδιο ακινήτου
Ανακαλύψτε κάθε γωνιά του ακινήτου
+6
Πρόσθετες επιλογές

Επικοινώνησε με τον αγγελιοδότη

Ή