Δυάρι Vir, Vir

€ 185.000
2
67 m²
ΙΣ
Βεράντα

Σημείωση

Τελευταία ενημέρωση: 07/03/2026
Περιγραφή

κωδικός: EUROVILLA-354110

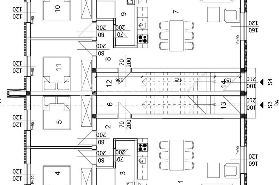
OTOK VIR (Smratine) – Prizemni stan s dvorištem i parkirnim mjestom | cca 350 m od moraU ponudi je stan u prizemlju moderne novogradnje na otoku Viru, u predjelu Smratine, na mirnoj lokaciji okruženoj prirodom. Nekretnina je udaljena otprilike 350 metara od mora, a do plaže se dolazi kratkom šetnjom.Stan je prikladan za vlastito korištenje (odmor ili cjelogodišnji boravak), ali i kao sigurna opcija za turistički najam, posebno zbog pripadajućeg dvorišta i riješenog parkinga.Stan 2 – prizemlje lijevo | 66,47 m²Stan 2 se nalazi u prizemlju zgrade te je unutarnje neto stambene površine 66,46m2. Sastoji se od otvorenog prostora kuhinje, blagovaonice i dnevnog boravka (28,81m2), predprostora (4,43m2), dvije spavaće sobe (10,80m2 i 10,80m2), hodnika (4,43m2) i ostave(5,64m2). Stanu uz to pripada prostrano dvorište (81,43m2) i vanjsko parkirno mjesto (12,50m2).Oprema i izvedbaPVC stolarija s komarnicimaelektrične rolete (tipkalo)klima uređaj u svakoj sobi (hlađenje/grijanje)podno grijanje u kupaonici + ljestve radijatorPodne obloge:pločice: kupaonica, kuhinja i hodniklaminat: dnevni boravak i spavaće sobeTehnički:spremnik za vodubetonska septička jamafasadna izolacija 10 cmu planu priključak na gradski vodovod i kanalizaciju (prema planu Općine Vir)Cijena185.000 € – ključ u ruke (kupnja u fazi izgradnje)210.000 € – ključ u ruke (završena nekretnina)Objekt je trenutno cca 70% izgrađen.Planirano useljenje: do kraja 2026. godine.Kupac ne plaća 3% poreza na promet nekretninaZa dodatne informacije, dokumentaciju i dogovor oko razgleda stojim na raspolaganju.... Više na eurovilla.hr, ID: 354110
Εάν θέλετε να μάθετε περισσότερα, μπορείτε να μιλήσετε με Filip Luštica .
Χαρακτηριστικά
Τύπος
Διαμέρισμα
Συμβόλαιο
Πώληση
Όροφος
Ισόγειο
Εμβαδόν
67 m²
Δωμάτια
2
Υπνοδωμάτια
2
Βεράντα
Ναι
Λεπτομέρεια επιφάνειας

Κατοικία

Όροφος
Ισόγειο
Εμβαδόν
67,0 m²
Συντελεστής
100%
Τύπος επιφάνειας
Κύρια
Συνολική επιφάνεια
67,0 m²
Πληροφορίες τιμής
Τιμή
€ 185.000
Τιμή ανά m²
2.761 €/m²
Ενεργειακή απόδοση
  • Κατάσταση

    Νεόδμητο / Υπό κατασκευή
  • Ενεργειακή πιστοποίηση

    Δεν υπόκειται
Σχέδιο ακινήτου
Ανακαλύψτε κάθε γωνιά του ακινήτου
+7
Πρόσθετες επιλογές

Επικοινώνησε με τον αγγελιοδότη

Ή