Μονοκατοικία Lovinac, Lovinac

€ 670.000
5+
550 m²

Σημείωση

Τελευταία ενημέρωση: 09/03/2026
Περιγραφή

κωδικός: EUROVILLA-940545

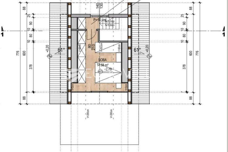
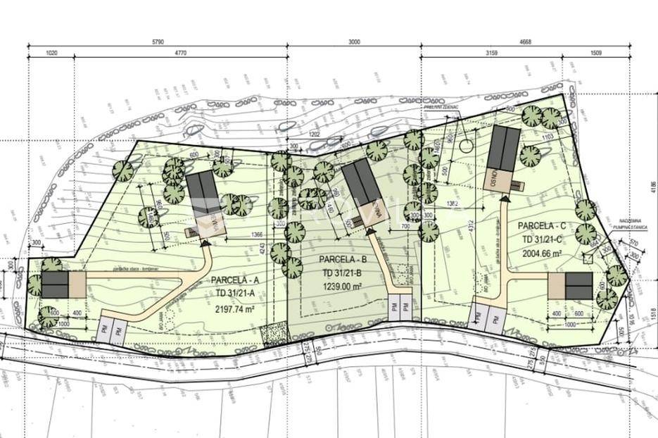
Na prodaju je jedinstveni investicijski projekt smješten u netaknutoj prirodi Like, svega 2 km od Lovinca. Lokacija pruža savršen spoj mira, prirode i odlične prometne povezanosti, što ovaj projekt čini idealnim za razvoj luksuznog ruralnog turizma, wellness resorta ili turističkog kompleksa za aktivni odmor.Projekt obuhvaća 5.500 m² građevinskog zemljišta raspoređenog na tri parcele (A, B i C) te dodatnih 10.000 m² poljoprivrednog zemljišta. Planirana je izgradnja ukupno pet objekata – tri luksuzne vile površine 150 m² i dvije manje kuće površine 70 m². Ukupna planirana stambena površina iznosi 550 m², a maksimalni kapacitet smještaja predviđen je za do 32 gosta.Do sada je realizirano približno 60 % radova. Izvedene su betonske konstrukcije, postavljeni krovovi, izgrađen je bunar te je izvedena krovna izolacija.Dokumentacija je uredna – vlasništvo je 1/1, a građevinska dozvola je ishođena.Projekt se može kupiti u cijelosti ili po parcelama. Parcela A, koja uključuje veliku i malu kuću, prodaje se po cijeni od 245.000 €. Parcela B, na kojoj je predviđena velika kuća, prodaje se po cijeni od 180.000 €. Parcela C, koja također uključuje veliku i malu kuću, prodaje se po cijeni od 245.000 €. Cijena za kompletan projekt iznosi 670.000 €.Lokacija je odlično prometno povezana – 200 km od Zagreba, 180 km od Splita, 60 km od Zadra te 40 km od mora i plaže u Rovanjskoj. U radijusu od sat vremena vožnje nalazi se čak šest nacionalnih parkova – Plitvička jezera, Paklenica, Sjeverni Velebit, Krka, Kornati i Una – što ovoj lokaciji daje izniman potencijal za razvoj turizma tijekom cijele godine.Ovaj projekt predstavlja izvrsnu priliku za investitore koji žele razviti boutique resort, eco resort ili luksuzni turistički kompleks u prirodnom okruženju.Za više informacija i detalje projekta slobodno nas kontaktirajte.... Više na eurovilla.hr, ID: 940545
Εάν θέλετε να μάθετε περισσότερα, μπορείτε να μιλήσετε με Ivana Žuklić Deluka.
Χαρακτηριστικά
Τύπος
Μονοκατοικία
Συμβόλαιο
Πώληση
Όροφος
Ισόγειο
Εμβαδόν
550 m²
Δωμάτια
5+
Υπνοδωμάτια
20
Λεπτομέρεια επιφάνειας

Κατοικία

Όροφος
Ισόγειο
Εμβαδόν
550,0 m²
Συντελεστής
100%
Τύπος επιφάνειας
Κύρια
Συνολική επιφάνεια
550,0 m²
Πληροφορίες τιμής
Τιμή
€ 670.000
Τιμή ανά m²
1.218 €/m²
Ενεργειακή απόδοση
  • Ενεργειακή πιστοποίηση

    Δεν υπόκειται
Ανακαλύψτε κάθε γωνιά του ακινήτου
+30
Πρόσθετες επιλογές

Επικοινώνησε με τον αγγελιοδότη

Ή