Τριάρι Jelenovac, Črnomerec, Šestinski dol, Ζάγκρεμπ

€ 575.000
3
94 m²
2
1
Όχι
Βεράντα

Σημείωση

Τελευταία ενημέρωση: 18/04/2026
Περιγραφή

This description has been translated automatically and may not be accurate

κωδικός: 15952

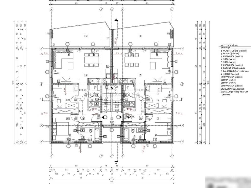
A three room apartment is for sale in a luxury new development in Jelenovac.

The apartment is located on the first floor of a newly built building and consists of a living room with kitchen and dining area, two bedrooms, two bathrooms, a spacious covered terrace and an entrance hallway.

The apartment also includes a garage parking space with a storage room of 18 m2 in the basement, as well as one outdoor parking space.

The property stands out for its high level of equipment and energy efficiency. The building is constructed according to NZEB standards nearly zero energy building which may enable more favourable mortgage conditions.

Heating is provided by a heat pump with underfloor heating throughout the apartment, while each room is equipped with its own air conditioning unit for cooling. Aluminium joinery and electric smart shutters are installed.

The interior features A class parquet and ceramic finishes, with the possibility for the buyer to choose materials. Ceiling height of 280 cm adds to the sense of space and modern comfortable living.

For any additional information or to arrange a viewing, please feel free to contact us.

In the case of a successful transaction through our agency, a brokerage fee is payable.

Contact person: Vito, +385 91 622 7421

ID CODE: 15952

Vito Glavičić
Mob: +385 91 622 7421
E-mail: vito@luvarealestates.com
www.luvarealestates.com
Χαρακτηριστικά
Τύπος
Διαμέρισμα
Συμβόλαιο
Πώληση
Όροφος
1 όροφος
Ανελκυστήρας
Όχι
Εμβαδόν
94 m²
Δωμάτια
3
Υπνοδωμάτια
3
Μπάνια
2
Μπαλκόνι
Όχι
Βεράντα
Ναι
Κλιματισμός
Αυτόνομη, κρύο/ζέστη
Πληροφορίες τιμής
Τιμή
€ 575.000
Τιμή ανά m²
6.117 €/m²
Ενεργειακή απόδοση
  • Κλιματιστικό μηχάνημα

    Αυτόνομη, κρύο/ζέστη
  • Ενεργειακή πιστοποίηση

    Χωρίς ταξινόμηση
Ανακαλύψτε κάθε γωνιά του ακινήτου
+12
Πρόσθετες επιλογές

Επικοινώνησε με τον αγγελιοδότη

Ή