Τριάρι Brezovec Zelinski, Sveti Ivan Zelina

€ 227.786
3
87 m²
2
Βεράντα

Σημείωση

Τελευταία ενημέρωση: 03/03/2026
Περιγραφή

κωδικός: EUROVILLA-821866

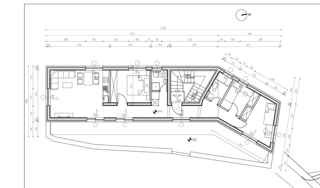
Četverosoban stan ukupne neto korisne površine 87,61 m2 smješten na 2. katu.Sastoji se od 2 hodnika, 2 kupaonice, 3 spavaće sobe, dnevnog boravka s blagovaonicom te kuhinje.Pripadaju mu terasa te vanjsko parkirno mjesto.-----U okviru novogradnje planirana je izgradnja stambene zgrade s pet stambenih jedinica. Građevina nepravilnog tlocrta dimenzija 24,31 x 9,54 m, ukupne tlocrtne površine 172,31 m², sastoji se od prizemlja, dva kata i prednje terase na drugom katu. Ulaz je smješten s jugoistočne strane, a raspored stanova organiziran je tako da se u prizemlju i na prvom katu nalaze po dvije stambene jedinice, dok je na uvučenom drugom katu smješten jedan stan s pripadajućom terasom.Nosiva konstrukcija predviđena je u armiranobetonskoj izvedbi s trakastim temeljima, međukatnim i krovnim pločama. Fasada se izvodi u ETICS sustavu s toplinskom izolacijom od mineralne vune debljine minimalno 15 cm i završnom obradom silikatnom žbukom. Vanjska stolarija planirana je od PVC ili aluminijskih profila s dvostrukim ili trostrukim IZO staklom, a za zaštitu od sunca predviđene su rolete.Unutarnji pregradni zidovi izvode se u gips-kartonskom sustavu, dok se svi zidovi i stropovi završno obrađuju gletanjem i bojanjem. Kuhinje se oblažu keramičkim pločicama, a unutarnja vrata izrađuju se od punog drveta ili u kombinaciji sa staklom. Podne obloge planirane su u parketu ili keramici, ovisno o namjeni prostora.Zgrada je projektirana s cjelovitom toplinskom, hidro i zvučnom izolacijom. Krovna hidroizolacija izvodi se bitumenskim trakama, dok se toplinska izolacija predviđa mineralnom vunom ili XPS pločama debljine minimalno 20 cm. Sve stambene jedinice imaju osigurano prirodno osvjetljenje i ventilaciju.... Više na eurovilla.hr, ID: 821866
Εάν θέλετε να μάθετε περισσότερα, μπορείτε να μιλήσετε με Ivan Guina.
Χαρακτηριστικά
Τύπος
Διαμέρισμα
Συμβόλαιο
Πώληση
Όροφος
2
Εμβαδόν
87 m²
Δωμάτια
3
Υπνοδωμάτια
3
Βεράντα
Ναι
Λεπτομέρεια επιφάνειας

Κατοικία

Όροφος
2
Εμβαδόν
87,6 m²
Συντελεστής
100%
Τύπος επιφάνειας
Κύρια
Συνολική επιφάνεια
87,6 m²
Πληροφορίες τιμής
Τιμή
€ 227.786
Τιμή ανά m²
2.618 €/m²
Ενεργειακή απόδοση
  • Κατάσταση

    Νεόδμητο / Υπό κατασκευή
  • Ενεργειακή πιστοποίηση

    Δεν υπόκειται
Σχέδιο ακινήτου
Πρόσθετες επιλογές

Επικοινώνησε με τον αγγελιοδότη

Ή