Διαμέρισμα άριστη κατάσταση, ισόγειο, Staro Brestje, Ζάγκρεμπ

€ 234.300
5
78 m²
1
ΙΣ

Σημείωση

Τελευταία ενημέρωση: 10/04/2026
Περιγραφή

This description has been translated automatically and may not be accurate

κωδικός: 998-1

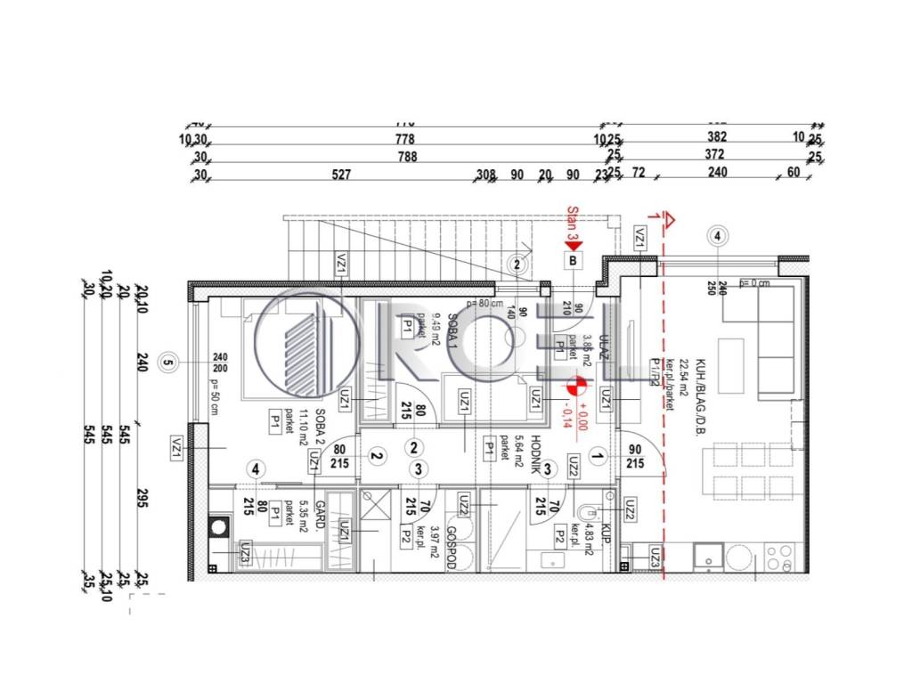
We offer a three-bedroom apartment with an area of 69.77 m, located on the ground floor of a newly built building from 2013 in the Sesvete area. It consists of a living room with a kitchen and a dining room, two bedrooms, one of which has a walk-in closet or dressing room, a bathroom with a toilet, and a laundry room/utility room. The apartment is oriented to the south and east, which gives the space pleasant light.
The total net usable area (NUA) of the apartment with all its belongings is 79.3 m, and the calculation includes: the interior area of the apartment (69.7 m), two parking spaces (each 11.5 m, or a total net 2.9 m), and a garden of 67.33 m (net 6.7 m).
The space was previously used as a business space, and is currently being converted into an apartment and is undergoing complete renovation. Everything will be completely new walls, floors, sanitary facilities, installations and equipment. Heating is provided by heat pumps with underfloor heating or fan coils, ensuring high energy efficiency and living comfort. The planned move-in date is January 2026.The location has excellent transport connections the bus station (lines 269 and 270) is just a few minutes' walk away, while the Sesvete train station is approximately 10 minutes' walk away, which provides quick and convenient access to the center of Zagreb.
Εάν θέλετε να μάθετε περισσότερα, μπορείτε να μιλήσετε με Maja Nikolić.
Χαρακτηριστικά
Τύπος
Διαμέρισμα
Συμβόλαιο
Πώληση
Όροφος
Ισόγειο
Εμβαδόν
78 m²
Δωμάτια
5
Υπνοδωμάτια
2
Μπάνια
1
Πληροφορίες τιμής
Τιμή
€ 234.300
Τιμή ανά m²
3.004 €/m²
Ενεργειακή απόδοση
  • Έτος κατασκευής

    2013
  • Κατάσταση

    Πολύ καλή / Ανακαινισμένο
  • Ενεργειακή πιστοποίηση

    Χωρίς ταξινόμηση
Ανακαλύψτε κάθε γωνιά του ακινήτου
+3
Πρόσθετες επιλογές

Επικοινώνησε με τον αγγελιοδότη

Ή