Τεσσάρι νέο, δεύτερος όροφος, Gajnice, Ζάγκρεμπ

€ 613.360
4
153 m²
3
2
Ναι
Βεράντα

Σημείωση

Τελευταία ενημέρωση: 28/04/2026
Περιγραφή

κωδικός: 145

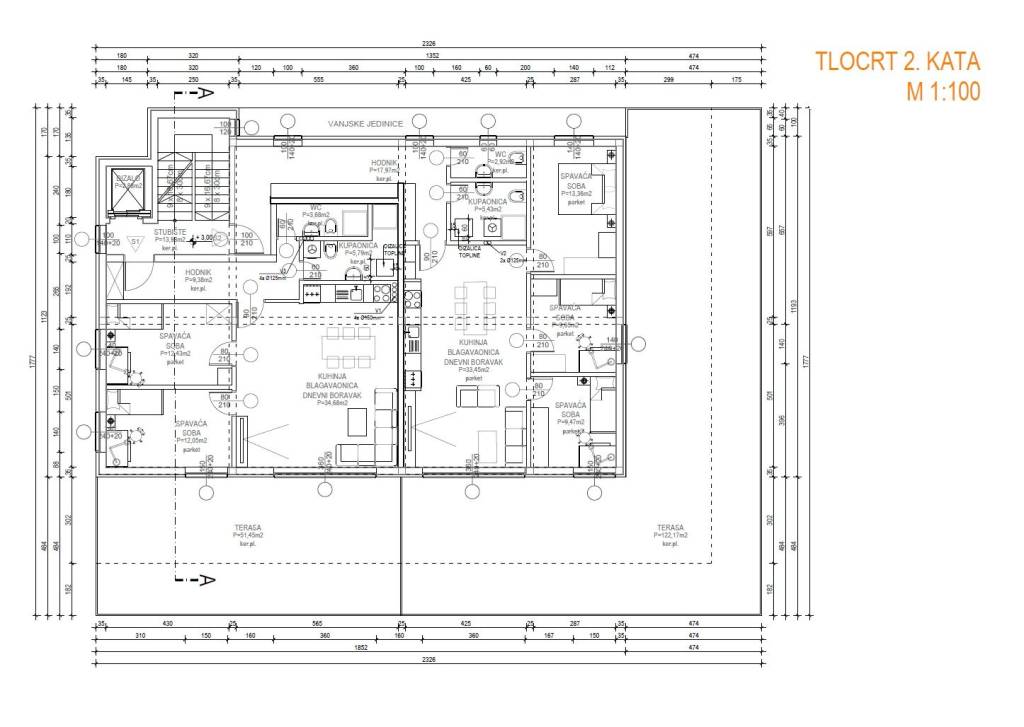
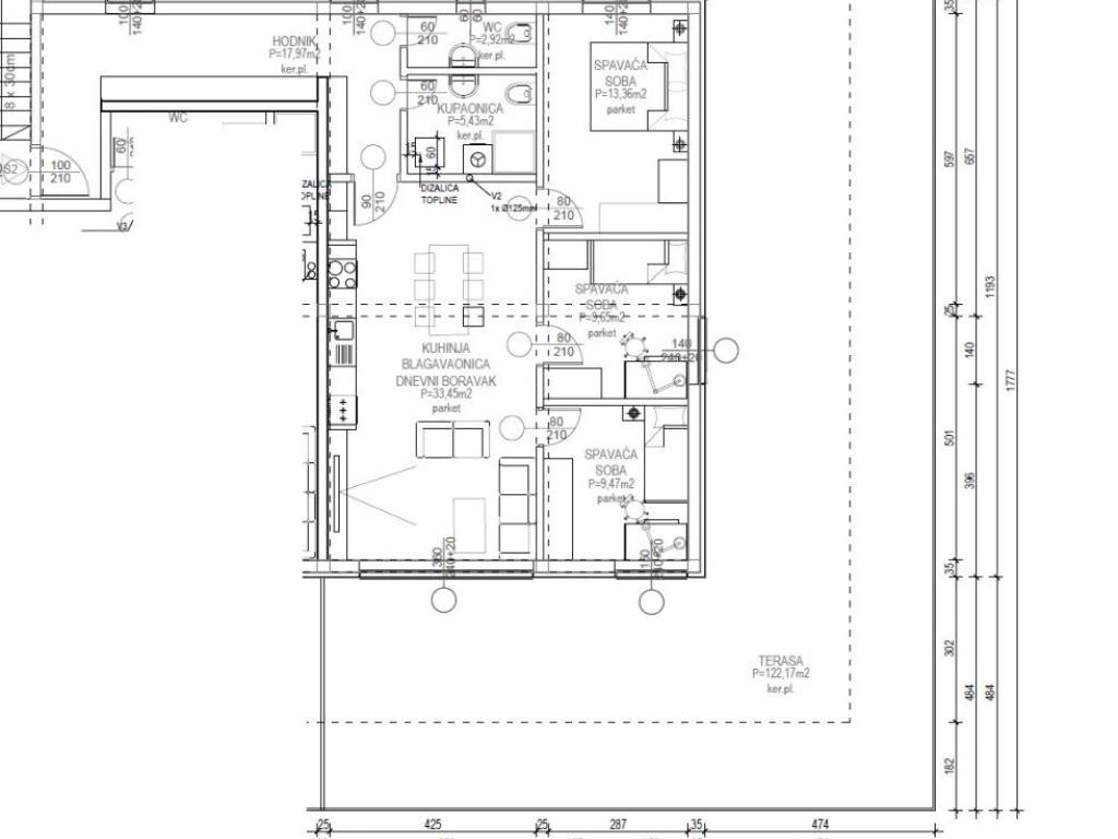
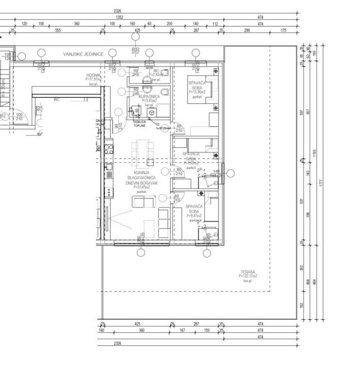
Prodajemo četverosoban stanu u novogradnji na 2. katu zgrade, naselje Stenjevec - Gajnice
PRVI KAT
Stan S-4 sastoji se od; hodnik, dnevni boravak s kuhinjom i blagovaonicom, 3 sobe, kupaonica, zasebni WC, natkrivena terasa.
POVRŠINE:
- ulazni hodnik 17,97 m2
- dn. boravak, blagovaonica i kuhinja 33,45 m2
- kupaonica 5,43 m2
- WC 2,92 m2
- spavaća soba 13,36 m2
- spavaća soba 9,65 m2
- spavaća soba 9,47 m2
- natkrivena terasa (122,17 m2) obračunski 61,09 m2
‍UKUPNA POVRŠINA STANA iznosi 153,34 m2
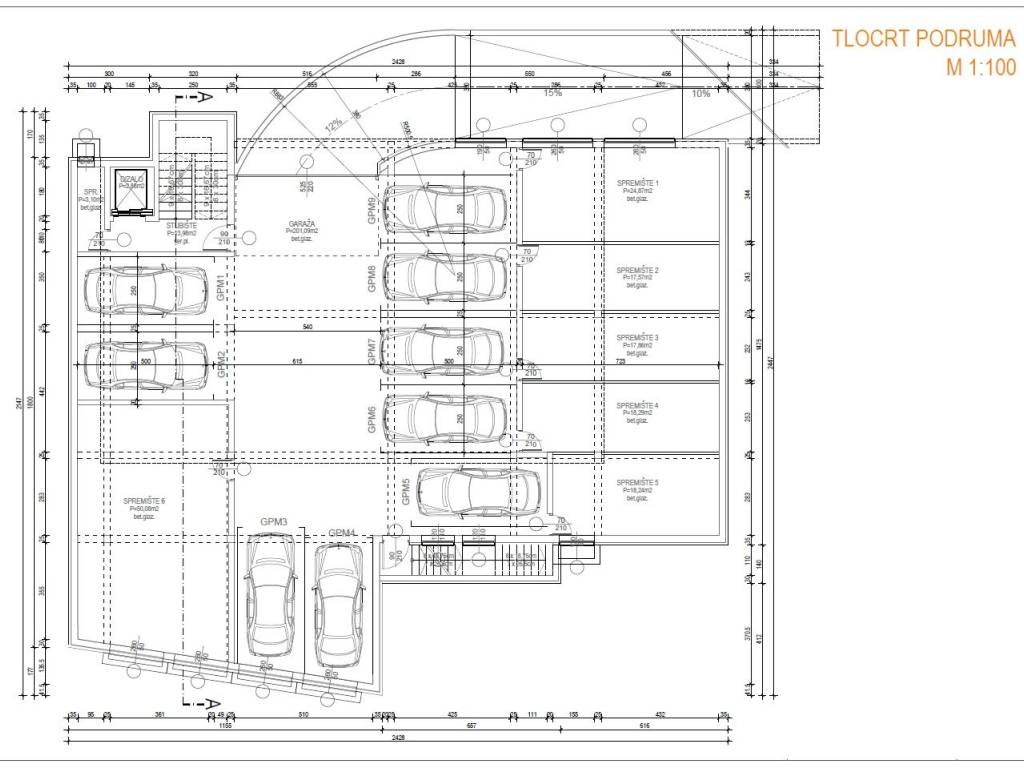
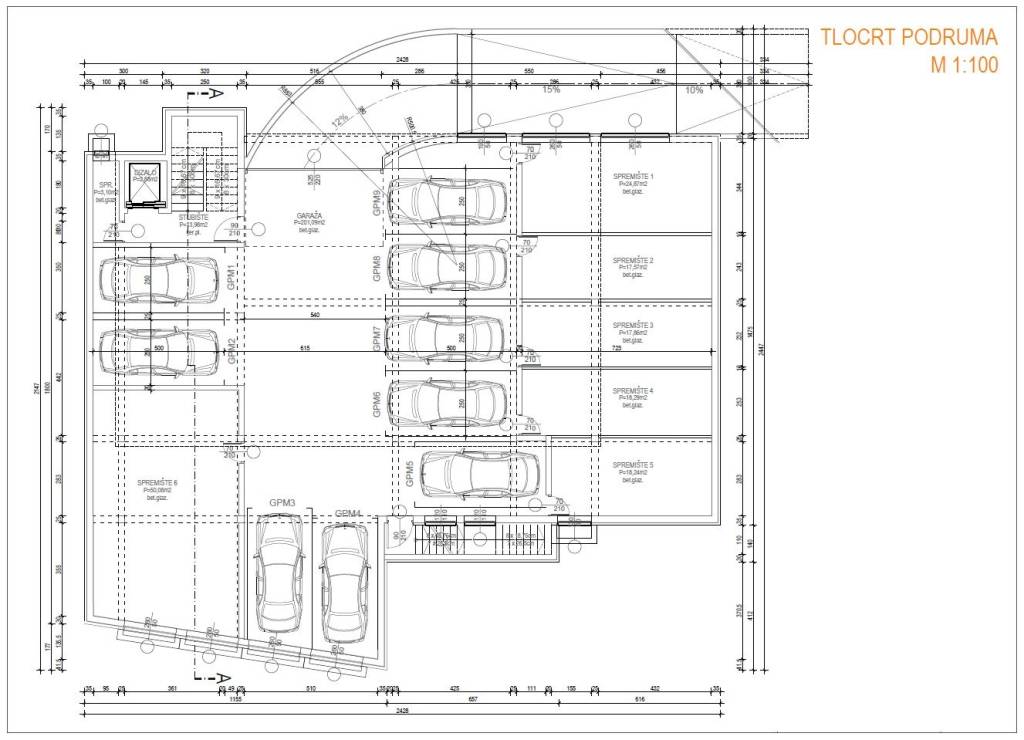
‍Obvezna kupnja garažnog parkirnog mjesta i spremišta.
Započela je gradnja stambene zgrade koja se gradi u naselju Stenjevec - Gajnice. Predviđen završetak gradnje i useljenje krajem 2026 godine.
Za sve detalje kao i za cijenu organiziramo sastanak sa investitorom.
NOVI PROJEKT 5 stanova
PODRUM: garažno parkirna mjesta i spremišta
PRIZEMLJE: poslovni prostor i parkirna mjesta
PRVI KAT; dva stana – trosoban i četverosoban
DRUGI KAT: dva stana – trosoban i četverosoban
TREĆI/UVUČENI KAT: četverosoban stan PENTHOUSE 164 m2
DIZALO/LIFT od podruma do trećeg kata.
ŽELITE LI PRODATI SVOJ STAN?AGENCIJSKA USLUGA KOD PRODAJE STANA VEĆ OD 2%!Više od 28 godina iskustva u prodaji stanova!Brza i sigurna prodaja stana!Obratite nam se s povjerenjem!
Za ovu nekretninu kontaktirati agenta s položenim stručnim ispitom Domagoj MiškecMob: +385 91 3730 099 - Viber, WhatsAppTel: 01 3730 099, 01 3734 793E-mail: kontakt@euro-interijeri.hr, domagoj.miskec@euro-interijeri.hrwww.euro-interijeri.hrEuro-interijeri - agencija za poslovanje nekretninama.
Sjedište agencije/adresa: Ante Topić Mimare 3a, Zagreb.
Εάν θέλετε να μάθετε περισσότερα, μπορείτε να μιλήσετε με Domagoj Miškec.
Χαρακτηριστικά
Τύπος
Διαμέρισμα
Συμβόλαιο
Πώληση
Όροφος
2
Σύνολο ορόφων
3
Ανελκυστήρας
Ναι
Εμβαδόν
153 m²
Δωμάτια
4
Υπνοδωμάτια
3
Μπάνια
3
Βεράντα
Ναι
Γκαράζ, χώροι στάθμευσης
1 εξωτερικό
Θέρμανση
Αυτόνομη, θέρμανση αέρος, αντλία θέρμανσης
Κλιματισμός
Αυτόνομη, κρύο/ζέστη
Άλλα χαρακτηριστικά
  • Πόρτα ασφαλείας
  • Ενδοεπικοινωνία με βίντεο
Λεπτομέρεια επιφάνειας

Κατοικία

Όροφος
2
Εμβαδόν
153,0 m²
Συντελεστής
100%
Τύπος επιφάνειας
Κύρια
Συνολική επιφάνεια
153,0 m²
Πληροφορίες τιμής
Τιμή
€ 613.360
Τιμή ανά m²
4.009 €/m²
Λεπτομέρειες κόστους
Κοινόχρηστα
Χωρίς κοινόχρηστα έξοδα
Ενεργειακή απόδοση

Κατανάλωση ενέργειας

Α

Σχέδιο ακινήτου
Prodaja stanova Zagreb, Stenjevec - novogradnja tlocrt stana S4
Prodaja stanova Zagreb, Stenjevec - novogradnja tlocrt drugog kata
Prodaja stanova Zagreb, Stenjevec - novogradnja tlocrt podruma
Prodaja stanova Zagreb, Stenjevec - novogradnja presjek zgrade
Ανακαλύψτε κάθε γωνιά του ακινήτου
+10
Πρόσθετες επιλογές

Επικοινώνησε με τον αγγελιοδότη

Ή