Τριάρι νέο, ισόγειο, Medulićeva, Ζάγκρεμπ

€ 1.500/μήνα
3
2
ΙΣ
Όχι

Σημείωση

Τελευταία ενημέρωση: 26/11/2025
Περιγραφή

This description has been translated automatically and may not be accurate

κωδικός: RE116285

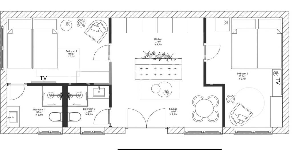
The 42 m² apartment is located on the ground floor of a building in an attractive location on Trg Franje Tuđmana. Due to the proximity of all important amenities, it is ideal for couples or small families who want a practical life in the city center. The apartment consists of a living room connected to the kitchen and dining room, two bedrooms, and two bathrooms. It is fully equipped and ready to move in immediately. It is equipped with air conditioning and gas floor heating, and the space is tidy and comfortable for living throughout the year. Shops, cafes, a school, and public transport are located in the immediate vicinity, making this location extremely practical for everyday life. Utilities are paid according to consumption, and a deposit is agreed upon upon rental. For more information or to arrange a viewing, feel free to contact us.
Χαρακτηριστικά
Τύπος
Διαμέρισμα
Συμβόλαιο
Ενοικίαση
Όροφος
Ισόγειο
Ανελκυστήρας
Όχι
Δωμάτια
3
Υπνοδωμάτια
2
Μπάνια
2
Βεράντα
Όχι
Θέρμανση
Κεντρική, θερμαντικά σώματα, τροφοδοσία υγραέριο
Κλιματισμός
Αυτόνομη, κρύο/ζέστη
Πληροφορίες τιμής
Τιμή
€ 1.500/μήνα
Λεπτομέρειες κόστους
Εγγύηση
Δεν αναφέρεται
Ενεργειακή απόδοση

Κατανάλωση ενέργειας

Β

Σχέδιο ακινήτου
Ανακαλύψτε κάθε γωνιά του ακινήτου
+7
Πρόσθετες επιλογές

Επικοινώνησε με τον αγγελιοδότη

Ή