Μονοκατοικία πολλαπλών οικογενειών 200 τμ, καλή κατάσταση, Nova Ves - Gupčeva zvijezda, Ζάγκρεμπ

€ 2.800/μήνα
5
200 m²
3+

Σημείωση

Τελευταία ενημέρωση: 12/12/2025
Περιγραφή

κωδικός: 108

Zagreb, Gornji Grad, Mlinarska cesta, prekrasna novoadaptirana dvojna kuća 200 m2 za najam, u blizini Gupčeve zvijezde.
 
Prekrasna novoadaptirana kuća s vrtom, terasom i garažom, prostire se na tri etaže i sastoji se od:

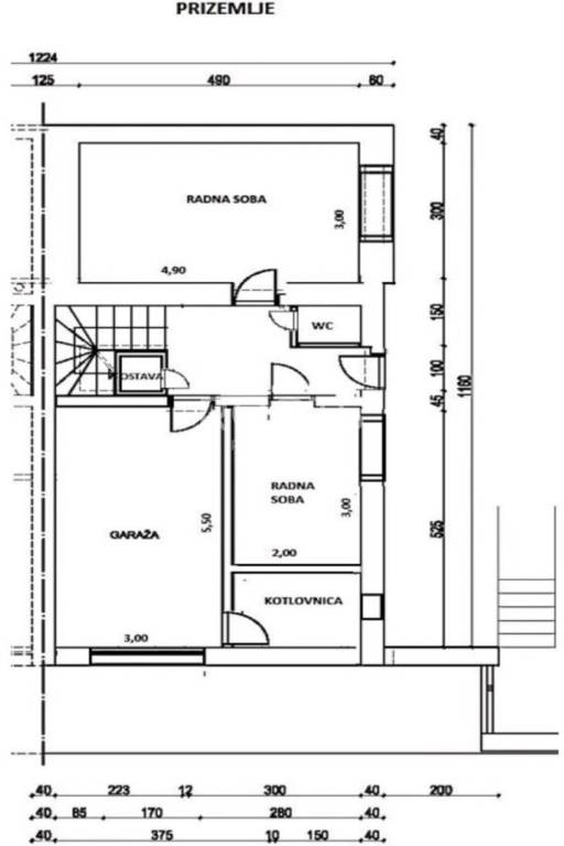
Prizemlja: Poseban ulaz s ulaznim hodnikom, WC, dvije sobe, garaža i kotlovnica u zasebnom prostoru
1. Kat: Ulazni prostor, gostinjski WC, komforan dnevni boravak, kuhinja s izlazom na veliku vrtnu terasu i ljetnu kuhinju, uređen kaskadni vrt površine 165 m²
2. Kat: Hodnik, dvije velike spavaće sobe, svaka s vlastitom kupaonicom, balkon 8 m²

 
Pripada joj garažno mjesto + 2 vanjska parkirna mjesta.
 
Dodatno:

Depozit: 5.000 €
Minimalan period najma: 24 mjeseca
Energetski certifikat: u izradi
Grijanje: etažno plinsko
Orijentacija: sjever, istok, zapad
Zadnja adaptacija: 2015.
Uređena, potpuno namještena, odmah useljiva

 
Izuzetno mirna i sigurna ulica, odlično prometno povezana, u neposrednoj blizini svih sadržaja potrebnih za kvalitetan život – trgovina, škola, vrtića, sportskih objekata i javnog prijevoza.
 
Ostale informacije na upit.
Χαρακτηριστικά
Τύπος
Μονοκατοικία πολλαπλών οικογενειών
Συμβόλαιο
Ενοικίαση
Όροφος
Σε περισσότερα επίπεδα
Εμβαδόν
200 m²
Δωμάτια
5
Υπνοδωμάτια
4
Μπάνια
3+
Θέρμανση
Κεντρική, θερμαντικά σώματα, τροφοδοσία υγραέριο
Άλλα χαρακτηριστικά
  • Μονός υαλοπίνακας/ Κουφώματα αλουμινίου
  • Πόρτα ασφαλείας
  • Συναγερμός
Πληροφορίες τιμής
Τιμή
€ 2.800/μήνα
Τιμή ανά m²
14 €/m²
Λεπτομέρειες κόστους
Κοινόχρηστα
Χωρίς κοινόχρηστα έξοδα
Εγγύηση
Δεν αναφέρεται
Ενεργειακή απόδοση
  • Έτος κατασκευής

    1970
  • Κατάσταση

    Καλή / Κατοικήσιμο
  • Θέρμανση

    Κεντρική, θερμαντικά σώματα, τροφοδοσία υγραέριο
  • Ενεργειακή πιστοποίηση

    Χωρίς ταξινόμηση
Σχέδιο ακινήτου
Zagreb, Gornji Grad - Medvescak
Zagreb, Gornji Grad - Medvescak
Zagreb, Gornji Grad - Medvescak
Πρόσθετες επιλογές

Επικοινώνησε με τον αγγελιοδότη

Ή