1/10


2-room flat new, third floor, Lučko, Zagreb
€ 141,048
Listing updated on 03/13/2026
Description
reference: ZG87361
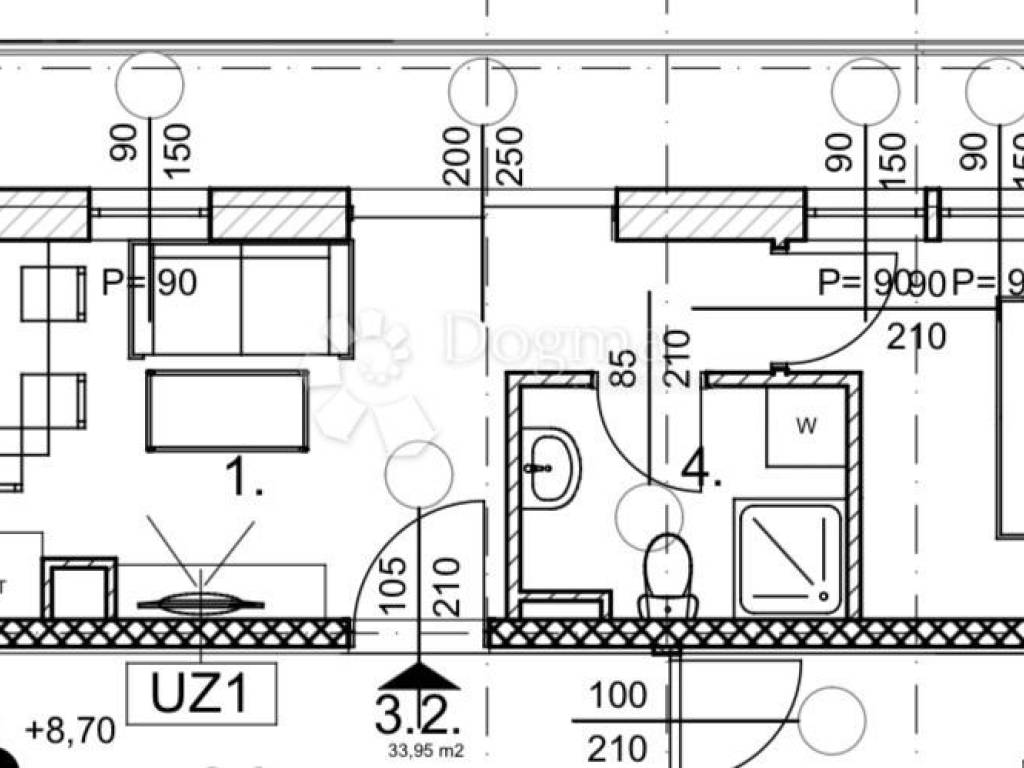
Flat Lučko, Novi Zagreb - Zapad, 100m2
ID CODE: ZG87361
Nives Ivković
Asistent u posredovanju
Mob: 095/399-5519
Tel: 01/647-3011
E-mail: nives.ivkovic@dogma-nekretnine.com
www.dogma-zagreb.com
Features
- Type
- Apartment
- Contract
- Sale
- Floor
- 3 floor
- Lift
- Yes
- Surface
- 33 m²
- Rooms
- 2
- Bedrooms
- 2
- Balcony
- Yes
- Terrace
- No
- Air conditioning
- Independent, cold/hot
Price information
- Price
- € 141,048
- Price per m²
- 4,274 €/m²
Energy efficiency
Discover every corner of the property
Additional options