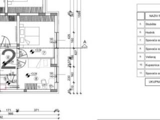
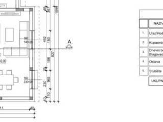
Obra nueva Čepin
- 1/7lite
1/7lite
1/7lite
¿Quieres que te avisemos cuando haya anuncios disponibles con estas características?
TASMAN NEKRETNINE d.o.o.- En Nekretnine.hr desde hace 1 año
Trg Slobode 8 31000 - Osijek
Agencija TASMAN-NEKRETNINE d.o.o. sa sjedištem u Osijeku Trg slobode 8, sljedbenica je tvrtke TASMAN-TRADE d.o.o. osnovane 1992.g. Tvrtka posjeduje UVJERENJE O STRUČNOJ OSPOSOBLJENOSTI ZA POSREDNIKA NEKRETNINAMA izdano od strane HGK, te smo članovi udruženja agencija za promet nekretninama(sektor za trgovinu pri HGK. Glavne djelatnosti tvrtke su posredovanje u prometu nekretninama i davanje u zakup vlastitih nekretnina(uredski i stambeni prostori). Posredujemo u prodaji, kupovini, najmu i zakupu stambenih i poslovnih prostora, kao i objekata drugih namjena. Vršimo kompletnu uslugu za naše stranke od prvog kontakta, savjeta, razgledavanja nekretnina, provjere stanja nekretnina u zemljišnim knjigama, izrađujemo kompletnu kupoprodajnu dokumentaciju, te našim strankama pomažemo u brzoj realizaciji kredita. Nekretnine koje se nalaze u našoj ponudi oglašavamo i prezentiramo u svim značajnim lokalnim tiskovnim medijima, te na našoj web stranici( www.tasman-nekretnine) i ostalim internetskim portalima specijaliziranim za oglašavanje i prezentiranje nekretnina. Tvrtka TASMAN-NEKRETNINE d.o.o. U suradnji s poslovnim partnerima također pruža usluge projektiranja, etažiranja i ishođenja građevinske dokumentacije. Obratite se stručnom i provjerenom timu da nađemo idealno rješenje za Vas. Tvrtka TASMAN-NEKRETNINE d.o.o. danas je jedna od vodećih agencija na području Osijeka i okolice. Karakterizira nas jedna od najvećih ponuda svih vrsta nekretnina, plasiranje istih na tržište putem najmodernijih alata, brza, kvalitetna i kompletna usluga, individualni pristup i fleksibilnost.
Nekretnine Osijek- En Nekretnine.hr desde hace 1 año
Trg Ante Starčevića 10, Osijek 10 31000 - Osijek
Real Estate Agency, Osijek, Croatia.
Grunt Real Estate- En Nekretnine.hr desde hace 1 año
Ulica Bartola Kašića, 62 62 31000 - Osijek
Looking to sell your property? Buy a new one? Then you have come to the right place. Please contact us to discuss about what we can do for you.
Addo nekretnine- En Nekretnine.hr desde hace 1 año
Ulica Ljudevita Posavskog 47 31000 - Osijek
Agencija za nekretnine, Addo Nekretnine, nalazi se u srcu osječko-baranjske županije. Ured za nekretnine funkcionira zajednički sa geodetskim uredom ADDO. Nalazimo se na adresi: Vijenac 107.brigade HV 3 u Valpovu. Ovdje ćete pronaći sve odgovore o prodaji, najmu/zakupu ili o bilo kojoj informaciji vezano za Vašu nekretninu. Također, otvaranjem ovog ureda za nekretnine zaokružili smo jednu dobru priču od svih geodetskih usluga, preko etažiranja, vještačenja do samog kraja prodaje ili najma. Cilj nam je ugoditi klijentima koji potražuju stan, kuću ili poslovni prostor, te im pomoći u donošenju odluka dajući im savjete naših iskusnih zaposlenika. Klijent je uvijek na prvom mjestu, zato i prilagođavamo naše usluge po željama i nudimo niz besplatnih usluga i informacija o tržištu nekretnina. Ured Addo Nekretnine usko surađuje sa ostalim agencijskim uredima iz Hrvatske. Za kraj želimo reći našim klijentima da im stojimo na usluzi svakoga dana. Tu smo da im pomognemo u kreiranju njihove budućnosti jer znamo da je kupnja ili prodaja nekretnine veliki korak i ne događa se često u životu.
Olga nekretnine- En Nekretnine.hr desde hace 1 año
Kapucinska ulica, 17, Osijek Hrvatska, 31000 17 31000 - Osijek
Dugogodišnje iskustvo, individualni pristup i posvećenost svakom pojedinom klijentu neka Vam budu motiv za suradnju. Javite se s punim povjerenjem , e-mailom: olga@olga-nekretnine.com, telefonom: 031 213/310, 091/95 95 971 ili osobno u Kapucinsku 17, Osijek.
euroNekrenine- En Nekretnine.hr desde hace 1 año
Trg bana Josipa Jelačića 5 31000 - Osijek
We are dedicated to providing a professional and personalized approach to every client, whether it’s buying, selling, or renting a property. Our mission is to make every step of the process easier for you, ensuring transparency, reliability, and satisfaction. In our work, we apply the latest technologies and marketing strategies to present your property in the best possible light and find the ideal buyer or tenant. At the same time, we strive to understand and fulfill all our clients’ needs, offering support and advice based on years of experience. We believe that every client is unique, which is why we approach each one with special attention and dedication.
LOCUS NEKRETNINEHrvatske Republike 43 31000 - Osijek
London nekretnine d.o.o.- En Nekretnine.hr desde hace 1 año
Ulica Ivana Mažuranića 10 35000 - Slavonski Brod
The LONDON real estate agency is specialized in mediating the sale of flats, houses, business premises and land, rent, and real estate demand for our clients. If you are looking for a rental property, you are interested in selling or buying real estate, our team of experienced and expert agents is at your disposal. We offer our clients a complete service for safe purchase and sale and lease. We are doing the complete service to our customers (landfill, transfer, ...). We provide the sellers with professional advertising and presentation of real estate, finding the buyer in the short term as well as all the professional documentation required for the conclusion of the sale. We guarantee our customers a professional approach to the selection of real estate on the market and all necessary legal aid when purchasing.
Trgo-Invest nekretnine- En Nekretnine.hr desde hace 1 año
J. J. Strossmayera 25, 35000 Slavonski Brod 25 35000 - Slavonski Brod
Real Estate Agency "Trgo - Invest" is an authorized real estate agency by the MINISTRY OF ECONOMY of the Republic of Croatia and is registered in the register of real estate agents at the Croatian Chamber of Commerce under business number 25/2009. It was ESTABLISHED and has been operating successfully since 1999 with the aim of performing real estate brokerage (purchase, sale, exchange, rent and lease of real estate) primarily in the city of Slavonski Brod but also in other areas of the Republic of Croatia (Zagreb, Istria, North Adriatic, islands Krk, Cres, Lošinj, etc.). In addition to providing real estate brokerage services, the Real Estate Agency Trgo - Invest also deals with investments in real estate in terms of construction of new RESIDENTIAL and BUSINESS buildings, from land purchase, obtaining all necessary permits, planning and organizing construction to sale, lease or lease them on the market. We provide all our clients with quality and professional service that will enhance and facilitate all your needs related to the described jobs and legal assistance of the law office with which we have a contract with, and which will check the documentation for your needs - real estate in the land register, drafting all necessary acts (pre-contracts - sales contracts, tabular statements, proposals for registration of ownership rights, etc.) until the acquisition of ownership of real estate that is the subject of sale. In order to protect the interests of our clients, we are signatories to the Code of Ethics of Real Estate Brokers at the Croatian Chamber of Commerce, which aims to oblige persons and companies involved in real estate brokerage to do business properly and respect good business practices.
Diva nekretnine- En Nekretnine.hr desde hace 1 año
Ulica Matije Gupca 10 35000 - Slavonski Brod
Real estate agency in Slavonski Brod, Croatia.








