Piso de tres habitaciones nuevo, planta baja, Vir

€ 360.000
3
110 m²
1
B
Terraza

Nota

Anuncio actualizado el 24/03/2026
Descripción

referencia: EK-1050791

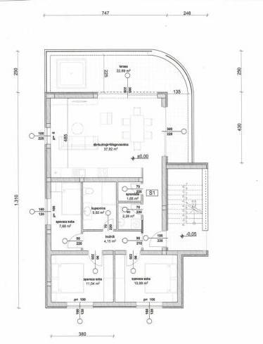
Prodaje se apartman u prizemlju novogradnje na otoku Viru.
Stan se sastoji od kuhinje s dnevnim boravkom i blagovaonicom (37,92 m2), tri spavaće sobe (11,04 m2, 10,99 m2 i 7,68 m2), kupaonice s wc-om (5,92 m2), wc-a (2,28 m2), spremišta (1,65 m2), hodnika (4,10 m2) i natkrivene terase (22,89 m2).
Ukupna površina stana iznosi 110,09 m2 (Neto površina stana iznosi 81,58 m2 + natkrivena terasa 22,82 m2).
Stanu pripada i zelenilo od 171 m2.

Jacuzzi na terasi. Na nenatkrivenim terasama izvodi za struju, vodu i odvodnju za jacuzzi - po želji kupca.

Pripadajuća dva ne-natkrivena parkirna mjesta sa priključkom za električna vozila.

Kvalitetna novogradnja sa najnovijim, modernim sadržajima (PVC stolarija sa električnim roletama i komarnicima, kupaonica sa vrhunskom sanitarijom i pločicama).
Kupaonica i wc imaju podno grijanje.

Novogradnja je u tijeku, prvom kupcu se daje mogućnost biranja uređenja kupaonice i pločica.

Vrhunska lokacija s pogledom na otok Pag, 250 m od mora.
Autobusni kolodvor je udaljen 700m, centar 2000m.

Za više informacija kontaktirati: +385992131301.
Características
Tipología
Piso | Propiedad completa
Contrato
Venta
Planta
Planta baja
Plantas del edificio
2
Superficie
110 m²
Habitaciones
3
Dormitorios
3
Baños
1
Terraza
Garaje, plazas de aparcamiento
2 en aparcamiento/garaje público
Aire acondicionado
Individual
Distancia al mar
250 m
Otras características
  • Almacén
  • Aseo separado
Detalle superficie

Vivienda

Planta
Planta baja
Superficie
110,0 m²
Coeficiente
100%
Tipo de superficie
Principal
Superficie construida
110,0 m²
Información del precio
Precio
€ 360.000
Precio del m²
3.273 €/m²
Eficiencia energética

Consumo de energia

≥ 250 kWh/m² añoA

Plano
vir-novogradnja-250m-mora-slika-260307735
Descubre otros ángulos del inmueble
+6
Opciones adicionales

Contactar con el anunciante

O