Piso de dos habitaciones Mandre, Kolan, Kolan

€ 246.400
2
41 m²
1
1
No
Terraza

Nota

Anuncio actualizado el 18/04/2026
Descripción

This description has been translated automatically and may not be accurate

referencia: 574

MANDRE – FIRST ROW TO THE SEA | LUXURY APARTMENT WITH SEA VIEW
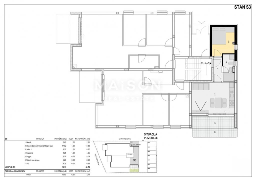
For sale is an elegant and modernly designed apartment S3, located on the first floor of an exclusive new building, with a total area of 41.76 m².
The apartment is part of a premium project with a total of 8 residential units, distributed over three levels: ground floor, first and second floor. It is a new development in an exceptionally attractive location in Mandre, just a few steps from the sea, with immediate proximity to shops, restaurants, and cafés.
The building is designed with an emphasis on luxury, functionality, and maximum privacy, and all apartments offer an open sea view.
Apartment S3 consists of:
One bedroom
Kitchen with dining area and living room
Modern bathroom with underfloor heating
Covered terrace with panoramic sea view
Features and high-quality equipment:
Schüco aluminum joinery
Marazzi ceramic tiles throughout the building
High-end Hansgrohe faucets
Underfloor heating with WiFi control
Electric shutters
Air conditioning in every room – high class
Preparation for kitchen and jacuzzi (for units with rooftop terraces; standard in the project)
Video surveillance
The apartment also includes a private parking space, and the property offers an excellent blend of comfort, functionality, and modern Mediterranean lifestyle.
Mandre is a charming coastal village with a developed tourist infrastructure, known for its crystal-clear sea, pebble beaches, and views of the islands Silba, Olib, Maun, and Škrda.
Planned completion and move-in: early 2026.

For additional information or questions, feel free to contact us. We look forward to your call!

Lovro Morin
GSM: +385 99/502-6334
E-mail: morin@maison-nekretnine.com
www.maison-nekretnine.com

ID CODE: 574

Lovro Morin
Asistent u prodaji
Mob: +385 99 502 6334
Tel: 051640777
E-mail: morin@maison-nekretnine.com
www.maison-nekretnine.com
Características
Tipología
Piso
Contrato
Venta
Planta
1 planta
Plantas del edificio
3
Ascensor
No
Superficie
41 m²
Habitaciones
2
Dormitorios
1
Baños
1
Balcón
No
Terraza
Garaje, plazas de aparcamiento
1 en aparcamiento/garaje público
Calefacción
Individual, por aire
Aire acondicionado
Individual, frío/calor
Otras características
  • Sistema de alarma
Información del precio
Precio
€ 246.400
Precio del m²
6.010 €/m²
Eficiencia energética
  • Año de construcción

    2026
  • Calefacción

    Individual, por aire
  • Aire acondicionado

    Individual, frío/calor
  • Certificación energética

    Inclasificable
Plano
Descubre otros ángulos del inmueble
+8
Opciones adicionales

Contactar con el anunciante

O