1/17


Piso de tres habitaciones Vabriga, Tar-Vabriga, Tar-Vabriga
€ 184.000
Anuncio actualizado el 22/01/2026
Descripción
referencia: 229
ID CODE: 229
Suzana Baričević
Agent s licencom
Mob: 097 7368 366
Tel: 097 736 8366
E-mail: suzana@smartkey.hr
www.smartkey.hr
Características
- Tipología
- Piso
- Contrato
- Venta
- Planta
- Entresuelo
- Plantas del edificio
- 3
- Ascensor
- Sí
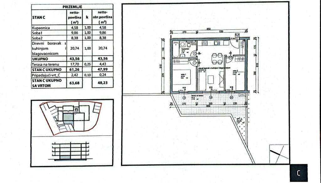
- Superficie
- 63 m²
- Habitaciones
- 3
- Dormitorios
- 3
- Baños
- 1
- Balcón
- No
- Terraza
- Sí
- Garaje, plazas de aparcamiento
- 1 en aparcamiento/garaje público
- Calefacción
- Individual, por aire
- Aire acondicionado
- Individual, frío/calor
Información del precio
- Precio
- € 184.000
- Precio del m²
- 2.921 €/m²
Eficiencia energética
Año de construcción
2025Calefacción
Individual, por aireAire acondicionado
Individual, frío/calorCertificación energética
Inclasificable
Descubre otros ángulos del inmueble
Opciones adicionales