Casa unifamiliar Debeljak, Sukošan, Sukošan

€ 1
4
264 m²
3
No
Terraza

Nota

Anuncio actualizado el 22/01/2026
Descripción

This description has been translated automatically and may not be accurate

referencia: K-2104

DEBELJAK - a luxury villa with a pool in a new building of 264 m2 for sale!

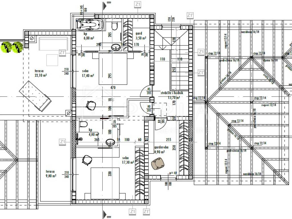
This modern villa with a panoramic view of the Zadar archipelago and Velebit was built on a plot of 774 m2 and consists of a ground floor, a first floor and a large yard with a 32 m2 swimming pool.
On the ground floor, from the entrance terrace, you enter a long corridor that further leads to the rooms: bedroom with wardrobe, bathroom, technical room/laundry room, sauna with access to its own terrace, pantry and large living room with kitchen and dining room.
Large glass walls further lead to the covered terraces and the swimming pool and sunbathing area and the garden.
On the second floor, there are two bedrooms with their own bathrooms and wardrobes, each of which has access to its own balcony.
On the upper floor there is also a utility room (office, guest room, additional wardrobe...)
Top quality materials were used in the construction, there will be underfloor heating in the bathrooms, air conditioners in all rooms, aluminum joinery.
The villa is currently being sold in the high Roh-bau construction phase, which means that all concrete works, roofing works, sheet metal works have been completed, closed with high-quality aluminum carpentry, all installations have been prepared (water, electricity, sewage, mechanical part), interior walls covered with plaster, smoothed and painted ceilings, plastered screed (without floor coverings so that the customer can individualize and adapt the interior design to his needs), concrete wall around the yard, facade, swimming pool (construction, stairs, installations) and yards prepared for detailed horticultural landscaping.
This level of construction is to the greatest extent adapted to today's life needs.
The maximum quality of construction and performance of the works is ensured, and on the other hand, flexibility is provided to the customer in the selection and execution of the final craftsman's works.
The interior decoration of the villa is left to the buyer to choose.
The entire villa offers a beautiful view of the sea and greenery.
Two parking spaces belong to the villa.
Ownership neat!

There is a possibility of finishing the villa completely at the buyer's request (the seller can manage the works, coordinate with the contractors and everything else that is necessary for the building to be completely finished).

THE BUYER DOES NOT PAY THE AGENCY COMMISSION!

ID CODE: K-2104

Tatjana Gulan
Mob: +385 (0)99 284 1984
Tel: +385 (0)99 284 1984
E-mail: tatjana@perlanekretnine.hr
www.perlanekretnine.hr

Iva Prtenjača
Mob: +385 (0)91 400 1414
Tel: +385 (0)99 284 1984
E-mail: iva@perlanekretnine.hr
www.perlanekretnine.hr
Características
Tipología
Casa unifamiliar
Contrato
Venta
Plantas del edificio
1
Ascensor
No
Superficie
264 m²
Habitaciones
4
Dormitorios
3
Baños
3
Balcón
No
Terraza
Garaje, plazas de aparcamiento
2 en aparcamiento/garaje público
Calefacción
Individual, por aire
Aire acondicionado
Individual, frío/calor
Información del precio
Precio
€ 1
Precio del m²
0 €/m²
Eficiencia energética

Consumo de energia

A

Descubre otros ángulos del inmueble
+31
Opciones adicionales

Contactar con el anunciante

O