1/14


Piso de cuatro habitaciones Sukošan, Sukošan
€ 3.850
Anuncio actualizado el 22/01/2026
Descripción
referencia: 475
ID CODE: 475
Ivana Ančić
Voditelj ureda
Mob: +385 95 73 55 171
Tel: +385 95 588 8082
E-mail: info@prestigeinvest.hr
www.prestigeinvest.hr
Características
- Tipología
- Piso
- Contrato
- Venta
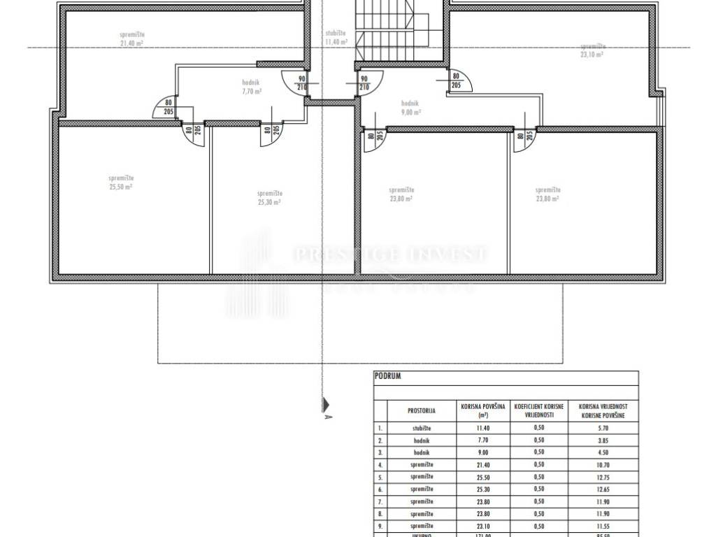
- Planta
- 1 planta
- Plantas del edificio
- 2
- Ascensor
- No
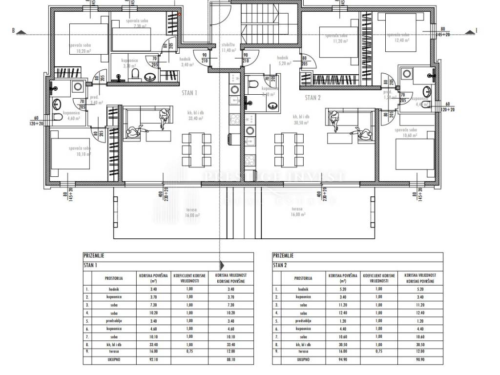
- Superficie
- 105 m²
- Habitaciones
- 4
- Dormitorios
- 3
- Balcón
- No
- Terraza
- Sí
- Garaje, plazas de aparcamiento
- 2 en aparcamiento/garaje público
- Calefacción
- Individual, por aire
- Aire acondicionado
- Individual, frío/calor
Información del precio
- Precio
- € 3.850
- Precio del m²
- 37 €/m²
Eficiencia energética
Año de construcción
2025Calefacción
Individual, por aireAire acondicionado
Individual, frío/calorCertificación energética
Inclasificable
Descubre otros ángulos del inmueble
Opciones adicionales