Piso de cuatro habitaciones Zaton, Nin, Nin

€ 822.120
4
124 m²
2
Balcón
Terraza

Nota

Anuncio actualizado el 22/01/2026
Descripción

This description has been translated automatically and may not be accurate

referencia: 528

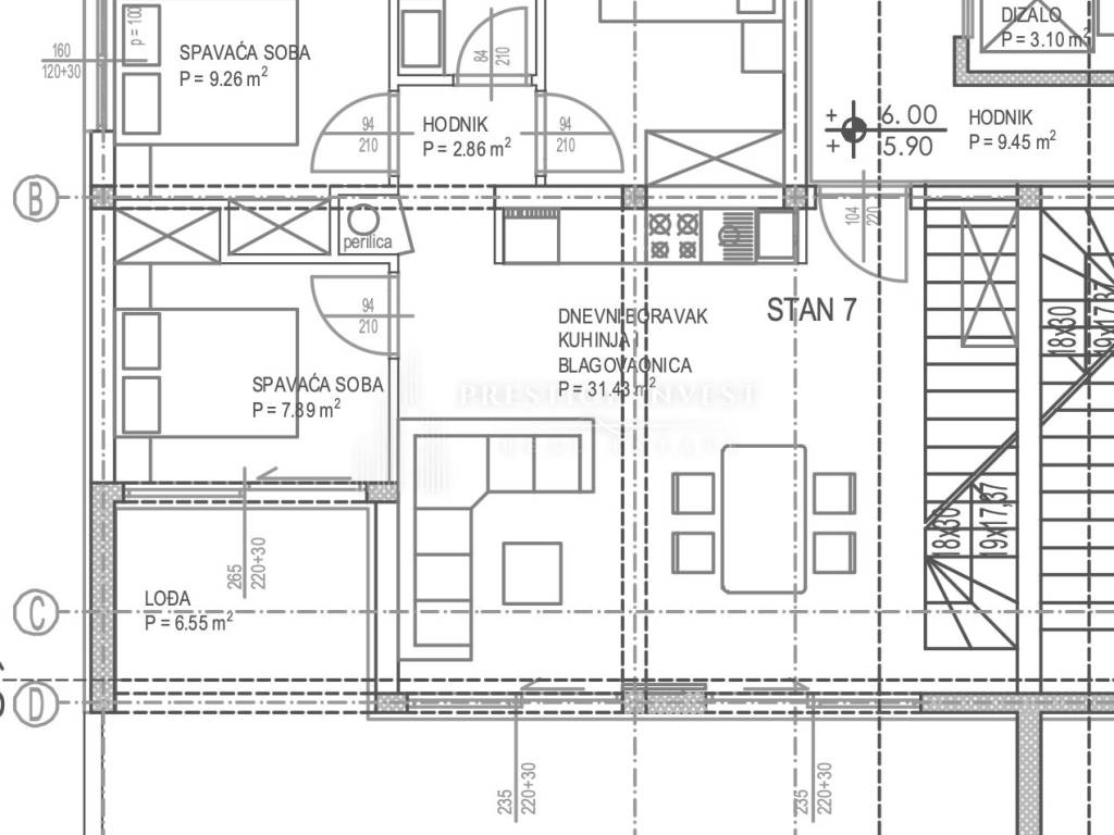
Apartment STAN 7 is for sale, located on the 2nd floor of a luxurious new building in Zaton, in the immediate vicinity of the sea - only 20 meters from the well-maintained beach.
The building is under construction and consists of 6 apartments and 2 exclusive penthouses. All apartments have an open view of the sea, and this particular apartment stands out with its large terrace and functional layout.

Layout and areas:
Apartment S7 consists of:

Living room, kitchen and dining room – 31.43 m²
Bedroom 1 – 10.27 m²
Bedroom 2 – 9.26 m²
Bedroom 3 – 7.89 m²
Bathroom 1 – 4.12 m²
Bathroom 2 – 3.30 m²
Hallway – 2.86 m²
Loggia – 6.55 m²
Covered terraces (lower floor) – 25.45 m²
Uncovered terraces (lower floor) – 10.18 m²
Roof covered terraces – 17.94 m²
Roof uncovered terraces – 78.50 m²
Roof loggia – 5.88 m²
Roof corridor – 1.81 m²

Areas:
Total interior area of ​​the apartment (closed space): 69.17 m²
Total net usable area with annexes: approx. 117.24 m²
(calculation: closed part + 50% covered terraces and loggias + 25% uncovered terraces)
Gross area with all terraces and loggias included: 199.65 m²

2 outdoor parking spaces included

Equipment and materials:
Schüco aluminum joinery with electric shutters and blinds
Schindler elevator
Underfloor heating (heat pump) + Mitsubishi air conditioners
First-class large-format ceramics and high-quality parquet flooring
Roof terrace with the possibility of installing a jacuzzi and pergola
Owner: legal entity - buyer exempt from paying real estate tax

Features:
Exceptional sea view
Private entrance to the roof terrace directly from the apartment
Ideal property for a luxury rent
Quiet and elite location of Zaton, close to all amenities

For all additional information and to arrange a viewing, please feel free to contact us:
Phone: +385 95 7355 171
E-mail: info@prestigeinvest.hr

ID CODE: 528

Ivana Ančić
Voditelj ureda
Mob: +385 95 73 55 171
Tel: +385 95 588 8082
E-mail: info@prestigeinvest.hr
www.prestigeinvest.hr
Características
Tipología
Piso
Contrato
Venta
Planta
2 planta
Plantas del edificio
2
Ascensor
Superficie
124 m²
Habitaciones
4
Dormitorios
3
Balcón
Terraza
Garaje, plazas de aparcamiento
2 en aparcamiento/garaje público
Calefacción
Individual, por aire
Aire acondicionado
Individual, frío/calor
Información del precio
Precio
€ 822.120
Precio del m²
6.630 €/m²
Eficiencia energética

Consumo de energia

A+

Descubre otros ángulos del inmueble
+42
Opciones adicionales

Contactar con el anunciante

O