map icon

Piso de tres habitaciones Diklo, Zadar, Zadar

ZadarDiklo, Zadar
€ 1.618.575
3
270 m²
2
2
Terraza

Nota

Anuncio actualizado el 28/01/2026
Descripción

This description has been translated automatically and may not be accurate

referencia: 597

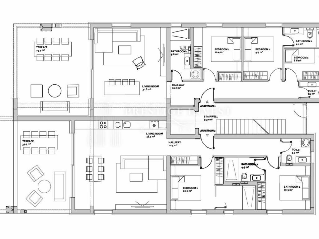
For sale is a spacious and modernly furnished penthouse S6 in Diklo, first row to the sea, with a total net area of ​​181.38 m².
The apartment offers a prime location and amenities ideal for a family or a luxury vacation.

The interior space consists of:
Kitchen, dining room and living room - 38.16 m²
Hallway: 10.39 m²
Bedroom 1: 10.89 m²
Bedroom 2: 10.86 m²
Bathroom 1: 4.45 m²
Bathroom 2: 4.46 m²
WC: 3.32 m²

The apartment additionally includes:
Loggia: 24.19 m² (calculated 18.14 m²)
Covered terrace: 7.04 m² (calculated 3.52 m²)
Storage room no. 4: 7.34 m² (calculated 3.67 m²)
2 garage spaces in the underground garage: each 13.75 m² (calculated 6.88 m²)
Large roof terrace: 119.95 m² (calculated 59.76 m²)
Total area of ​​the apartment with annexes: 268.55 m²
Calculated (usable) area: 181.38 m²

The apartment offers a high level of comfort with a modern design, swimming pool, private garden and terrace for enjoying sunny days by the sea. It is a perfect choice for a family or as an investment for tourist rental.
The apartment has a sea view and is only a few meters away from the beach.

Planned completion is 2026.
The construction standard is high, with top-quality materials and the latest technology.

The building has a total of 6 apartments, with four apartments having their own swimming pools.

Building specifications:
-Each room has its own air conditioning -heating is by means of a heat pump system.
-Exterior joinery comes with electric shutters and aluminum shutters.
- "Smart Home" System - lighting and heating control via telephone
-security doors and video surveillance
-multi-layer oak parquet
-ventilated facade
-underground garage
-elevator

EQUIPMENT
Bathrooms
Sanitary equipment: Top-quality Grohe elements (Essence line)
Sinks and toilets: Villeroy & Boch sinks and shower cabins of the highest class with an integrated washing system for superior hygiene and comfort
Ceramic tiles: Large-format tiles (300x120 cm) by the Italian brand Laminam
Showers: Shower cabins built into all bathrooms

Flooring
Bedrooms: High-quality three-layer Požgaj oak parquet, with 250 mm wide planks
Other spaces: Premium large-format ceramic tiles (300x120 cm) from the Italian brand Laminam
Heating and cooling
Underfloor heating is installed in all apartments, and heating is provided by Mitsubishi heat pumps that provide an energy-efficient heating system
Cooling is provided by top-of-the-line Mitsubishi air conditioners, with indoor units in each bedroom and living room
Smart climate control: Heating and cooling systems will be connected via Wi-Fi for remote control
Water purification: Each apartment has a separate built-in water softening system
Shading System
The loggias on the first and second floors are equipped with external sliding aluminum blinds, which provide shade and protection from the sun at all times and in any position.

Exterior elements
The apartments on the ground floor include a large garden, an infinity pool, an outdoor shower and a summer kitchen.
The apartments on the second floor have a roof terrace with the possibility of additional equipment (e.g. infinity pool or jacuzzi, shower, summer kitchen, bioclimatic pergola).
Preparation for the jacuzzi: The loggias on the first floor have a pre-installation for a jacuzzi, available upon request from the buyers.
Smart home features
Motorized roller shutters are installed on the balcony doors in the living rooms.
Motorized Venetian blinds are installed in the bedrooms, and mosquito nets are included on all windows and balcony doors.
Entrance door: Anti-burglary and fire-resistant Kolnoa entrance door with additional key entry via code.
The entrance to the building has a fingerprint reader, as well as a traditional key lock.
Interior door: Luxurious floor-to-ceiling doors without visible door frames.
Sound and thermal insulation: Additional sound insulation is installed between the apartments, and thermo-technological sound and thermal insulation is installed on each floor slab. improved privacy and comfort

The facade is built using the "ETICS" system in combination with a ventilated facade
The exterior joinery is aluminum Schuco windows with high-quality solar control glass for optimal sun protection.
The building has an elevator with direct access from the underground garage to the roof terrace
Each apartment comes with a storage room and two spacious garage spaces, equipped with a charger for electric vehicles
The ceiling height in the apartments (from the finished floor to the ceiling) is 280 cm

Interested buyers please contact us via:
Phone: +385957355171
E-mail: info@prestigeinvest.hr

ID CODE: 597

Ivana Ančić
Voditelj ureda
Mob: +385 95 73 55 171
Tel: +385 95 588 8082
E-mail: info@prestigeinvest.hr
www.prestigeinvest.hr
Características
Tipología
Piso
Contrato
Venta
Planta
2 planta
Plantas del edificio
2
Ascensor
Superficie
270 m²
Habitaciones
3
Dormitorios
2
Baños
2
Balcón
No
Terraza
Garaje, plazas de aparcamiento
1 en garaje privado, 2 en aparcamiento/garaje público
Calefacción
Individual, por aire
Aire acondicionado
Individual, frío/calor
Otras características
  • Sistema de alarma
Información del precio
Precio
€ 1.618.575
Precio del m²
5.995 €/m²
Eficiencia energética

Consumo de energia

A+

Descubre otros ángulos del inmueble
+54
Opciones adicionales

Contactar con el anunciante

O