map icon

Piso de cuatro habitaciones Diklo, Zadar, Zadar

ZadarDiklo, Zadar
€ 507.000
4
133 m²
2
E
No

Nota

Anuncio actualizado el 22/01/2026
Descripción

This description has been translated automatically and may not be accurate

referencia: 423

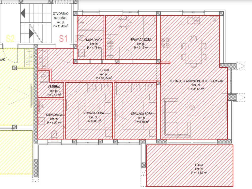
For sale is a spacious apartment S1 located on the ground floor in an attractive part of Dikla.
The apartment consists of functionally arranged rooms with additional outdoor spaces and belongings.

Apartment layout:
Kitchen, dining room and living room - 31.65 m²
Hallway - 10.05 m²
Laundry room - 2.15 m²
Bedroom 1 - 9.10 m²
Bathroom 1 - 4.75 m²
Bedroom 2 - 9.70 m²
Bedroom room 3 - 10.80 m²
Bathroom 2 - 4.20 m²
Total usable area of ​​the separate part: 82.40 m²

Auxiliary part:
Loggia - 14.60 m² (net usable value 10.95 m²)

Apartment amenities:
Two parking spaces (P1 and P2), each with an area of ​​13.75 m² (net value 2.75 m² per place)
Paved area - 19.60 m² (net value 3.92 m²)
Garden - 150.00 m² (net value 15.00 m²)
Basement storage - 13.30 m² (net value 5.85 m²)
Total usable area of ​​the apartment with accessories: 325.80 m²
Total usable area value: 133.62 m²

This apartment on the ground floor offers a luxurious space with its own garden and paved courtyard, as well as additional amenities such as a storage room in the basement and two parking spaces.
It is located in a quiet area, close to the sea and all necessary amenities.

Expected completion: June 2025.

The ownership is neat 1/1 , in the company's system, the buyer does not pay real estate tax.

Interested clients please contact us via:
Phone: +385 95 7355171
E-mail: info@prestigeinvest.hr

ID CODE: 423

Ivana Ančić
Voditelj ureda
Mob: +385 95 73 55 171
Tel: +385 95 588 8082
E-mail: info@prestigeinvest.hr
www.prestigeinvest.hr
Características
Tipología
Piso
Contrato
Venta
Planta
Entresuelo
Plantas del edificio
2
Ascensor
No
Superficie
133 m²
Habitaciones
4
Dormitorios
3
Baños
2
Balcón
No
Terraza
No
Garaje, plazas de aparcamiento
2 en aparcamiento/garaje público
Calefacción
Individual, por aire
Aire acondicionado
Individual, frío/calor
Información del precio
Precio
€ 507.000
Precio del m²
3.812 €/m²
Eficiencia energética
  • Año de construcción

    2025
  • Calefacción

    Individual, por aire
  • Aire acondicionado

    Individual, frío/calor
  • Certificación energética

    Inclasificable
Descubre otros ángulos del inmueble
+13
Opciones adicionales

Contactar con el anunciante

O