map icon

Piso de tres habitaciones Diklo, Zadar, Zadar

ZadarDiklo, Zadar
€ 424.890
3
94 m²
2
1
No

Nota

Anuncio actualizado el 22/01/2026
Descripción

This description has been translated automatically and may not be accurate

referencia: 722

Modern two-bedroom apartment with sea view – S2

We offer a modern apartment S2 located on the 1st floor of the building, ideal for living or investment, with a functional layout and two parking spaces.

Layout:
1st floor:
hallway
technical room
bathroom 1
bathroom 2
bedroom 1- 11.97m2
bedroom 2- 18.52m2
kitchen, dining room and living room- 31.24m2
loggia
loggia

Areas
Apartment area: 81.48 m²

Loggia 1: 2.51 m²
Loggia 2: 2.51 m²
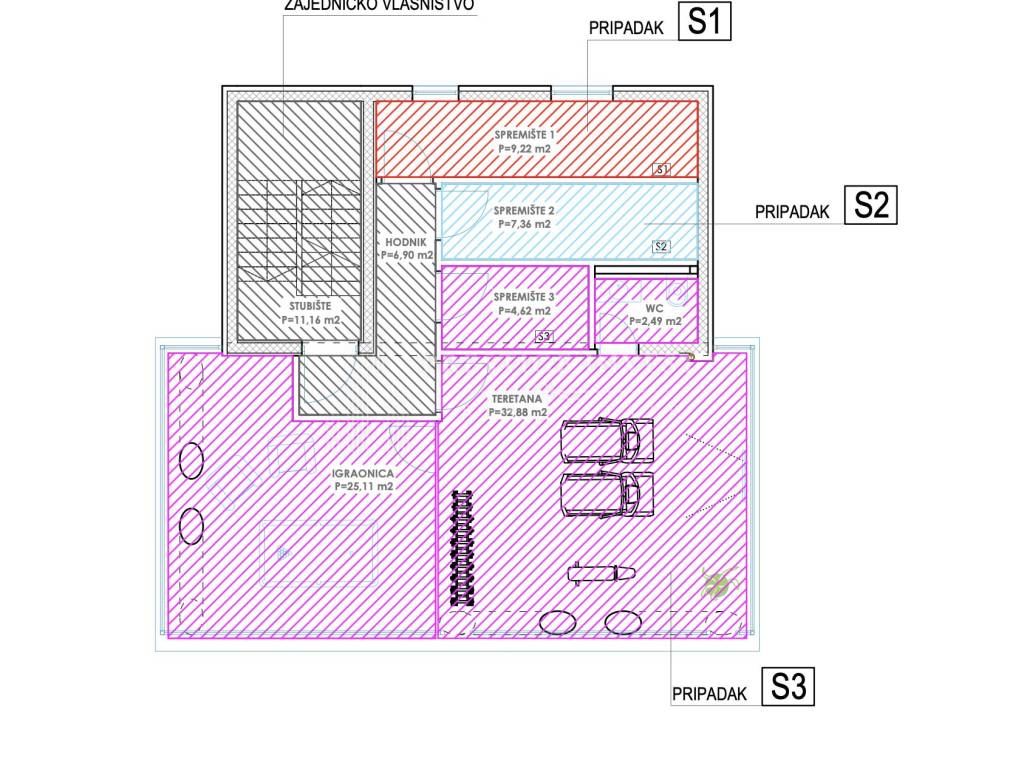
Storage room S2 (basement): 7.36 m²
Parking space PM3: 13.75 m²
Parking space PM4: 13.75 m²

Total gross area with ancillary parts and accessories: 121.36 m²
Total net usable area: 94.42 m²

Equipment and construction standard
The apartment is built according to the high standards of modern new construction:
burglary-proof entrance doors
heat pump - heating and cooling system
underfloor heating in all rooms
quality sanitary ware and ceramics
aluminum joinery with triple glazing
modern interior doors

Advantages
functional two-bedroom layout
two bathrooms
two parking spaces
quiet location
high energy efficiency
quality materials and modern architecture

Ownership - legal entity in the VAT system and the buyer does not pay real estate tax.

For more information and to arrange a viewing, please contact us via:
Contact: +385 95 73 55 171
E-mail: info@prestigeinvest.hr

ID CODE: 722

Ivana Ančić
Voditelj ureda
Mob: +385 95 73 55 171
Tel: +385 95 588 8082
E-mail: info@prestigeinvest.hr
www.prestigeinvest.hr
Características
Tipología
Piso
Contrato
Venta
Planta
1 planta
Plantas del edificio
2
Ascensor
No
Superficie
94 m²
Habitaciones
3
Dormitorios
2
Baños
2
Balcón
No
Terraza
No
Garaje, plazas de aparcamiento
2 en aparcamiento/garaje público
Calefacción
Individual, por aire
Aire acondicionado
Individual, frío/calor
Información del precio
Precio
€ 424.890
Precio del m²
4.520 €/m²
Eficiencia energética

Consumo de energia

A+

Descubre otros ángulos del inmueble
+46
Opciones adicionales

Contactar con el anunciante

O