Piso de cuatro habitaciones nuevo, primera planta, Rovinj

€ 880.000
4
136 m²
3+
1

Nota

Anuncio actualizado el 27/03/2026
Descripción

This description has been translated automatically and may not be accurate

referencia: I29137

Istria, Rovinj: A three-bedroom duplex apartment is for sale, Apartment F, located on the first floor and in the attic of a residential building under construction. The living area is 125 m.

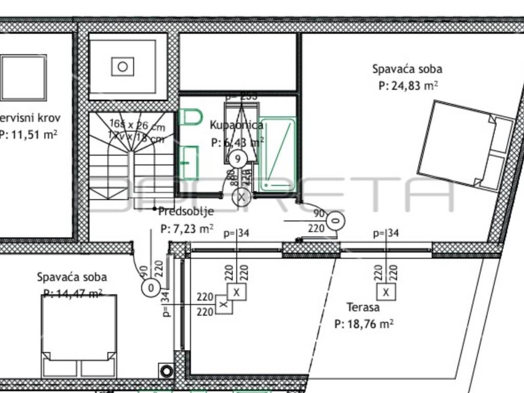
On the first floor, the apartment comprises a living room with kitchen of 35.60 m, a utility room of 3.49 m, a storage room of 2.14 m, an entryway of 8.66 m, a bathroom of 6.07 m, a bedroom of 16.80 m, and two balconies of 11.66 m and 7.55 m.

In the attic, there is an entryway of 7.05 m, a bedroom of 14.47 m, a second bedroom of 24.83 m, a bathroom of 6.43 m, and a terrace of 18.76 m.

The apartment will be air-conditioned, with underfloor heating connected to city gas. The floors will be covered with ceramic tiles and parquet, and the apartment will have security entrance doors. All internal walls will be built using the Knauf system, with aluminum joinery, electric shutters, and mosquito nets. A video intercom will be installed, and the facade will be insulated with 10 cm thick stone wool. Glass balcony railings and two parking spaces in the garage further enhance the luxury of this apartment. An elevator from the garage leads to the first floor, and the beach is only 150 meters away.

The apartment areas are derived from the project and will be adjusted after the preparation of the condominium survey upon completion of the works. The completion of the works is scheduled for July 2026.

Rovinj is one of the most beautiful cities on the Adriatic coast, known for its rich history, charming old town, and beautiful beaches. The city offers numerous cultural and entertainment facilities, excellent gastronomic offerings, and is ideal for living and leisure. The proximity to the sea and natural beauty makes Rovinj a unique place to live.
Características
Tipología
Piso
Contrato
Venta
Planta
1 planta
Ascensor
Superficie
136 m²
Habitaciones
4
Dormitorios
3
Baños
3+
Amueblado
No
Garaje, plazas de aparcamiento
1 en aparcamiento/garaje público
Calefacción
Central, de gas
Aire acondicionado
Frío/calor
Información del precio
Precio
€ 880.000
Precio del m²
6.471 €/m²
Eficiencia energética
  • Año de construcción

    2024
  • Estado

    Nuevo / En construcción
  • Calefacción

    Central, de gas
  • Aire acondicionado

    Frío/calor
Descubre otros ángulos del inmueble
+3
Opciones adicionales

Contactar con el anunciante

O