Piso de tres habitaciones nuevo, segunda planta, Varaždinske Toplice

€ 232.944
3
101 m²
3
2

Nota

Anuncio actualizado el 09/02/2026
Descripción

referencia: I31098

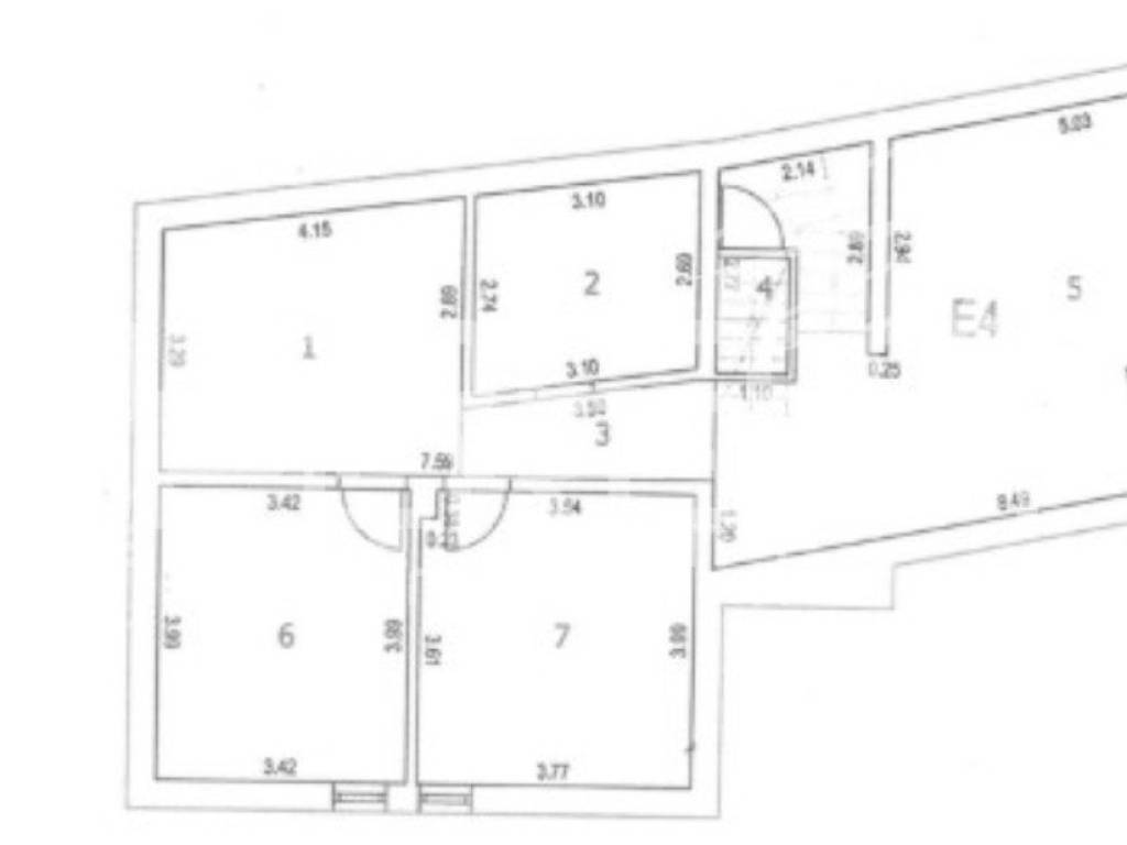
PRODAJA, STAN, VARAŽDINSKE TOPLICE, CENTAR.
Stan na drugom katu u novogradnji, od 101,28 m2 u centru Varaždinskih toplica, 80-ak metara od Minerve i liječilišta u strogo zaštićenom centru grada. Vrlo mirna lokacija bez prometa, blizu svih važnih sadržaja. Kuća novogradnja u stilu tradicijske gradnje, sa energetskih certifikatom A u roh- bau izvedbi. Potrebno je ugraditi parkete u sobe i unutarnju stolariju. Stan ima dimnjak za kamin na kruta goriva, kao alternativa grijanju na plin ili guštanju uz kamin, što je vrlo rijetko u novogradnji.
Sastoji se od prostorija u potkrovlju: kuhinje, kupaonice, hodnik, stepeništa, dnevnog
boravka, sob1 1, sobe 2 i lođe, ukupne korisne površine 101,28 m2.
Na kući je ugrađena visoko kvalitetna drveno-plastična stolarija i centralno etažno plinsko grijanje. Privatno parkirno mjesto u dvorištu.
Moguć je dogovor oko potpunog završetka i uređenja.
Características
Tipología
Piso
Contrato
Venta
Planta
2 planta
Ascensor
Superficie
101 m²
Habitaciones
3
Dormitorios
2
Baños
3
Amueblado
No
Garaje, plazas de aparcamiento
1 en aparcamiento/garaje público
Calefacción
Central, de gas
Aire acondicionado
Frío/calor
Información del precio
Precio
€ 232.944
Precio del m²
2.306 €/m²
Eficiencia energética

Consumo de energia

A

Descubre otros ángulos del inmueble
+7
Opciones adicionales

Contactar con el anunciante

O