Piso de cuatro habitaciones nuevo, planta baja, Prelog

€ 247.825
4
107 m²
3+
B
No

Nota

Anuncio actualizado el 09/02/2026
Descripción

referencia: I32225

STAN U URBANOJ VILI. PRELOG. NOVOGRADNJA.
Dvoetažni četverosobni stan s dvorištem, terasom i jednim vanjskim parkirnim mjestom klasične zidane gradnje. Bruto korisna površina 124,40 m2 i neto korisna površina od 102,60 m2. Orijentacija J.
Urbana vila je u izgradnji i predviđeni završetak radova sa uporabnom dozvolom predviđen je do kraja godine po sistemu ključ u ruke. Stan ima posebni ulaz, terasu i balkon i pripada mu vrt od 90 m2. Uz to i etažirano parkirno mjesto i spremište.
U prizemlju su kuhinja, dnevni boravak i blagovaonica ukupne površine 33,5,m2, hodnik od 12 m2, natkrivena tersa od 8,2 m2, nenatkrivena terasa od 4,2 m2, tehnička soba od 3,2 m2 i natkriveni ulaz od 1 m2.
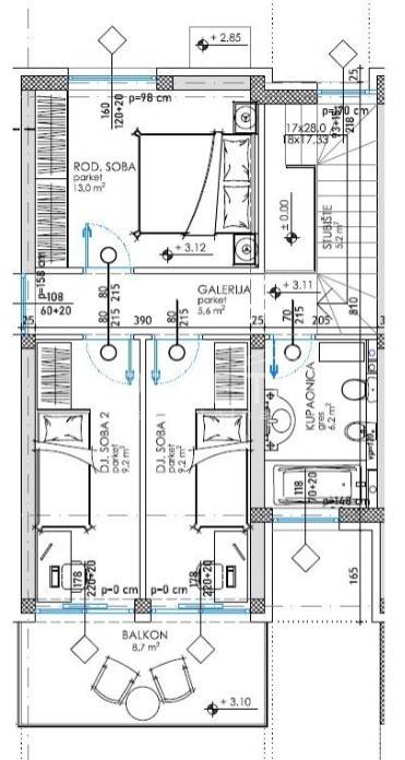
Na katu se nalaze ukupno 3 spavaće sobe i to jedna od 13 m2 i dvije od 9,2 m2, kao i balkon od 8,4 m2, kupaonica od 6,2 m2, galerija od 5,6 m2 i stubište od 5,2 m2.
U izgradnji se koriste vrhunski materijali ( keramika, izolacijski materijali najbolje kvalitete kao što je grafitni stiropor i dr.) i podno grijanje je u cijelom stanu. Ugrađena su protuprovalna vrata i stolarija s 5 komora. Predviđeni energetski certifikat je A+.

Vrhunska ekskluzivna lokacija u Prelogu nedaleko svih životno važnih sadržaja (škola, vrtić, veliki novi zeleni park sa sadržajem, dućan ,jedna od najljepših šetnica u kontinentalnoj Hrvatskoj i dr.). Odlična povezanost i infrastruktura.
Pružamo Vam provjerenu pravnu sigurnost od početka do kraja kupoprodaje.
Características
Tipología
Piso
Contrato
Venta
Planta
Planta baja
Ascensor
No
Superficie
107 m²
Habitaciones
4
Dormitorios
3
Baños
3+
Amueblado
No
Garaje, plazas de aparcamiento
1 en aparcamiento/garaje público
Calefacción
Central, de gas
Aire acondicionado
Frío/calor
Información del precio
Precio
€ 247.825
Precio del m²
2.316 €/m²
Eficiencia energética

Consumo de energia

A+

Descubre otros ángulos del inmueble
+16
Opciones adicionales

Contactar con el anunciante

O