Piso de cuatro habitaciones nuevo, tercera planta, Šibenik

€ 750.000
4
138 m²
2
3

Nota

Anuncio actualizado el 26/03/2026
Descripción

This description has been translated automatically and may not be accurate

referencia: I30152

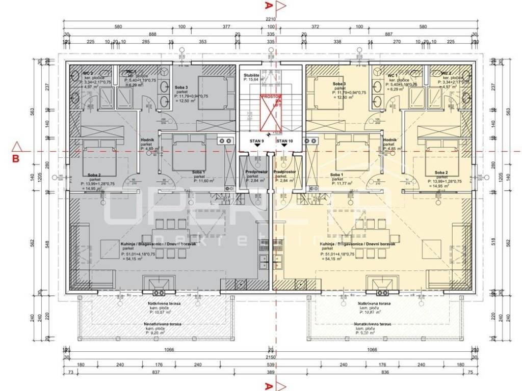
Luxury apartment, 3 rooms, 138.82 m2, Šibenik - Crnica

Apartments in a new building, in a unique location in Šibenik with a view of the old town and the St. Ante channel, are an opportunity that rarely arises on the market.

The building is constructed according to the latest standards using top-quality materials. Underfloor heating in all rooms, air conditioning systems, and an elevator ensure maximum comfort, while the option to choose finishing details such as flooring, ceramics, and sanitary ware allows for personalization according to the buyer's wishes.

Apartment S9 is located on the top, third floor of the building with an additional gallery in the attic. It covers 138 m2 of living space, with 3 bedrooms and 2 bathrooms. The spacious living room connected to the dining area and kitchen forms the heart of the home, along with a terrace of 20 m2 that offers a view of the sea, the city, and the picturesque St. Ante channel.

The apartment also includes a parking space in front of the building. The well-maintained Banj beach is less than 200 m away, and the historic core of Šibenik and all the amenities of the city center are within a few minutes' walk.

The perfect combination of proximity to natural beauty and urban life makes this property an ideal choice for those seeking top comfort and a unique location.

View the virtual tour at the following link: https://Opereta-d-o-o.vr-360-tour.com/e/AsgBlOEaZDA/e?accessibility=false&hidehotspotlabels=true&hidelive=true&hidetitle=true
Características
Tipología
Piso
Contrato
Venta
Planta
3 planta
Ascensor
Superficie
138 m²
Habitaciones
4
Dormitorios
3
Baños
2
Amueblado
No
Garaje, plazas de aparcamiento
1 en aparcamiento/garaje público
Calefacción
Individual, alimentación eléctrica
Aire acondicionado
Frío/calor
Información del precio
Precio
€ 750.000
Precio del m²
5.435 €/m²
Eficiencia energética
  • Año de construcción

    2024
  • Estado

    Nuevo / En construcción
  • Calefacción

    Individual, alimentación eléctrica
  • Aire acondicionado

    Frío/calor
Descubre otros ángulos del inmueble
+16
Opciones adicionales

Contactar con el anunciante

O