Piso de tres habitaciones nuevo, tercera planta, Makarska

€ 255.852
3
71 m²
1
3

Nota

Anuncio actualizado el 30/04/2026
Descripción

This description has been translated automatically and may not be accurate

referencia: I32585

Makarska New Build Apartments Move-In Ready in Q4

In the heart of the sunny Makarska Riviera, in a quiet location above the city beach, a modern residential building is in its final phase of construction, with completion expected in Q4/2025. This elegant new development has been carefully designed to provide a comfortable and high-quality lifestyle, close to all amenities, yet tucked away enough to enjoy peace and quiet in everyday life.

The apartments within the building feature contemporary design and functionality spacious living rooms filled with natural light, modern bathrooms, and cozy bedrooms create a pleasant atmosphere, while large terraces offer valuable outdoor space for relaxation. The entire layout is thoughtfully crafted with a focus on comfort, aesthetics, and everyday practicality.

Located in a cul-de-sac, the building offers additional privacy and safety. Nearby are a café, grocery store, and public transport stop, ensuring quick and easy access to everything you need without compromise. The building includes garage and outdoor parking spaces, and an elevator adds another layer of daily convenience.

These apartments are an ideal choice for families seeking a peaceful home near the sea, couples in search of a modern living space, or investors who recognize the value in a highly desirable tourist location such as Makarska. This is more than just square meters its a lifestyle.

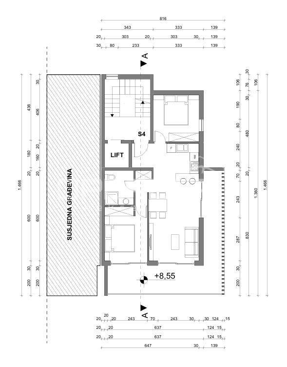
Apartment S4I (East) is located on the 1st floor and consists of: hallway 2.27 m, living room with kitchen and dining area 26.47 m, bathroom 4.29 m, bedroom 9.64 m, bedroom 11.40 m.

Total indoor living area: 54.07 m
Uncovered terrace: 22.61 m x coefficient 0.75 = 17 m

Total usable area: 71.07 m

Mandatory additional purchases:

Garage parking space: 22,000

Outdoor parking space: 12,000









Características
Tipología
Piso
Contrato
Venta
Planta
3 planta
Ascensor
Superficie
71 m²
Habitaciones
3
Dormitorios
2
Baños
1
Amueblado
No
Garaje, plazas de aparcamiento
1 en aparcamiento/garaje público
Calefacción
Individual, alimentación eléctrica
Aire acondicionado
Frío/calor
Información del precio
Precio
€ 255.852
Precio del m²
3.604 €/m²
Eficiencia energética
  • Año de construcción

    2025
  • Estado

    Nuevo / En construcción
  • Calefacción

    Individual, alimentación eléctrica
  • Aire acondicionado

    Frío/calor
Descubre otros ángulos del inmueble
+28
Opciones adicionales

Contactar con el anunciante

O