Piso de tres habitaciones nuevo, planta baja, Šibenik

€ 205.819
3
60 m²
1
B
No

Nota

Anuncio actualizado el 15/04/2026
Descripción

This description has been translated automatically and may not be accurate

referencia: I32438

2-bedroom apartment, 60,53 m2, Vidici- Šibenik

A modern building with a total of five apartments is being built in a prime location in the Šibenik settlement of Vidici.
This is a quiet residential area ideal for family life, in close proximity to all key amenities schools, kindergartens, shops and public transport. The center of Šibenik and its charming core, as well as the sea and beaches, are only a few minutes' drive away, which provides a perfect combination of everyday convenience and proximity to the Mediterranean lifestyle.

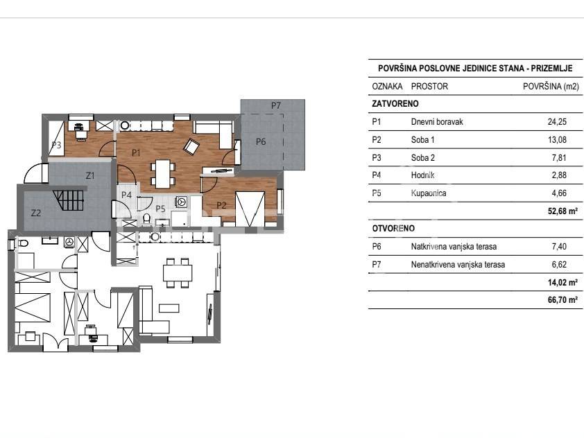
Apartment P1 is located on the ground floor of a two-story building.
The enclosed living space of 52.68 m includes two bedrooms, a hallway, a bathroom and a living room with a kitchen and dining room. Additional comfort is provided by two terraces a covered area of 7.40 m and an uncovered area of 6.62 m, which allow for a pleasant stay outdoors throughout the year.

The building will be built according to the latest construction standards, and underfloor heating in all rooms, air conditioning and high energy efficiency guarantee long-term value and low maintenance costs.

The apartment also includes 1 parking space.
Características
Tipología
Piso
Contrato
Venta
Planta
Planta baja
Ascensor
No
Superficie
60 m²
Habitaciones
3
Dormitorios
2
Baños
1
Amueblado
No
Garaje, plazas de aparcamiento
1 en aparcamiento/garaje público
Calefacción
Individual, alimentación eléctrica
Aire acondicionado
Frío/calor
Información del precio
Precio
€ 205.819
Precio del m²
3.430 €/m²
Eficiencia energética
  • Año de construcción

    2026
  • Estado

    Nuevo / En construcción
  • Calefacción

    Individual, alimentación eléctrica
  • Aire acondicionado

    Frío/calor
Descubre otros ángulos del inmueble
+6
Opciones adicionales

Contactar con el anunciante

O