Casa unifamiliar 130 m², nueva, Bistra

€ 270.000
4
130 m²
3
No

Nota

Anuncio actualizado el 09/02/2026
Descripción

referencia: I30599

PRODAJA, KUĆA U NIZU, NOVOGRADNJA, GORNJA BISTRA
u miru, tišini i zelenilu, novogradnja vrhunske kvalitete u Gornjoj Bistri.

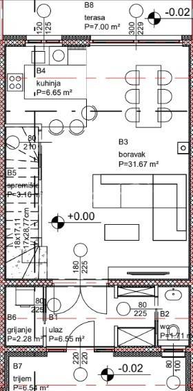
Kuća u nizu koja se sastoji od dnevnog boravka, blagovaonice, kuhinje, WC-a, terase, trijema, ulaznog prostora, spremišta i prostorije sa sustavom za grijanje u prizemlju te glavne spavaće sobe s vlastitom kupaonicom s tušem, dvije prostrane spavaće sobe, garderobne sobe, kupaonice s kadom, vešeraja, balkona i hodnika na katu.

Uz kuću dolazi vrt od 16 m2 te dva natkrivena parkirna mjesta.

Neki od prvoklasnih materijala korištenih u izgradnji za vrhunsku energetsku očuvanost i maksimalni komfor budućih stanara su:

ICF blokovi s armirano-betonskom konstrukcijom i Neoporom za vrhunsku izolaciju
aluminijska stolarija s troslojnim staklima i komorama punjenim plinom
aluminijske rolete punjene poliuretanom
bešumne cijevi
infracrveno podno grijanje
vrhunska keramika i SPC vinil podne obloge po izboru kupca

Kupac ne plaća porez na promet nekretnina.

Svi za život bitni sadržaji unutar nekoliko stotina metara.

Planirani završetak izgradnje i useljenje na ljeto 2025-e.
Características
Tipología
Casa unifamiliar
Contrato
Venta
Planta
1
Ascensor
No
Superficie
130 m² | comercial 875 m²
Habitaciones
4
Dormitorios
3
Baños
3
Amueblado
No
Garaje, plazas de aparcamiento
1 en aparcamiento/garaje público
Calefacción
Individual, alimentación eléctrica
Aire acondicionado
Frío/calor
Detalle superficie

Vivienda

Planta
1
Superficie
130,0 m²
Coeficiente
100%
Tipo de superficie
Principal
Superficie construida
130,0 m²

Terreno

Planta
Planta baja
Superficie
745,0 m²
Coeficiente
100%
Tipo de superficie
Anexos
Superficie construida
745,0 m²
Información del precio
Precio
€ 270.000
Precio del m²
309 €/m²
Eficiencia energética
  • Año de construcción

    2025
  • Estado

    Nuevo / En construcción
  • Calefacción

    Individual, alimentación eléctrica
  • Aire acondicionado

    Frío/calor
Descubre otros ángulos del inmueble
+8
Opciones adicionales

Contactar con el anunciante

O