Casa unifamiliar 191 m², nueva, Vodice

€ 650.000
4
191 m²
3
No

Nota

Anuncio actualizado el 09/02/2026
Descripción

This description has been translated automatically and may not be accurate

referencia: I34321

Modern family house with pool and spacious garden Vodice

A modern family house located in a quiet part of Vodice, ideal for family living, holidays, or tourist rental. The house is situated on a building plot of 619 m, with a carefully designed layout and a functional division into ground floor and first floor.

The total net usable living area is 191.62 m, while the total usable area of the building (including terraces) amounts to 158.09 m. The property is designed with an emphasis on comfort, privacy, and a strong connection between indoor and outdoor spaces.

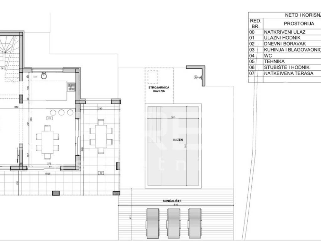
GROUND FLOOR

The ground floor features a spacious open-plan living room with dining area and kitchen, with access to covered and uncovered terraces and the garden. This level also includes:

entrance area / hallway

guest WC

storage room

staircase leading to the upper floor

Large glass walls provide plenty of natural light and direct access to the outdoor area, where a swimming pool, sun deck, and relaxation area are located.

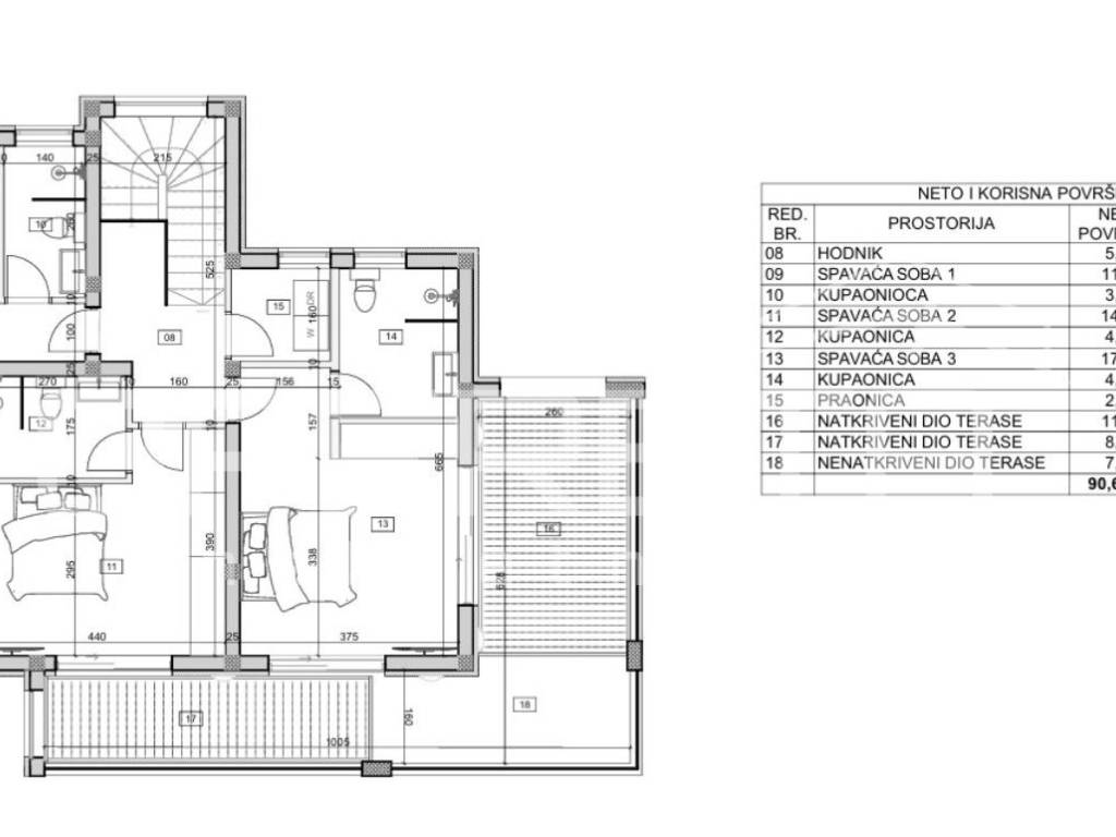
FIRST FLOOR

The first floor comprises the sleeping area, including:

three bedrooms, one with an en-suite bathroom

an additional bathroom

hallway

access to covered and uncovered terraces with a beautiful view and additional space for relaxation

The total net area of the first floor is 90.68 m, with terraces further enhancing the quality of living.

Garden and Parking

The garden is beautifully arranged with landscaped green areas, a swimming pool, and a terrace. At least two parking spaces are provided, with a landscaped access road.

ADDITIONAL INFORMATION:

building height: 6.74 m

building coefficient: Kig = 0.194

utilization coefficient: Kis = 0.277

modern architecture and functional layout

quiet location, ideal for living or investment

Ownership is neat and free of encumbrances.
Características
Tipología
Casa unifamiliar
Contrato
Venta
Planta
1
Ascensor
No
Superficie
191 m² | comercial 810 m²
Habitaciones
4
Dormitorios
3
Baños
3
Amueblado
No
Garaje, plazas de aparcamiento
1 en aparcamiento/garaje público
Calefacción
Individual, alimentación eléctrica
Aire acondicionado
Frío/calor
Otras características
  • Piscina
Detalle superficie

Vivienda

Planta
1
Superficie
191,0 m²
Coeficiente
100%
Tipo de superficie
Principal
Superficie construida
191,0 m²

Terreno

Planta
Planta baja
Superficie
619,0 m²
Coeficiente
100%
Tipo de superficie
Anexos
Superficie construida
619,0 m²
Información del precio
Precio
€ 650.000
Precio del m²
802 €/m²
Eficiencia energética
  • Año de construcción

    2025
  • Estado

    Nuevo / En construcción
  • Calefacción

    Individual, alimentación eléctrica
  • Aire acondicionado

    Frío/calor
Descubre otros ángulos del inmueble
+12
Opciones adicionales

Contactar con el anunciante

O