Piso de cuatro habitaciones Privlaka, Privlaka

€ 480.000
4
129 m²
2
1
No
Terraza

Nota

Anuncio actualizado el 21/04/2026
Descripción

This description has been translated automatically and may not be accurate

referencia: 125-135

Kaiser Immobilien presents: Zadar, Privlaka: Duplex apartment with roof terrace and panoramic view

A duplex apartment in a modern residential building with a total of two floors, located in a quiet and well-maintained part of Privlaka near Zadar, represents an exceptional opportunity for luxurious living by the sea or a secure investment for vacation and tourist rental. On the first floor of the building there are four duplex apartments, designed to provide maximum privacy, comfort and an exclusive Mediterranean lifestyle. The apartment is south-facing, extremely sunny throughout the day, with panoramic views of the sea and islands. It is located only 40 meters from the beach and promenade, which allows daily enjoyment in the immediate vicinity of the sea, with complete peace and a relaxed atmosphere.

The entrance part of the apartment is located on the first floor, where there is a spacious living room with kitchen and dining room and access to the loggia. Internal stairs lead to the second floor, where the sleeping part of the apartment with additional rooms is located. A special value of this property is the spacious roof terrace connected to the sleeping area of the apartment by stairs, which offers an open panoramic view of the sea and the Zadar archipelago.

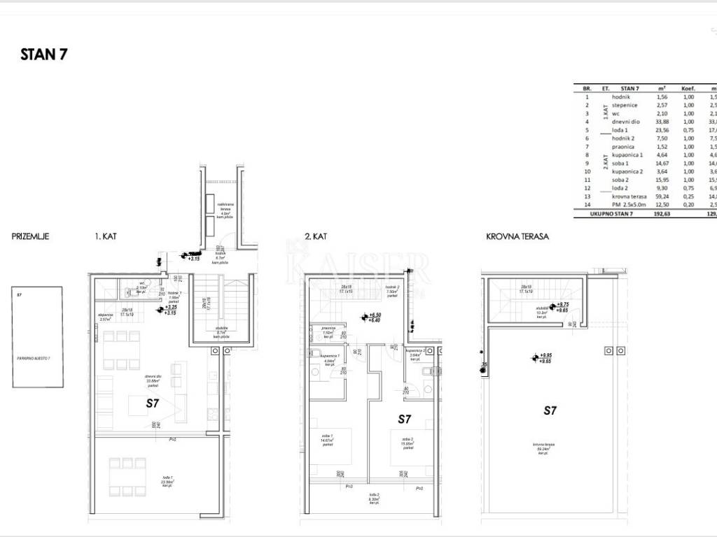
The total calculated area of the apartment is 129.99 m², while the total actual area with all outdoor spaces is 192.63 m².

Apartment contents with square footage:
-hallway 1.56 m²
-stairs 2.57 m²
-WC 2.10 m²
-living room with kitchen and dining room 33.88 m²
-loggia 1 23.56 m²
-hallway 2 7.50 m²
-laundry room 1.52 m²
-bathroom 1 4.64 m²
-bedroom 1 14.67 m²
-bathroom 2 3.64 m²
-bedroom 2 15.95 m²
-loggia 2 9.30 m²
-roof terrace 59.24 m²
-parking space 12.50 m²

Other apartments are available in the same building, all with the same number of rooms, south orientation and sea view.
On the ground floor there are apartments for sale, each with a private garden, area:
-100 m²
-87.86 m²
-88.43 m²
-88.41 m²

On the first floor there are apartments with area:
-105.60 m²
-107.13 m²

On the first floor there is another two-story apartment with access to the roof terrace with area:
-131.06 m²

Distances and connections:
-beach and promenade 40 m
-Zadar 18 km
-Nin 5 km
-Vir 10 km
-A1 motorway exit Zadar 25 km
-Zadar Airport 30 km
-Split 140 km
-Zagreb 285 km

The buyer's commission is 3% + VAT and is charged with the first legal act.
For additional information, photos or to arrange a viewing, please feel free to contact us.
Tel.: +385992510230
Email: marijana.papic@kaiser-immobilien.hr

ID CODE: 125-135

Marijana Papić
Agent posredovanja u prometu nekretnina
Mob: +385992510230, +385995677888
E-mail: marijana.papic@kaiser-immobilien.hr
www.kaiser-immobilien.hr
Características
Tipología
Piso
Contrato
Venta
Planta
1 planta
Plantas del edificio
2
Ascensor
No
Superficie
129 m²
Habitaciones
4
Dormitorios
3
Baños
2
Balcón
No
Terraza
Garaje, plazas de aparcamiento
1 en aparcamiento/garaje público
Aire acondicionado
Individual, frío/calor
Información del precio
Precio
€ 480.000
Precio del m²
3.721 €/m²
Eficiencia energética
  • Año de construcción

    2025
  • Aire acondicionado

    Individual, frío/calor
  • Certificación energética

    Inclasificable
Descubre otros ángulos del inmueble
+40
Opciones adicionales

Contactar con el anunciante

O