Piso de cuatro habitaciones Petrčane, Zadar - Okolica, Petrčane - Kožino, Zadar

€ 395.000
4
130 m²
2
2
No
Terraza

Nota

Anuncio actualizado el 29/04/2026
Descripción

This description has been translated automatically and may not be accurate

referencia: 405

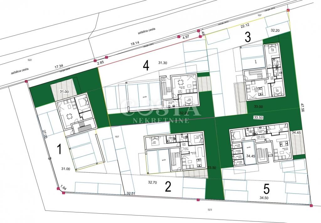
ZADAR, PETRČANE - Penthouse with sea view under construction Z4S4

A modern apartment under construction in Petrčane near Zadar is for sale. The apartment with a living area of ​​90.1 m2 is located on the second floor of a smaller residential building with 4 units within a complex of five modern buildings. It consists of a living room, kitchen and dining room, three bedrooms, two bathrooms, hallway and a covered terrace of an additional 17.9 m2. The apartment also includes two parking spaces. The total selling area of ​​the apartment, including the annexes, is 130 m2.

The apartment is fully air-conditioned, and quality materials such as thermal insulation on the facade, PVC joinery with electric shutters, ceramic tiles and parquet were used in the construction.

The expected completion date of the construction is in the first half of 2027.

The facility is located in a quiet part of Petrčane, and is 650 m from the beach. There is a shop, several restaurants and cafes nearby. Petrčane is a picturesque place near Zadar, which is also one of the most popular tourist destinations in Zadar County during the season. Petrčane is also known for its Royal Vineyards, one of the largest in Dalmatia. The city of Zadar is 12 km away, and the nearest airport Zemunik is 25 km away.

Dear clients, the brokerage fee is charged in accordance with the General Terms and Conditions
https://costa-nekretnine.hr/o-nama/opci-uvjeti-poslovanja

ID CODE: 405

Sara Večeralo
Agent s licencom
Mob: +385 99 284 0404
Tel: +385 99 864 9125
E-mail: sara@costa-nekretnine.hr
www.costa-nekretnine.hr
Características
Tipología
Piso
Contrato
Venta
Planta
2 planta
Plantas del edificio
2
Ascensor
No
Superficie
130 m²
Habitaciones
4
Dormitorios
3
Baños
2
Balcón
No
Terraza
Garaje, plazas de aparcamiento
2 en aparcamiento/garaje público
Calefacción
Individual, por aire
Aire acondicionado
Individual, frío/calor
Información del precio
Precio
€ 395.000
Precio del m²
3.038 €/m²
Eficiencia energética
  • Año de construcción

    2026
  • Calefacción

    Individual, por aire
  • Aire acondicionado

    Individual, frío/calor
  • Certificación energética

    Inclasificable
Plano
Descubre otros ángulos del inmueble
+8
Opciones adicionales

Contactar con el anunciante

O