Piso de tres habitaciones Sukošan, Sukošan

€ 273.105
3
82 m²
1
No
Terraza

Nota

Anuncio actualizado el 31/03/2026
Descripción

This description has been translated automatically and may not be accurate

referencia: 7321

Modern apartments in Sukošan – only 200 m from the sea

In an attractive location in Sukošan, just 200 meters from the sea and the beach, modern apartments are for sale in a newly built residential building consisting of six units.

The apartments are located in a quiet street near the town center and are characterized by high-quality construction, contemporary design, and private gardens – the perfect combination for comfortable living, vacation, or investment in tourism.

Available apartments:
Ground floor:
S1 – SOLD
S2 – 2 bedrooms, living room, kitchen, dining room, bathroom, terrace, garden (152 m²) – net area 75.53 m² – €317,345

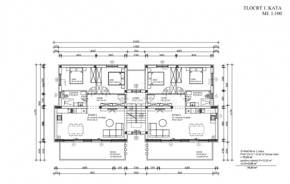
1st floor:
S3 – SOLD
S4 – SOLD

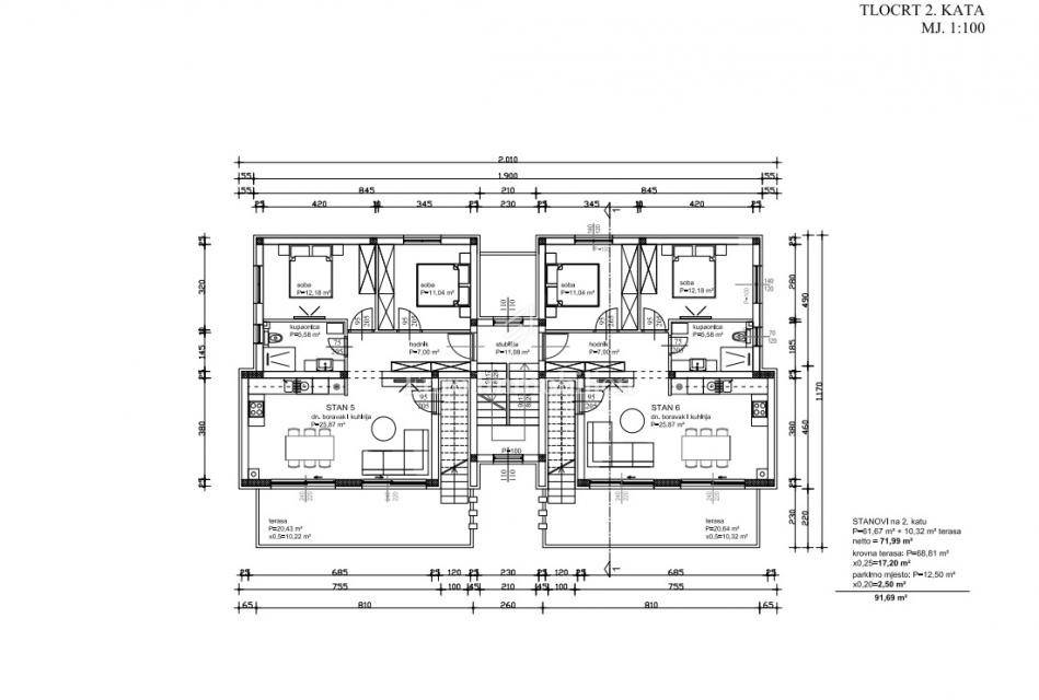
2nd floor:
S5 – 2 bedrooms, living room, kitchen, dining room, bathroom, terrace and roof terrace (68.81 m²) – net area 91.96 m² – €313,845
S6 – 2 bedrooms, living room, kitchen, dining room, bathroom, terrace and roof terrace (68.81 m²) – net area 91.96 m² – €313,845

Layout:
Entrance hall
Spacious open-plan living area with kitchen, dining, and lounge opening onto an elevated, covered terrace
Two comfortable bedrooms
Modern bathroom
One outdoor parking space

Features and equipment:
Reinforced concrete structure and thermal block walls
Energy-efficient thermal façade
High-quality wood-aluminium joinery
Italian porcelain tiles (Marazzi / Mirage)
Oak parquet flooring in bedrooms
Underfloor heating in the bathroom and living room
Mitsubishi multi-split heating and cooling system
Villeroy & Boch sanitary ware
Security entrance doors
Staircase and entrance covered in natural stone
Landscaped gardens and greenery
Paved parking spaces

Special early booking discount available!

Provizija agencije za kupca iznosi 3% + PDV i plaća se u slučaju kupovine nekretnine kod zaključenja kupoprodajnog Ugovora.

ID CODE: 7321

Euro Immobilien d.o.o.
Mob: 00385994440500
Tel: +385 51 220 024
E-mail: info@euro-immobilien.hr
www.euro-immobilien.hr
Características
Tipología
Piso
Contrato
Venta
Plantas del edificio
3
Ascensor
No
Superficie
82 m²
Habitaciones
3
Dormitorios
2
Baños
1
Balcón
No
Terraza
Garaje, plazas de aparcamiento
1 en aparcamiento/garaje público
Información del precio
Precio
€ 273.105
Precio del m²
3.331 €/m²
Eficiencia energética
  • Año de construcción

    2026
  • Certificación energética

    Inclasificable
Plano
Descubre otros ángulos del inmueble
+8
Opciones adicionales

Contactar con el anunciante

O