Piso de tres habitaciones nuevo, Sveti Filip i Jakov

€ 336.096
3
102 m²
1
No
Terraza

Nota

Anuncio actualizado el 14/04/2026
Descripción

referencia: 2135

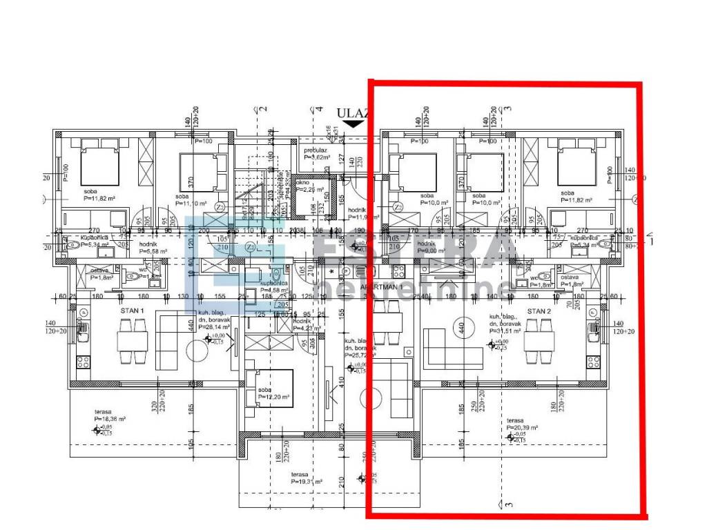
Na prodaju je apartman S2, smješten u prizemlju moderne novogradnje na atraktivnoj i mirnoj lokaciji u Turnju , svega 250 m od mora i 700 m od centra mjesta.

Apartman ima ukupnu površinu od 102,53 m2 te se sastoji od:

Hodnik – 9,00 m2
Dnevni boravak, kuhinja i blagovaonica - 31,51 m2
Spavaća soba 1 – 10,00 m2
Spavaća soba 2 – 10,00 m2
Spavaća soba 3 – 11,82 m2
Kupaonica – 5,34 m2
WC - 1,80 m2
Ostava - 1,80 m2
Terasa - 16,83 m2
Terasa - 4,59 m2

Uz apartman dolazi vrt 117 m2, te dva parkirna mjesta.

Zgrada se sastoji od četiri etaže i ukupno devet luksuznih apartmana, te ima ugrađeni lift, što dodatno doprinosi udobnosti.

Kvaliteta gradnje i oprema:

Armiranobetonska konstrukcija (temelji, ploče i stubište)
Nosivi zidovi od blok opeke
ETICS fasada s 10 cm toplinske izolacije
PVC vanjska stolarija s IZO staklima i aluminijskim roletama (RAL ugradnja)
Protupožarna i protuprovalna ulazna vrata u stanove (EI2-30-C)
Podovi: keramika i parket
Grijanje/hlađenje: podno električno grijanje u kupaoici i dnevnom boravku, klima urađaj u svakoj prostoriji
Etaže povezane armiranobetonskim stubištem i liftom
Objekt priključen na kanalizacijsku mrežu

Plaćanje moguće po fazama završetka objekta (30/20/20/20), za više informacija nazovite na +38919381007 Vedran.



Planirani rok useljenja je 06/2027.

Kontakt:
Vedran Knežević
Mob: +385 91 938 1007
(WhatsApp i Viber dostupni)

Za više informacija i dogovor oko pregleda, slobodno se javite.
Si deseas más información puedes hablar con Gordan Mikac.
Características
Tipología
Piso | Tipo de inmueble medio
Contrato
Venta
Plantas del edificio
2
Ascensor
No
Superficie
102 m²
Habitaciones
3
Dormitorios
3
Baños
1
Balcón
No
Terraza
Calefacción
Individual, por aire
Aire acondicionado
Individual
Información del precio
Precio
€ 336.096
Precio del m²
3.295 €/m²
Eficiencia energética
  • Año de construcción

    2027
  • Estado

    Nuevo / En construcción
  • Calefacción

    Individual, por aire
  • Aire acondicionado

    Individual
Descubre otros ángulos del inmueble
+15
Opciones adicionales

Contactar con el anunciante

O