Piso de tres habitaciones nuevo, primera planta, Privlaka

€ 454.960
3
130 m²
3
1
Terraza

Nota

Anuncio actualizado el 22/01/2026
Descripción

This description has been translated automatically and may not be accurate

referencia: 4183

The new project of a luxurious new building in an exceptional location, 150 m from the sea, in the immediate vicinity of a beautiful beach, offers top quality apartments that will meet the criteria of even the most demanding clients.
All apartments have a beautiful panoramic view of the sea and nearby islands.
Superior construction with quality materials; high-quality carpentry, top-quality ceramics and parquet floors, underfloor heating, air conditioning in all rooms, thermal facade, flat roof with roof terraces.

The building is oriented southwest.

The planned construction completion date is the end of the year 2025.

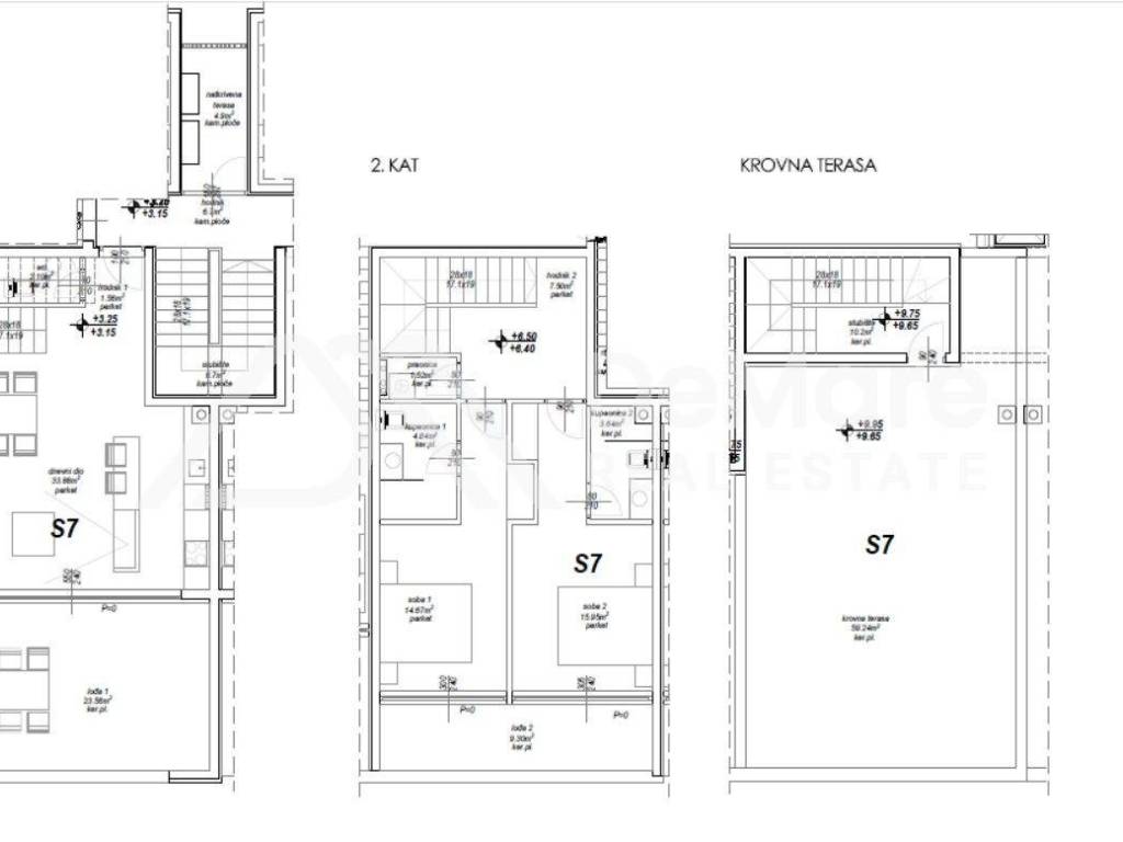
≈ PENTHOUSE 7 - 1.st FLOOR and 2.nd FLOOR + ROOF TERRACE
A spacious two-story PENTHOUSE apartment with a roof terrace, 130 m2 in area, is spread over the 1st and 2nd floor of the building, and consists of:
1.st FLOOR »
- hallway / 1.56 m2,
- kitchen+dining room+living room / 33.88 m2,
- loggia 1 - sea view / 23.56 m2
- stairs / 2.57 m2
- toilet / 2.10 m2

2.nd FLOOR »
- hallway 2 / 7.50 m2
- laundry / 1.52 m2
- 2 bedrooms / 14.67 m2 + 15.95 m2
- 2 bathrooms / 4.64 m2 + 3.64 m2
- loggia 2 - sea view / 9.30 m2

The apartment has a beautiful roof terrace of 59 m2 with an open, panoramic view of the sea and the sunset, as well as a parking space in the garden of the building of 12.50 m2.
≅ The total area of the apartment is 193 m2, while the calculation value of the usable area of this apartment is 130 m2.

The seller is a company, so the buyer DOES NOT PAY real estate sales tax.
The documentation is in order.

Feel free to contact us for any additional information!

De Mare nekretnine d.o.o.
+385 23 300 400
info@demare.hr

LOCATION:
This facility is located in an exclusive location with a view of the sea and islands, only 150 m from the sea and the beach.
An ideal location for rest and relaxation with a view of the beautiful sunset. There is also a pier nearby where there is a possibility of mooring for boats.
Privlaka is a small fishing and tourist town located on a spacious sandy peninsula near Zadar (21 km) and the royal town of Nin (8 km). The distance to the island of Vir is 7 km, and to Zadar airport is 33 km. Clean and clear sea and shallow sandy coves make this location ideal for life and family tourism.
Si deseas más información puedes hablar con Ivo Strenja.
Características
Tipología
Piso
Contrato
Venta
Planta
1
Plantas del edificio
2
Superficie
130 m²
Habitaciones
3
Dormitorios
2
Baños
3
Terraza
Garaje, plazas de aparcamiento
1 en aparcamiento/garaje público
Aire acondicionado
Individual, frío/calor
Vistas
Mar, panorámica
Detalle superficie

Vivienda

Planta
1
Superficie
130,0 m²
Coeficiente
100%
Tipo de superficie
Principal
Superficie construida
130,0 m²
Información del precio
Precio
€ 454.960
Precio del m²
3.500 €/m²
Desglose de los costes
Gastos de comunidad
Ningún gasto de comunidad
Eficiencia energética
  • Año de construcción

    2025
  • Estado

    Nuevo / En construcción
  • Aire acondicionado

    Individual, frío/calor
  • Certificación energética

    Inclasificable
Descubre otros ángulos del inmueble
+8
Opciones adicionales

Contactar con el anunciante

O