map icon

Piso nuevo, segunda planta, Privlaka

Privlaka
€ 499.000
5
152 m²
1
2

Nota

Anuncio actualizado el 22/01/2026
Descripción

This description has been translated automatically and may not be accurate

referencia: 3806-1

A new construction project in Privlaka is for sale, with SEA view!
There are 2 buildings, each with 5 apartments, in an excellent location, only 140 m from the sea and the beach away. ž
This poject is planed to be built with very high quality and luxurious equipment.
Each building has 5 apartments distributed 2 each on the ground floor and on the 1.st floor and on the 2.nd floor there is one penthouse apartment.
Equipment to be installed: Grohe, Laufen, Kolpa-San sanitary ware, TECE, Italian tiles, travertine stone, dark glass fence with 16 mm thick tempered glass, etc.
The carpentry will be PVC, white inside and anthracite outside, with mosquito nets and electric lifting blinds, sliding door walls, etc.
Each apartment has it own 1 parking space with the possibility of purchasing an additional one.

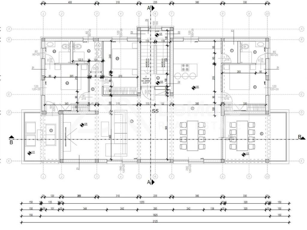
Apartment S5 PENTHOUSE:
The apartment occupies the entire 2.nd floor and has an beautiful opened sea view !!!
The penthouse consists of three bedrooms, two of which have a private bathroom, and one room has its own balcony of 11 m2.
In total, the apartment has 3 bathrooms. It also has a living room with a dining room and a kitchen with a storage room, and a 19 m2 terrace with all connections installation for a jacuzzi-pool.
The apartment will be equipped with underfloor heating in the bathrooms, electric blinds, quality carpentry with mosquito nets and electric blinds, travertine stone in the loggias, dark glass fence, Italian tiles....

Apartment area:
- terrace 1 - 17.28 m2, net area 17.28 m2 x 0.5 = 8.64 m2
- terrace 2 - 9.90 m2, net area 9.90 m2 x 0.5 = 4.95 m2
- kitchen, dining room, living room - 76.68 m2
- hallway - 3.05 m2
- storage room - 2.14 m2
- bathroom 1. - 4.72 m2
- bathroom 2. - 3.54 m2
- bathroom 3. - 3.54 m2
- bedroom 1. - 12.67 m2
- bedroom 2. - 11.47 m2
- bedroom 3. - 12.76 m2
- parking lot 1. - 15 m2, net area 15 m2 x 0.25 = 3.75 m2
- parking lot 2. - 15 m2, net area 15 m2 x 0.25 = 3.75 m2
Total gross area = 187.75 m2; net area: 151.66 m2

The apartment is finished and is ready to move in.
The ADVANTAGE of buying this property is that the investor is a legal entity, so the buyer DOES NOT PAY real estate sales tax.

LOCATION:
This property is located in an extremely attractive location, only 140 m from the sea and a sandy beach, with nice sea view.
Privlaka is a small fishing and tourist place located on a spacious sandy peninsula near Zadar (21 km) and the royal town of Nin (8 km). The distance to the island of Vir is 7 km, and to Zadar airport is 33 km.
Clean and clear sea and shallow sandy beach, make this location ideal for everyday life and family tourism.
Características
Tipología
Piso
Contrato
Venta
Planta
2 planta
Superficie
152 m²
Habitaciones
5
Dormitorios
2
Baños
1
Aire acondicionado
Centralizada, frío/calor
Información del precio
Precio
€ 499.000
Precio del m²
3.283 €/m²
Eficiencia energética
  • Año de construcción

    2025
  • Estado

    Nuevo / En construcción
  • Aire acondicionado

    Centralizada, frío/calor
  • Certificación energética

    Inclasificable
Descubre otros ángulos del inmueble
+19
Opciones adicionales

Contactar con el anunciante

O