map icon

Piso nuevo, primera planta, Privlaka

Privlaka
€ 467.000
5
130 m²
2
1

Nota

Anuncio actualizado el 21/04/2026
Descripción

referencia: 1078-1

LUKSUZAN TROETAZNI STAN PRIVLAKA, DRUGI RED OD MORA
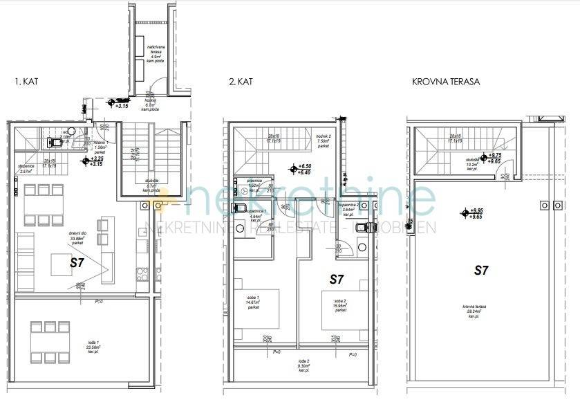
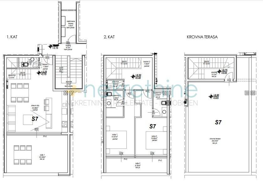
Prodaje se prostrani dvosoban stan (S7) na tri etaze u Privlaci, u neposrednoj blizini Zadra. Ukupna površina stana s pripadcima iznosi 129,99 m.
Stan se nalazi u zgradi s 10 stambenih jedinica, smještenoj drugi red od mora. Prilaz zgradi je privatan, ograđen i osiguran sustavom pristupa putem šifre ili kartice, što vlasnicima osigurava potpunu privatnost i sigurnost.
KARAKTERISTIKE STANA:
Ulazni hodnik
Prostrani dnevni boravak s kuhinjom i blagovaonicom (33,88m2)
Dvije spavaće sobe
Dva moderna kupatila
Wc
Garderoba
Praonica
Lođa 1 (23,56m2)
Lođa 2 (9,30m2)
Krovna terasa (59m2)
Vlastito parkirno mjesto na parceli

VRHUNSKA OPREMA:
Podno grijanje u dnevnom boravku i kuhinji za maksimalnu udobnost
Klima uređaji u svim sobama
Visokokvalitetni parketi i keramika
PVC stolarija najviše kvalitete
Kupac ne plaća porez na promet nekretnina!
Planirani završetak gradnje: veljača 2026.
Privlaka je poznata po prekrasnim pješčanim plažama, čistom moru i mirnom okruženju, idealnom za život ili odmor.
Ne propustite priliku za kupnju vrhunskog stana na izvrsnoj lokaciji!
Kontaktirajte nas za više informacija i dogovor oko razgledavanja!


Filip Nincevic
+385 98 175 4919
Marko Čakarun
+385 900 7040
Si deseas más información puedes hablar con Marko Čakarun.
Características
Tipología
Piso
Contrato
Venta
Planta
1 planta
Superficie
130 m²
Habitaciones
5
Dormitorios
2
Baños
2
Información del precio
Precio
€ 467.000
Precio del m²
3.592 €/m²
Eficiencia energética
  • Estado

    Nuevo / En construcción
  • Certificación energética

    Inclasificable
Descubre otros ángulos del inmueble
+7
Opciones adicionales

Contactar con el anunciante

O