Piso de una habitación nuevo, segunda planta, Povljana

€ 176.750
1
44 m²
1
2
No
Balcón

Nota

Anuncio actualizado el 03/11/2025
Descripción

This description has been translated automatically and may not be accurate

referencia: iro-699013

PAG - POVLJANA, APARTAMENTO 44,31 M2, VENTA, VISTA, NUEVO, ¡UBICACIÓN!

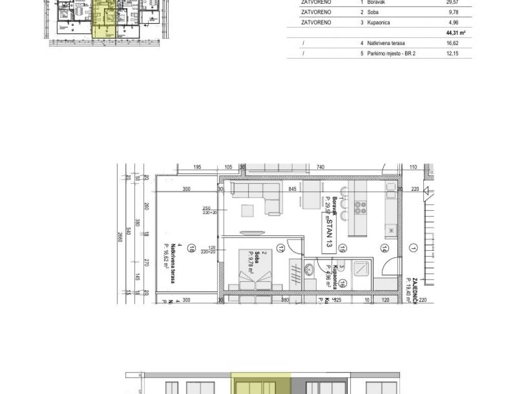
Pag - Povljana, se vende un apartamento de un dormitorio de 44,31 m2 en el segundo piso de un edificio residencial en construcción con un total de quince apartamentos, con entrega prevista para el verano de 2026.

Se compone de: un dormitorio, sala de estar + cocina + comedor, baño y terraza.

¡DESDE EL APARTAMENTO HAY VISTA AL MAR!

Está ubicado en una excelente ubicación, a 300 m del mar y de la playa Mali Dubrovnik, a 600 m de la playa Dubrovnik, cerca de tiendas, cafeterías, restaurantes y todos los demás servicios necesarios para unas vacaciones agradables.

Posee plaza de aparcamiento.

Documentación en regla.

Ver plano del apartamento marcado con S13.
Características
Tipología
Piso | Tipo de inmueble medio
Contrato
Venta
Planta
2 planta
Ascensor
No
Superficie
44 m²
Habitaciones
1
Dormitorios
1
Baños
1
Balcón
Terraza
No
Calefacción
Individual, por aire
Aire acondicionado
Individual
Información del precio
Precio
€ 176.750
Precio del m²
4.017 €/m²
Eficiencia energética
  • Año de construcción

    2025
  • Estado

    Nuevo / En construcción
  • Calefacción

    Individual, por aire
  • Aire acondicionado

    Individual
Descubre otros ángulos del inmueble
+4
Opciones adicionales

Contactar con el anunciante

O