Piso de dos habitaciones segunda planta, Novalja

€ 235.000
2
70 m²
1
2
No
Balcón

Nota

Anuncio actualizado el 12/02/2026
Descripción

This description has been translated automatically and may not be accurate

referencia: S218

Novalja - apartamento de dos habitaciones en el segundo piso

APARTAMENTO 2 — 1. PISO

¡Nuevo en el mercado — apartamentos en construcción!

Se vende moderno apartamento de dos dormitorios en un edificio residencial urbano con 6 unidades, ubicado en una zona tranquila de Novalja. A solo 400 m del mar y 550 m del centro de la ciudad — perfecto para una estancia cómoda, vacaciones familiares o alquiler turístico.
Entrega prevista: otoño 2026.

El apartamento S-2 consta de pasillo de entrada, dos dormitorios, baño, y salón abierto con cocina y comedor. Desde la zona de día se accede a un balcón cubierto de 11,34 m2. El apartamento incluye una plaza de aparcamiento en el patio.

Diseñado para la comodidad con mucha luz natural, materiales de calidad y sistemas modernos — cerámica de alta gama, carpintería PVC, aire acondicionado.

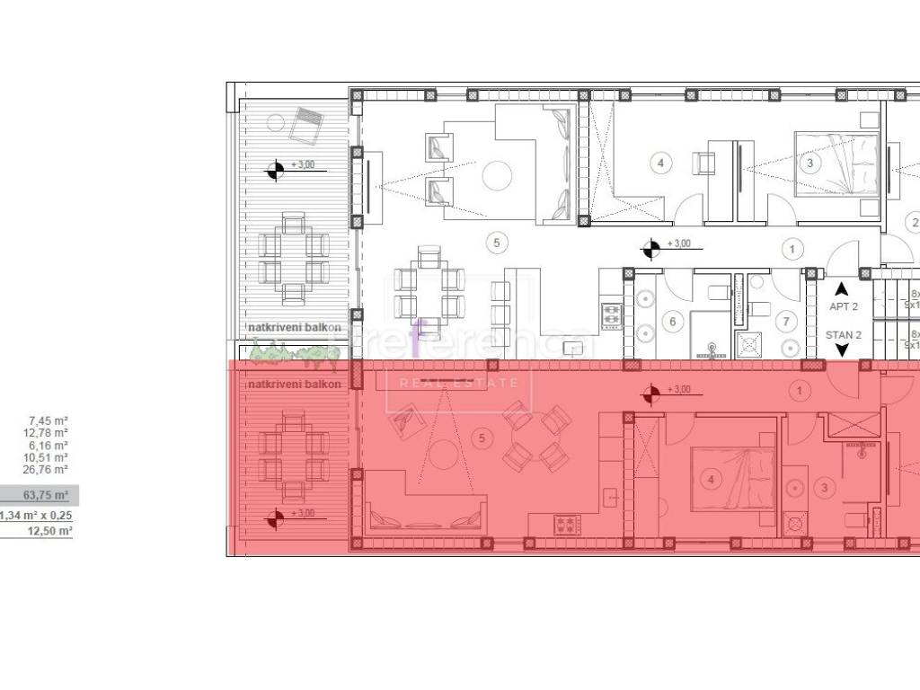
PLANO Y SUPERFICIES

Superficie total construida: 71,92 m2
Superficie útil apartamento: 63,75 m2

- Pasillo — 7,45 m2
- Habitación 1 — 12,78 m2
- Baño — 6,16 m2
- Habitación 2 — 10,51 m2
- Salón + cocina — 26,76 m2

Exterior:

- Balcón cubierto 11,34 m2 (cálculo 5,67 m2)
- 1 plaza de aparcamiento (cálculo 2,50 m2)

Ventajas

- Excelente ubicación — proximidad al mar y al centro
- Construcción moderna y distribución funcional
- Balcón cubierto para disfrutar del verano al aire libre
- Excelente inversión para residencia personal o turismo

Contáctenos para una visita y presentación del proyecto — ¡los apartamentos en construcción se reservan rápido!
Si deseas más información puedes hablar con Zorica Tamarut.
Características
Tipología
Piso | Tipo de inmueble medio
Contrato
Venta
Planta
2 planta
Ascensor
No
Superficie
70 m²
Habitaciones
2
Dormitorios
2
Baños
1
Balcón
Terraza
No
Calefacción
Individual, por aire
Aire acondicionado
Individual
Vistas
Mar
Otras características
  • Puerta blindada
Información del precio
Precio
€ 235.000
Precio del m²
3.357 €/m²
Eficiencia energética
  • Año de construcción

    2025
  • Calefacción

    Individual, por aire
  • Aire acondicionado

    Individual
  • Certificación energética

    Pendiente de certificación
Descubre otros ángulos del inmueble
+14
Opciones adicionales

Contactar con el anunciante

O