map icon

Piso nuevo, segunda planta, Zadar

Zadar
€ 899.000
5+
169 m²
1
2

Nota

Anuncio actualizado el 23/12/2025
Descripción

referencia: 194-1

Predstavljamo modernu zgradu, novogradnju sa 4 vrhunska stana na odličnoj lokaciji na svega 5 min vožnje do centra Zadra u blizini javnog prijevoza i svih za ugodan život potrebnih sadržaja. Blizina plaže i pogled na otok Ugljan pružaju poseban ugođaj.
Zgrada ima 2 kata.
Svi stanovi orijentirani su ka moru a dizajnirani za savršenu funkcionalnost i udobnost te je posebna pažnja posvećena detaljima koji su pažljivo osmišljeni kako bi u potpunosti odgovarali potrebama kupaca.

Prilikom gradnje korišteni su materijali vrhunske kvalitete - od keramike 1. klase, sanitarija, protupožarnih i protuprovalnih vratiju, video nadzor, stolarije sve do sustava grijanja i klimatizacije za koje su zadužene dizalice topline te podnog grijanja u svim prostorijama.
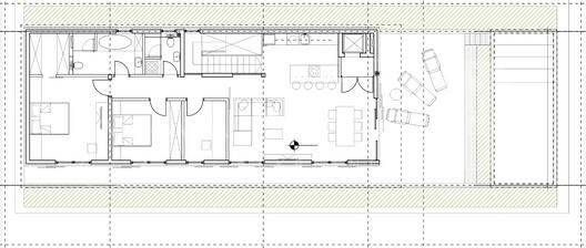
*PRODAJA, 4s stan površine 105m2 sa terasom 64m2 na 2. katu
Stan je jedini na 2. katu što mu daje posebnu intimnost i komfor a sastoji se od:

Ulaznog hodnika,
Prostranog open space prostora dnevnog boravka povezanog s kuhinjom i blagovaonicom,
Izlazom na terasu površine 64m2 sa infinity bazenom veličine 22m2,
Master spavaće sobe s walk-in garderobom,
Spavaće sobe,
Radne sobe i
2 kupaonice s toaletom.

Svaka soba ima zasebni izlaz na terasu.
Velike staklene stijene stanu pružaju izrazitu svijetlost.
Uz svaki stan obavezna je kupnja garažnog parkirnog mjesta površine
13m
30.000 sa PDV-om
ili
15m
35.000 sa PDv-om
Planiran rok završetka gradnje je lipanj / srpanj 2025.


Vlasništvo uredno

Za više informacija:
Andreja Miklautz
Real Estate Agent
091/6208-103
andreja@mmi.hr
Si deseas más información puedes hablar con Andreja Miklautz.
Características
Tipología
Piso
Contrato
Venta
Planta
2 planta
Superficie
169 m²
Habitaciones
5+
Dormitorios
2
Baños
1
Información del precio
Precio
€ 899.000
Precio del m²
5.320 €/m²
Eficiencia energética
  • Año de construcción

    2025
  • Estado

    Nuevo / En construcción
  • Certificación energética

    Inclasificable
Descubre otros ángulos del inmueble
+6
Opciones adicionales

Contactar con el anunciante

O