Piso de cuatro habitaciones tercera planta, Tar-Vabriga

€ 490.000
4
180 m²
2
3

Nota

Anuncio actualizado el 16/02/2026
Descripción

referencia: 192

POREČ, TAR-VABRIGA, NOVOGRADNJA SA 13 STANOVA, USELJENJE 12/2025
Prodaju se stanovi u novogradnji sa 13 stanova, koja je u završnoj fazi izgradnje, planirano useljenje je u 12/2025 g.
Stanovi su opremljeni električnim podnim grijanjem, sve prostorije imaju klima uređaj, vrhunska keramika i parketi, zgrada ima lift.
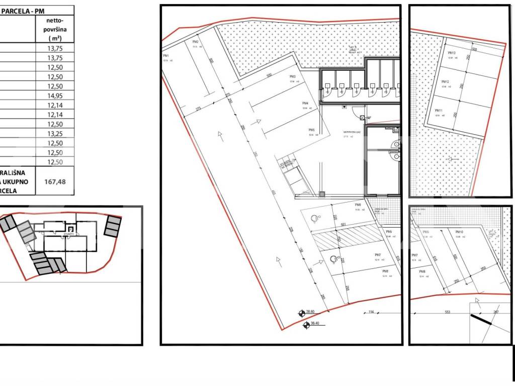
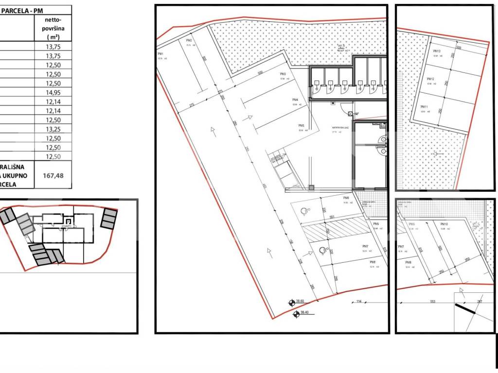
Svakom stanu pripada jedno parkirno mjesto i spremište, koji su uključeni u cijenu.
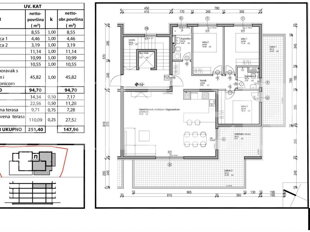
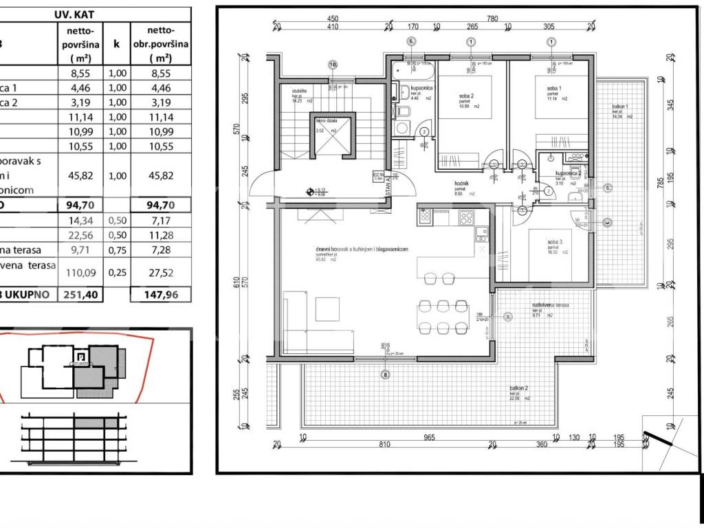
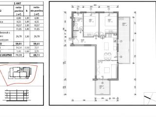
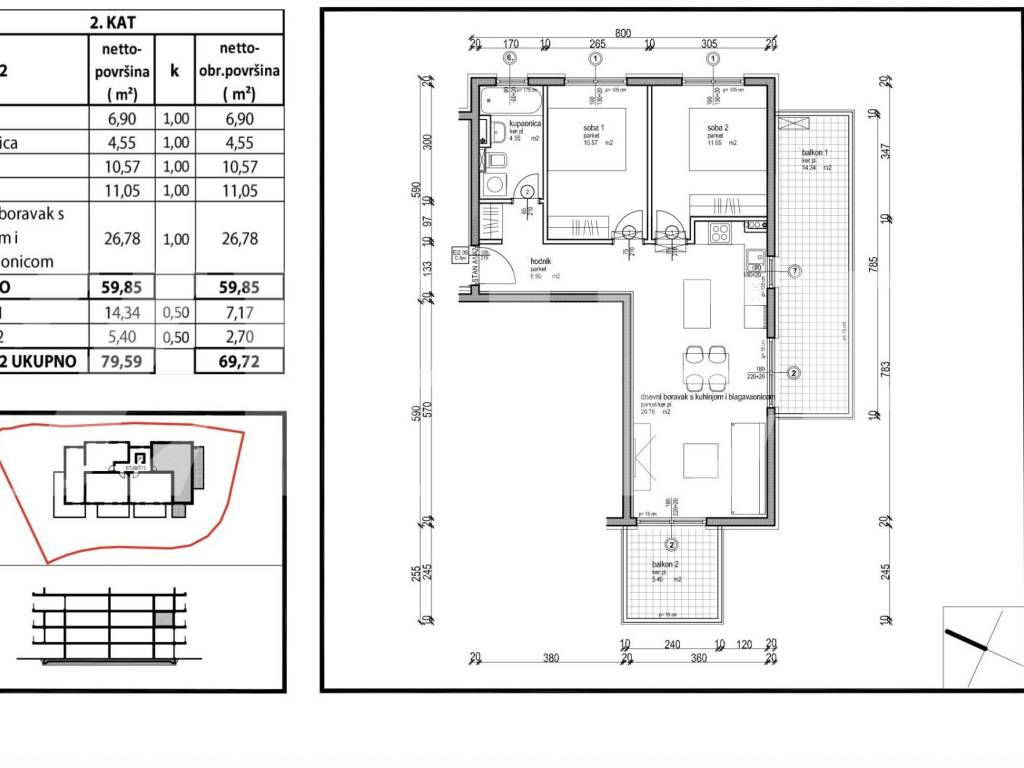
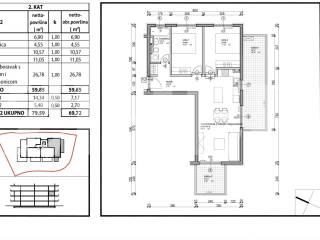
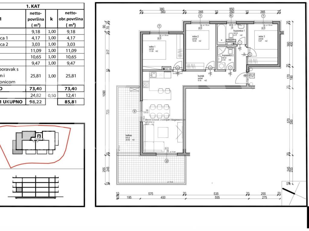
Stan B3, na trećem, uvučenom katu s velikom krovnom terasom od 132 m2, sastoji se od ulaznog hodnika, dnevnog boravka s kuhinjom i blagavaonicom, tri spavaće sobe, dvije kupaonice, ukupne površine 103,05 m2. Stan ima balkon/terasu od 67 m2, te krovnu terasu, cijena 490.000 eura
Ostali slobodni stanovi :
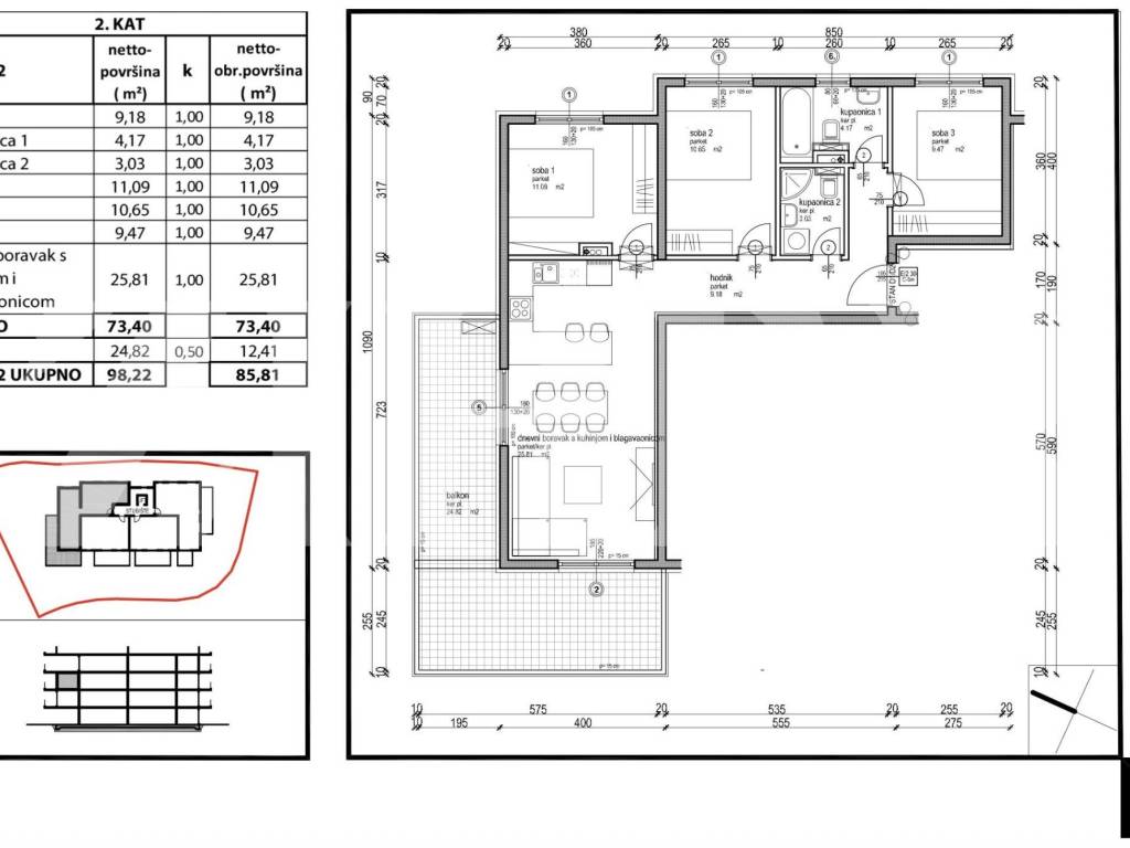
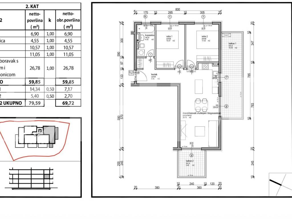
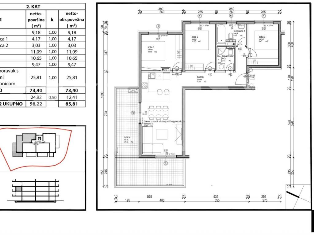
A2 - drugi kat - 260.000 eura
A3 - uvučeni kat - 465.000 eura
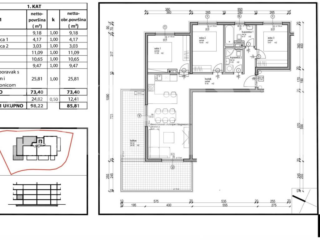
D1 - prvi kat - 320.000 eura
D2 - drugi kat - 320.000 eura
Za sve informacije nazovite 098359876
ZIHER
Agencija za posredovanje u prometu nekretninama
Características
Tipología
Piso
Contrato
Venta
Planta
3 planta
Plantas del edificio
3
Superficie
180 m²
Habitaciones
4
Dormitorios
3
Baños
2
Calefacción
Central, por radiadores, de gas
Información del precio
Precio
€ 490.000
Precio del m²
2.722 €/m²
Desglose de los costes
Gastos de comunidad
Ningún gasto de comunidad
Eficiencia energética
  • Año de construcción

    2025
  • Calefacción

    Central, por radiadores, de gas
  • Certificación energética

    Inclasificable
Descubre otros ángulos del inmueble
+9
Opciones adicionales

Contactar con el anunciante

O