map icon

Piso de cuatro habitaciones primera planta, Nin

Nin
€ 363.600
4
65 m²
2
1

Nota

Anuncio actualizado el 05/12/2025
Descripción

This description has been translated automatically and may not be accurate

referencia: 285-1

Luxury new building with elevator, 2nd row from the sea in Zaton. The building consists of a ground floor and two floors and a roof terrace.
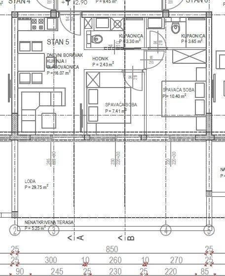
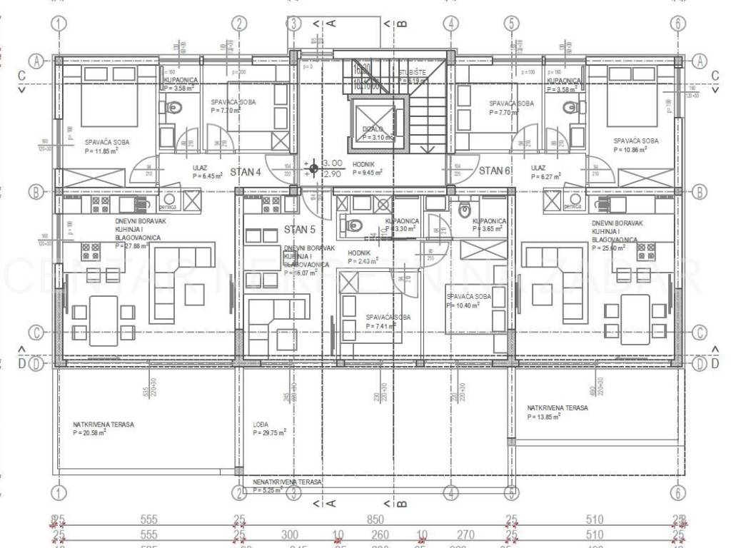
The apartment marked S5 is located on the 1st floor. It contains two bedrooms, two bathrooms, a kitchen with a dining room and a living room with access to the terrace, with a total net area of 65.57 m2.
This apartment also includes two parking spaces on the property of the building with a total area of 28.60 m2 (net 7.15 m2), so the total net area of the apartment and accessories is 72.72 m2. An excellent location for vacation, the distance to the sea is only about 20 meters. All apartments have a beautiful direct view of the sea.
Extremely high-quality construction by a reliable investor. Aluminum carpentry with mosquito nets, electric blinds and blinds on glass walls (Schüco), elevator (Schindler), underfloor heating with a heat pump and air conditioning (Mitsubishi), first-class ceramics with a large profile and high-quality parquet. The expected completion of the project is June 2023.
Zaton is a small tourist town located in the bay of the same name in the Zadar channel. It represents a unique combination of Dalmatian architecture, a pleasant Mediterranean climate, preserved nature, a rich cultural and historical heritage and that lively tourist everyday life. An exceptional location for a perfect summer vacation.
Si deseas más información puedes hablar con Marija Glavinović.
Características
Tipología
Piso
Contrato
Venta
Planta
1 planta
Superficie
65 m²
Habitaciones
4
Dormitorios
2
Baños
2
Información del precio
Precio
€ 363.600
Precio del m²
5.594 €/m²
Eficiencia energética
  • Certificación energética

    Inclasificable
Descubre otros ángulos del inmueble
+5
Opciones adicionales

Contactar con el anunciante

O